Elevated on a commanding corner allotment, this charming brick residence enjoys sweeping views, generous proportions and a location of exceptional convenience. With its classic façade, dual street frontages and vast under-house garage, it offers immediate comfort with exciting scope to further enhance or redevelop (STCA).
Boasting a north...
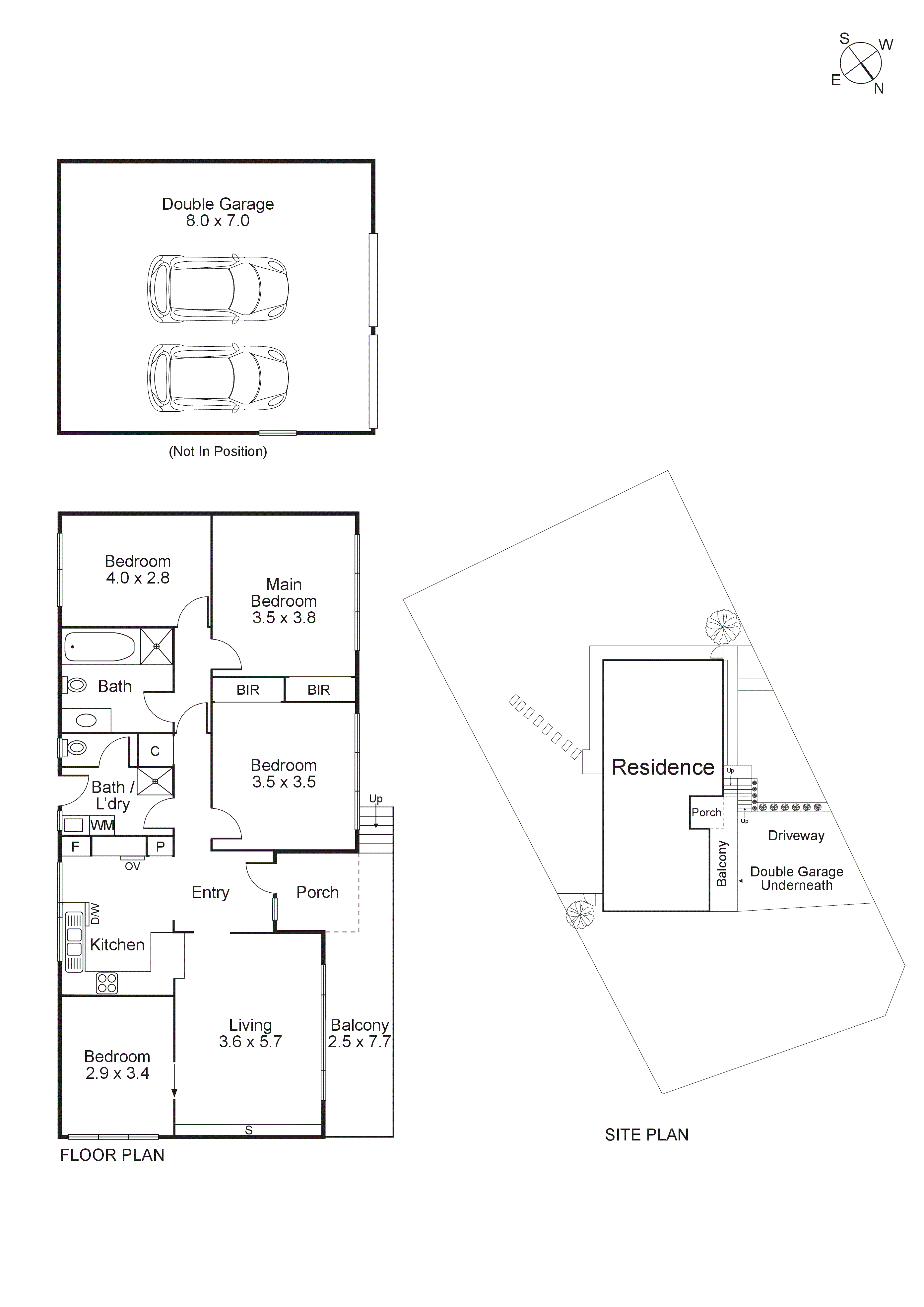
Elevated on a commanding corner allotment, this charming brick residence enjoys sweeping views, generous proportions and a location of exceptional convenience. With its classic façade, dual street frontages and vast under-house garage, it offers immediate comfort with exciting scope to further enhance or redevelop (STCA).
Boasting a north facing orientation, sunlight floods the living and dining domain, framed by wide windows and flowing seamlessly to a balcony with stunning treetop and district views. At its heart, the sparkling kitchen impresses with quality stainless steel appliances, ample storage and a garden outlook, while polished timber floors bring warmth and character. Outdoors, the deep backyard presents a private setting for entertaining, play or future potential.
Four spacious bedrooms include two with built-in robes, enviable views and are well serviced by two bathrooms. Comfort is assured with ducted heating and evaporative cooling throughout, plus an expansive under-house garage accommodates multiple vehicles with workshop.
Ideally positioned within easy reach of Deakin University and PLC, zoned to Essex Heights Primary School and Mount Waverley Secondary College, and just moments from Burwood One, Burwood Brickworks and Riversdale Golf Club, parklands, transport and shopping, this is a residence brimming with lifestyle appeal and future promise.
*Please Note* Buxton Real Estate may refuse to provide further information about the property should you prefer not to disclose your Full Contact Details including Phone Number. Photo id required upon entering the property.