The exceptional credentials of this grand family home are matched by its generous proportions, year-round indoor-outdoor living, and an unbeatable location just steps from Centenary Park.
A fabulous floorplan begins with a wide entrance foyer leading to formal living and dining, complete with a gas fireplace – the perfect parent’s retreat or...
The exceptional credentials of this grand family home are matched by its generous proportions, year-round indoor-outdoor living, and an unbeatable location just steps from Centenary Park.
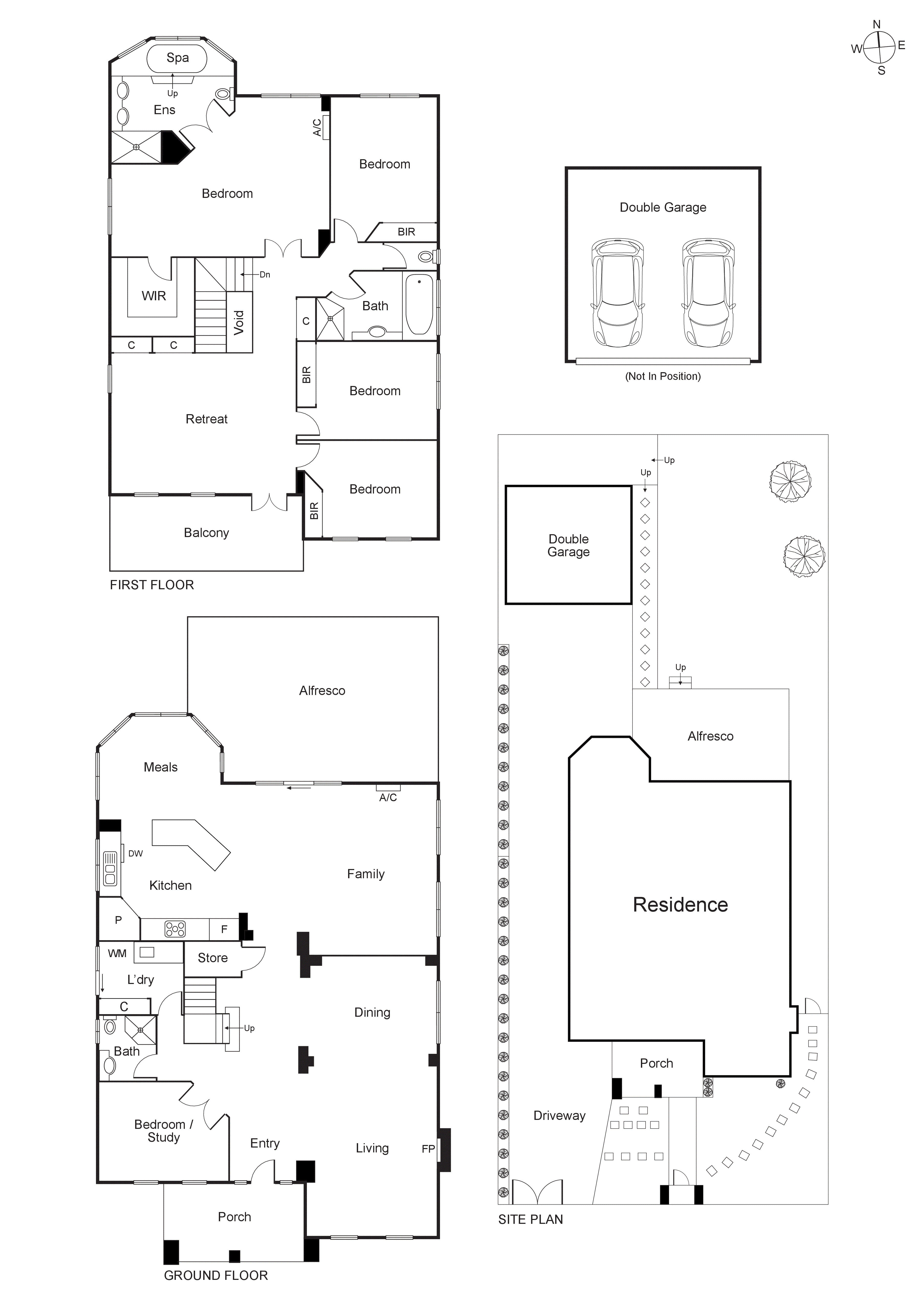
A fabulous floorplan begins with a wide entrance foyer leading to formal living and dining, complete with a gas fireplace – the perfect parent’s retreat or elegant entertaining zone. At the heart of the home, expansive open-plan living and casual dining are complemented by a stylish granite kitchen featuring a breakfast bar, sleek grey cabinetry, 900mm Electrolux cooktop/oven and an AEG dishwasher.
Designed for effortless entertaining, the north-facing outdoors include a covered alfresco with built-in bar, a deep lawn for children to play, a veggie patch, and a brick double garage with scope for future use – plus space for a pool (STCA).
Flexible family living is further enhanced by a downstairs bedroom or study with peaceful garden views, a full bathroom, and laundry. Upstairs, the allure continues with a vast open-plan retreat spilling to a balcony large enough for outdoor dining or lounging in the sun. Accommodation includes three double bedrooms with built-in robes, alongside a hotel-style main suite with space for a lounge or home office, walk-in wardrobe, and a spa ensuite overlooking the garden. A family bathroom with bath and separate toilet adds further convenience and privacy.
Additional highlights include a long driveway, ducted heating/cooling, plus split systems in the main bedroom and lounge area, and abundant storage throughout. Perfectly positioned a few doors from Centenary Park, you’re within easy reach of Bentleigh East Primary, St Paul’s, St Bede’s, OLSH, Bentleigh Secondary College, Centre Road’s shops and cafés, Yarra Yarra Golf Course, and GESAC.
ALL ENQUIRIES MUST INCLUDE A CONTACT NUMBER.
For more information, contact Chris Hassall on 0412 898 990 or Leigh Hoffman on 0488 041 177.
‘We have obtained all information in this document from sources we believe to be reliable; however, we cannot guarantee its accuracy. Prospective purchasers are advised to carry out their own investigation.’