Step into the next level of luxury and lifestyle with this brand-new, architecturally designed townhouse—where sophisticated style meets innovative, low-maintenance living.
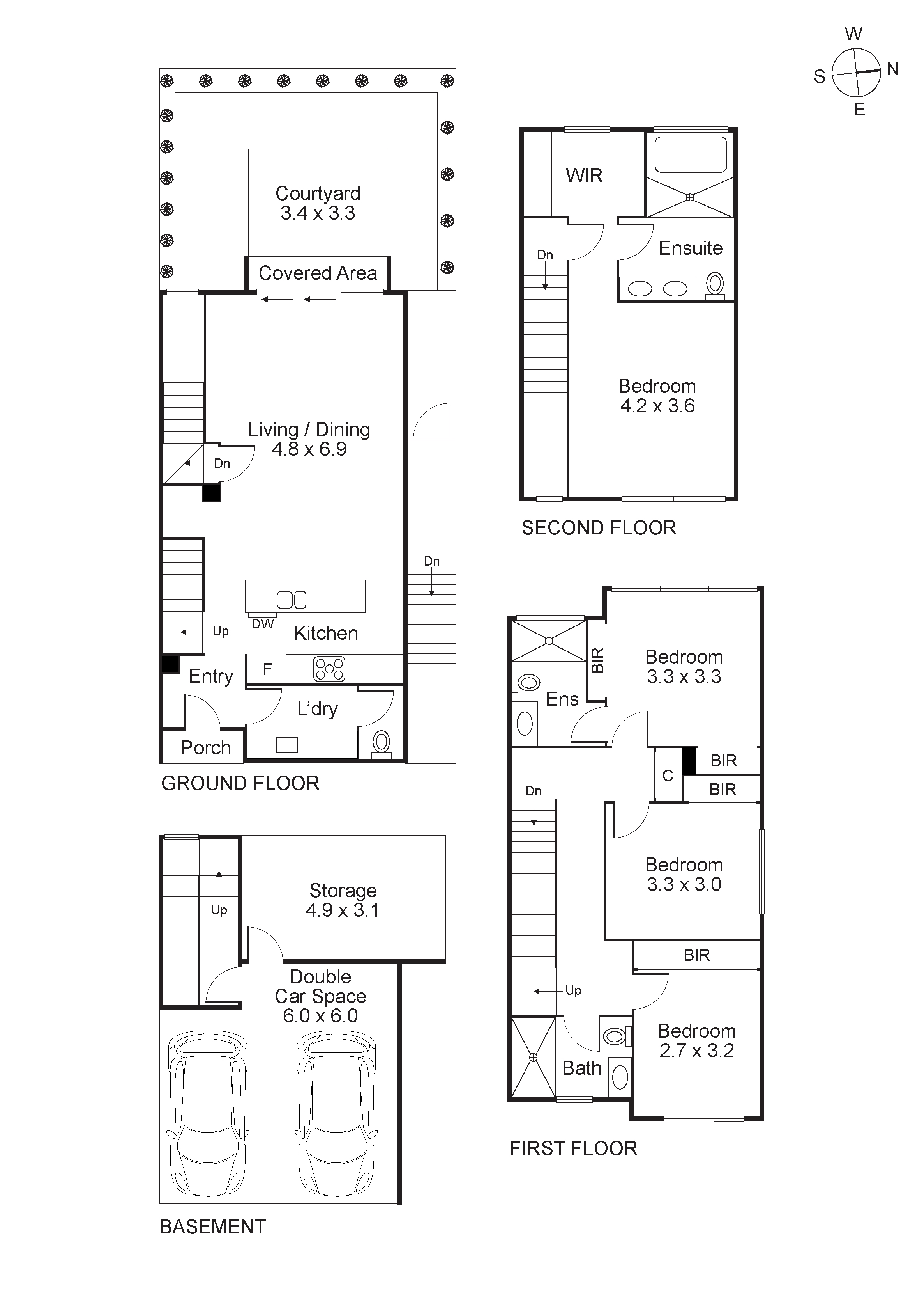
Rising to rare heights in a quiet rear position, this spectacular four bedroom, 3.5 bathroom, dual-suite home takes lock-and-leave family living to new heights with an...
Step into the next level of luxury and lifestyle with this brand-new, architecturally designed townhouse—where sophisticated style meets innovative, low-maintenance living.
Rising to rare heights in a quiet rear position, this spectacular four bedroom, 3.5 bathroom, dual-suite home takes lock-and-leave family living to new heights with an innovative three-level design that extends sun-filled living-dining out to an entertainers’ terrace, gives parents peace and privacy in a top floor master-level, and zones kids in between with a clever second suite.
A showcase of high design with a state-of-the-art Bosch appliance kitchen (with integrated dishwasher) facing living across a stone-wrapped bench, there are fabulous feature-tiled bathrooms including a 5 Star dual-vanity principal ensuite (with freestanding bath) and immense storage including custom-fitted robes (walk-in for the master). Designer detailed with Calacatta-style stone benchtops and coastal oak floors, this outstanding home features the softest pebbled wool carpets and the latest brushed brass tapware and hardware.
Fully climate-controlled and secured by key-pad and video entry, this high design is elevated even more by two side-by-side basement garage spaces alongside a huge storeroom.
Situated on the edge of Bentleigh East’s Centre Rd. shopping strip, there’s even a high-amenity location; just around the corner from cafes and cosmopolitan shopping, steps to the bus to stations and Chadstone’s world-class shopping, and a splash to GESAC and Bailey Reserve.
For further information on this just completed townhouse contact Melissa Hetherington at Buxton Glen Eira on 0432 935 111 or the Buxton Office on 9563 9933.
ALL ENQUIRIES MUST INCLUDE A CONTACT NUMBER.