Nestled within a quiet neighbourhood pocket, this gorgeous three-bedroom, two-bathroom family home perfectly blends modern comfort with lifestyle convenience. Surrounded by every amenity and just moments to beautiful beaches, you’ll also love the ease of supermarkets, cafes, transport links and schools all within easy reach. Inside you’ll find a...
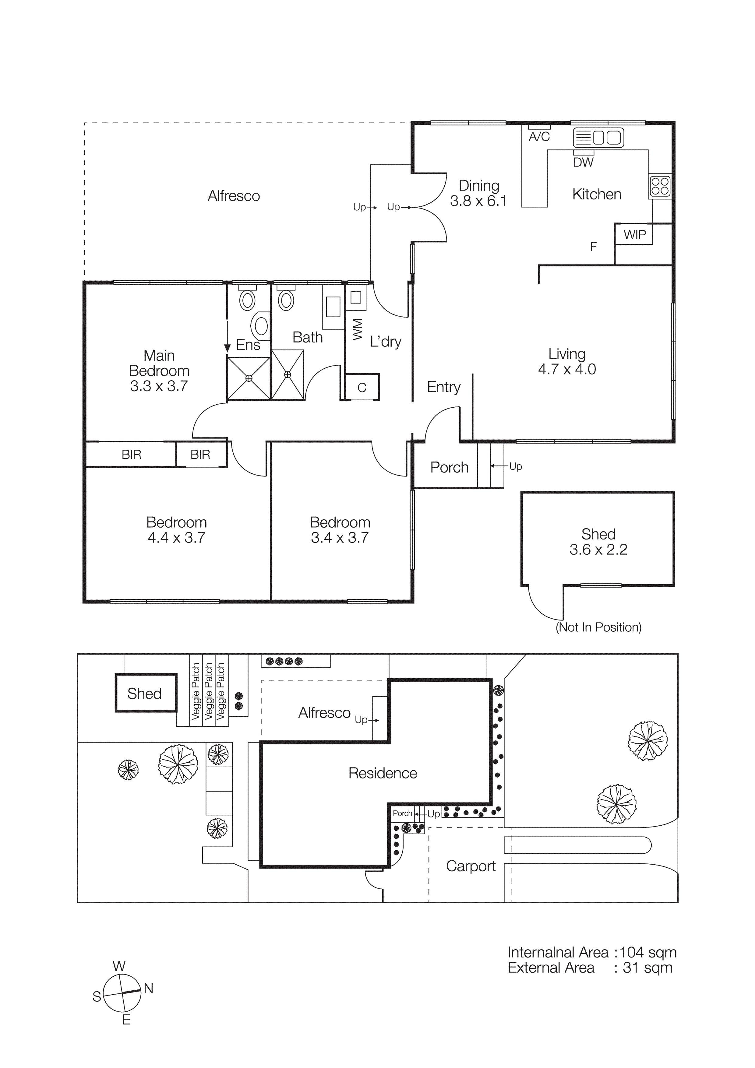
Nestled within a quiet neighbourhood pocket, this gorgeous three-bedroom, two-bathroom family home perfectly blends modern comfort with lifestyle convenience. Surrounded by every amenity and just moments to beautiful beaches, you’ll also love the ease of supermarkets, cafes, transport links and schools all within easy reach. Inside you’ll find a stylish single-level interior enhanced by expansive floor-to-ceiling windows. The spacious lounge room captures the northern sunshine, flowing to a large, well-appointed kitchen with adjacent dining and sliding doors to the outside. The covered alfresco is perfect for entertaining family and friends, along with a generous backyard for children and pets. Perfectly zoned for peace and privacy, three bedrooms and two bathrooms are tucked away from the living areas. All three bedrooms are generous in size with plush new carpet, including the master bedroom with its gleaming fully-tiled ensuite and built-in robes. Further highlights include a sleek main bathroom, ducted heating and split-system, a garden shed, new rear fence, double carport and ample driveway parking. Located just 450 metres to the local shopping strip and Seaford Hotel, with Belvedere Park Primary School, buses and playgrounds conveniently nearby. In minutes you’ll find stunning Seaford Beach, Frankston’s waterfront dining precinct and quick freeway access! Simply move in, relax and enjoy the beachside lifestyle this summer!