Discover modern, low-maintenance living in this beautifully appointed two-storey town residence, perfectly positioned between Seddon's vibrant village atmosphere, Yarraville's thriving community...
Discover modern, low-maintenance living in this beautifully appointed two-storey town residence, perfectly positioned between Seddon's vibrant village atmosphere, Yarraville's thriving community precinct and situated in a premium tree-lined street.
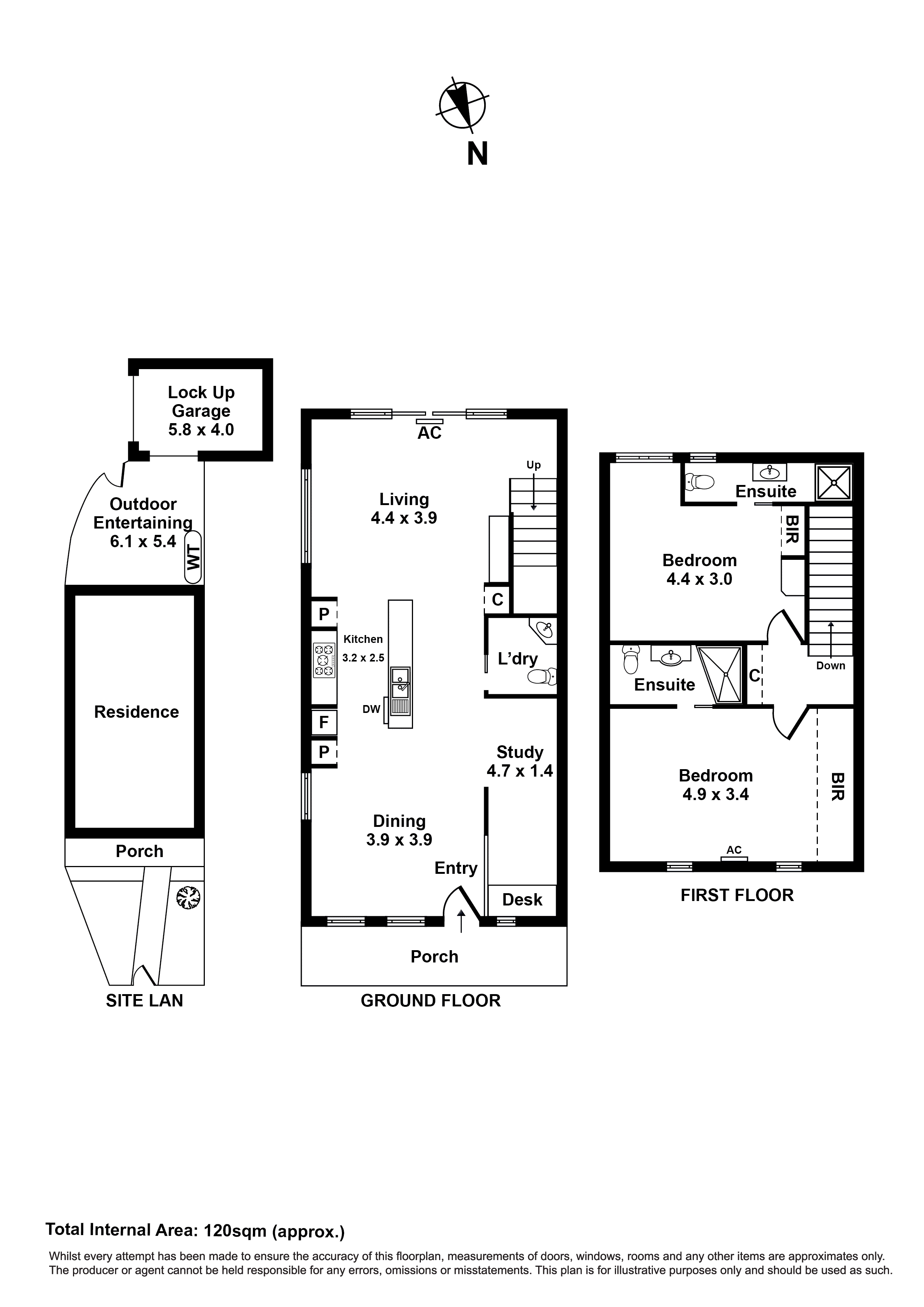
The ground floor welcomes you with an expansive open-plan kitchen, living, and dining area complemented by polished timber floorboards throughout. The well-appointed kitchen showcases premium stone bench tops, gas under bench oven and cooktop and integrated dishwasher. A dedicated study area provides the perfect workspace for those working from home, while the laundry includes a separate toilet. Sliding doors open to a private, low-maintenance courtyard, with internal access to the single lock-up garage completing the security
Upstairs, two generous bedrooms each feature their own private ensuite and built-in robes, with quality carpet flooring ensuring year-round comfort.
Split system heating and cooling units service both the living room and master bedroom, while sustainable features include a water tank for courtyard irrigation. The charming white picket fence adds classic street appeal to this seventeen-year-old residence.
Nestled perfectly between Seddon and Yarraville, this property offers the best of both worlds. With the train station just a three-minute walk away, Melbourne CBD and Docklands are a mere seven to ten minutes by car, while easy freeway and the recently upgraded Footscray Road access ensures seamless commuting. Charles Street and Victoria Street's café precinct offers popular venues like Alfa café and Happy Apple grocer within walking distance, while Yarraville village is ten minutes on foot, or one train stop away.
Families will appreciate the zoning to Footscray City Primary School, with multiple parks within five minutes' walk and Whitten Oval, Footscray Victoria University, and the new Footscray Hospital all conveniently close by. Whether you're commuting to the city, enjoying weekend brunches, or taking advantage of the area's abundant green spaces, this location delivers an enviable inner-west lifestyle that combines urban convenience with village charm making this an opportunity to secure a move-in-ready townhouse in one of Melbourne's most sought-after pockets.
