Pool days and deck nights – this coastal sanctuary is made for entertaining! With its stylish spaces, premium appointments and outdoor oasis, this is the perfect home for the contemporary family! Enjoy the swimming pool on hot summer days, then host in style on the covered deck with its outdoor kitchen, heat strips, ceiling fans and remote café...
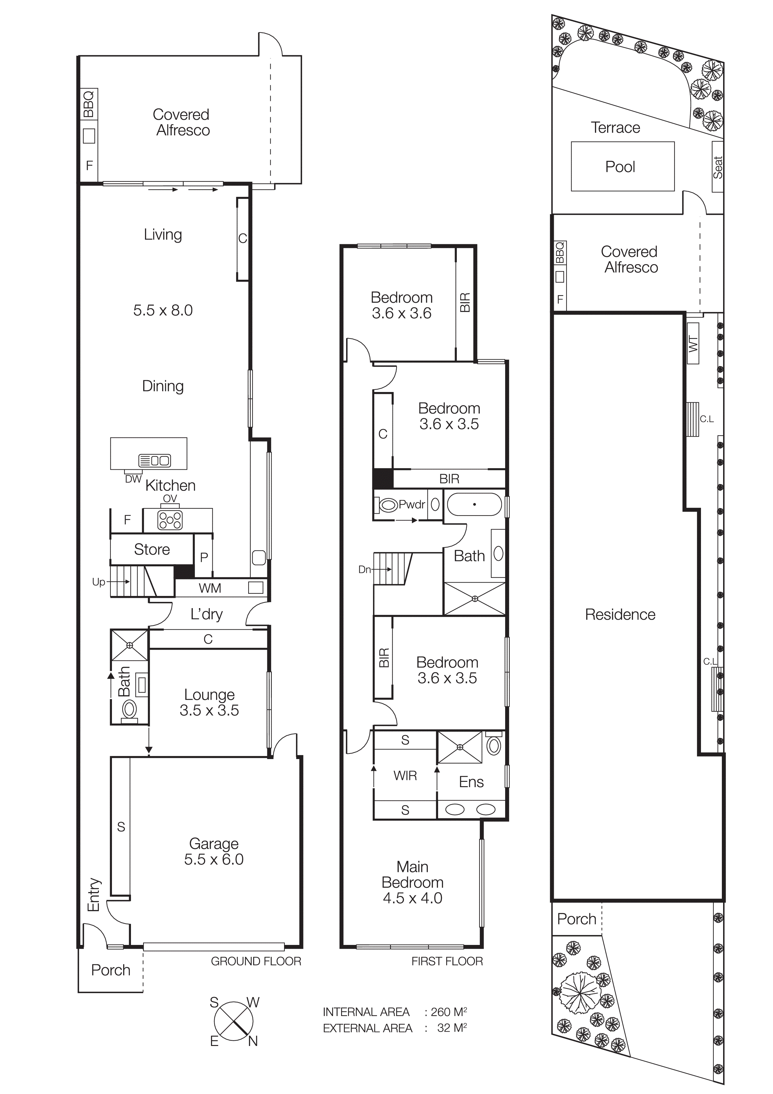
Pool days and deck nights – this coastal sanctuary is made for entertaining! With its stylish spaces, premium appointments and outdoor oasis, this is the perfect home for the contemporary family! Enjoy the swimming pool on hot summer days, then host in style on the covered deck with its outdoor kitchen, heat strips, ceiling fans and remote café blinds – the ultimate space to relax with family and friends. Customised to perfection, this stunning residence features Control4 Smart Home Automation and CCTV, an alarm system and video intercom, luxury bathrooms with full-height tiling and under-tile heating, plus VELUX skylights with remote-controlled blinds and SONOS in-ceiling speakers – no expense has been spared. The striking kitchen boasts an island bench and SMEG appliances, including an induction cooktop, complemented by light infused open-plan living and dining seamlessly flowing to the outside. There’s a downstairs TV room or guest bedroom for extra flexibility, serviced by an adjacent walk-in rain shower bathroom. The luxury of space continues upstairs with four bedrooms and two bathrooms. Three bedrooms feature frameless mirrored built-in robes and ceiling fans, all sharing the sleek family bathroom, while the master is a peaceful retreat, enhanced by a walk-in robe and lavish ensuite. Complete with an oversized double garage featuring exceptional storage and internal entry, plus solar panels and zoned ducted heating/refrigerated cooling. In a lifestyle location that truly impresses, you’re just steps from the Bonbeach Tuck Shop and a short stroll to Bonbeach Primary School, Bonbeach Station, the golf club and river trail. One of the bay’s best beaches is at your doorstep, with Carrum Village’s café scene in walking distance, plus moments to freeway access.