20A IS NOW SOLD 20B Remaining Asking $1,590,000 Take your single-level lifestyle to the next level with two spectacular living zones, a breathtaking master-domain and the ultimate indoor-out...
20A IS NOW SOLD
20B Remaining Asking $1,590,000
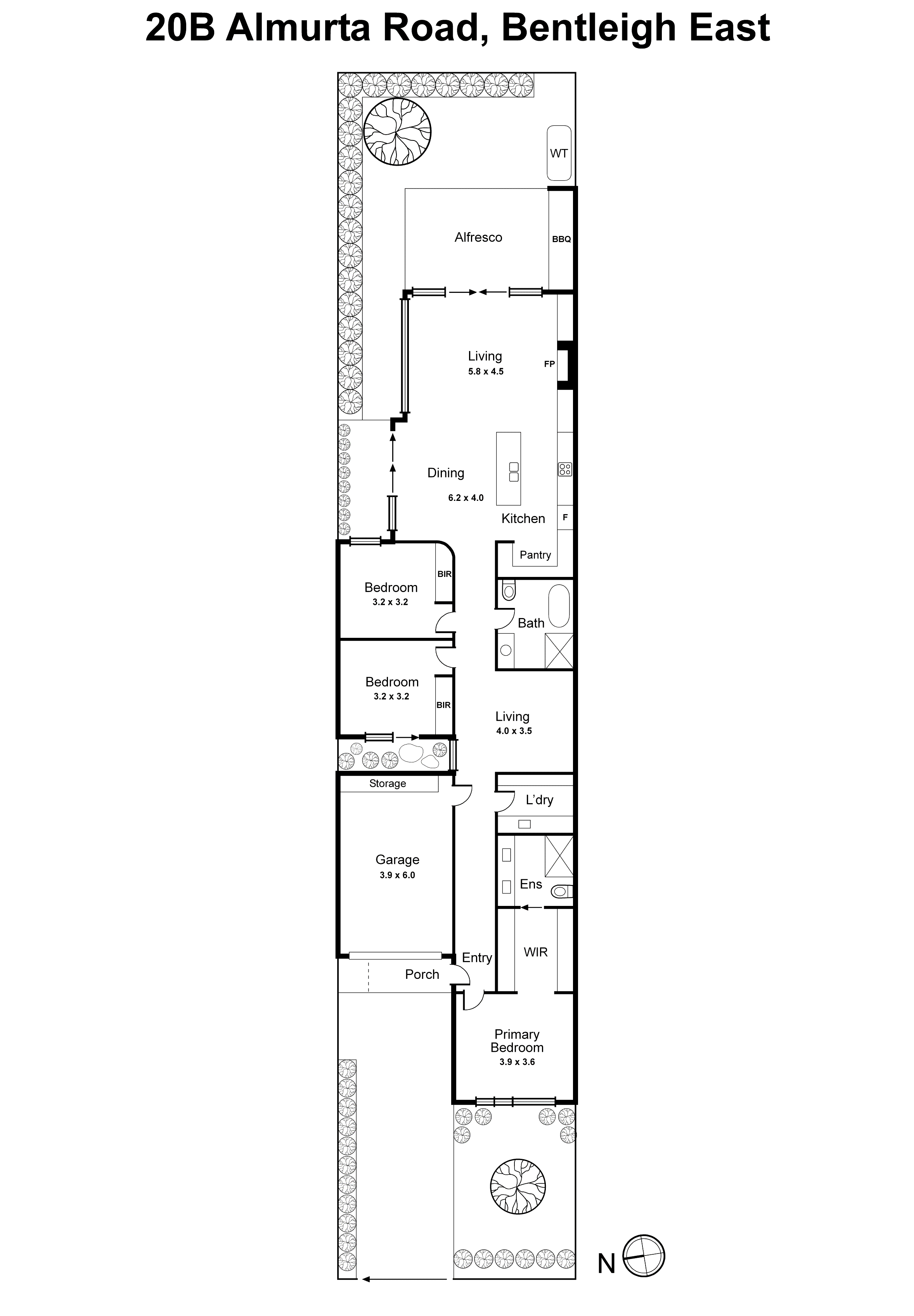
Take your single-level lifestyle to the next level with two spectacular living zones, a breathtaking master-domain and the ultimate indoor-out design! Due for completion early 2026, the latest benchmark homes from single-level specialists, PMC Group, will showcase the expert design of Pink Architecture across immensely livable three bedroom, two bathroom floorplans characterised by rare dual zone living and cleverly zoned accommodation.
Putting an emphasis on master-suite privacy with a vast domain claiming almost a third of the homes’ floorspace, these outstanding designs are cleverly zoned with secondary bedrooms in a quiet wing opposite an upscale bathroom, and a plush formal sitting-room as the buffer between the bedroom wings. Expansively entertaining with a natural flow from living dining to a room-sized alfresco terrace, the homes will be completed with a choice of kitchen area inside (with prestige Smeg appliances including 900mm induction cook top and integrated dishwasher) and out - with a mains-appointed stone-finished BBQ bench.
Meeting a demanding architectural standard with the sleekest stone benchtops, textural oak floors and 2-Pack and oak-style cabinetry, the home will feature floor-to-ceiling porcelain tiles for both the dual-vanity ensuite and the large main bathroom, and statement fittings including a freestanding bath, lofty squareset ceilings and tall double glazing. With feature storage including a dressing- room sized walk-through master robe, a clever open-plan butler’s pantry and a large separate laundry, the homes’ appointments meet this discerning developer’s uncompromising quality standards with Fujitsu climate-control to every room, video-intercom and alarm security, and a cost-saving all-electric finish - featuring high-efficiency electric hot-water, and a low-fuss warming electric-fireplace.
Set in landscaped surrounds with lush outlooks from every room (including to ’secret’ courtyard areas from both secondary bedrooms), there are up to three car for each home parking including an auto-garage under the roofline, and exactly the right amount of enclosed private open space for kids and pets to play safely.
At home in this in demand Coatesville Primary School Zone precinct of parks and schools, these exciting new single-level lifestyle opportunities enjoys a high-amenity lifestyle location; a walk to the cafes, supermarket and specialty stores of the Centre Rd shopping strip, a few blocks to Monash Medical Centre and its allied health specialists, and 200m to pup- friendly Centenary Park. For further information on this exciting new single-level home offering contact Angelo Nikitas at Buxton Bentleigh on 0412 161 877 or the Buxton Office on 9563 9933. ALL ENQUIRIES MUST INCLUDE A CONTACT NUMBER.
PLEASE NOTE: Internal photos are from builders recent project
