A modern masterpiece of bespoke design and botanical beauty, this four-bedroom, 4.5-bathroom Enzo Campus residence by the Stonnington Group sets the precedent for contemporary family living in the...
A modern masterpiece of bespoke design and botanical beauty, this four-bedroom, 4.5-bathroom Enzo Campus residence by the Stonnington Group sets the precedent for contemporary family living in the heart of Brighton. Beautifully established within lush Eugene Gilligan gardens, it evokes the grace of an enduring estate with architectural refinement at every turn.
Inspired by mid-century modern principles and the relaxed spirit of tropical retreats, the home achieves a rare balance of form, function and feeling. A verdant walkway culminating in a tranquil water feature sets a tone of calm arrival, while interiors of warm timber, sculptural stone and expansive glazing embrace effortless luxury and a seamless connection to nature.
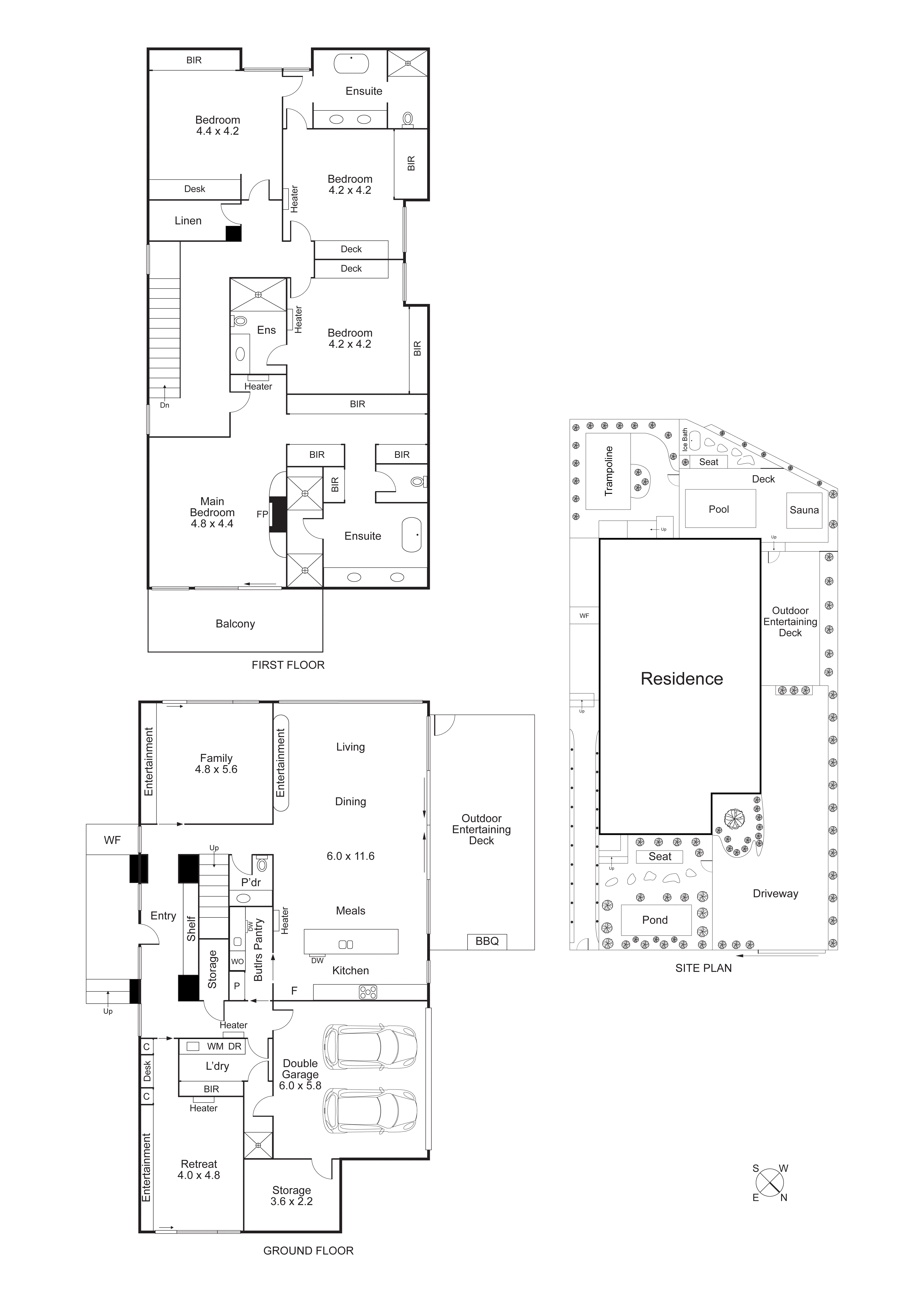
Basking in a sunlit north-western orientation, walls of movable glass dissolve the boundaries between indoors and out. Three distinct living zones open to private green spaces, from relaxed family and formal lounges with bespoke cabinetry to a peaceful study retreat framed by a Zen garden. Designed for all ages, the rear yard features a hidden in-ground trampoline amidst the canopy of greenery.
The primary communal family space flows to an outdoor entertaining terrace with integrated BBQ kitchen beneath a timber pergola, complemented by a resort-style wellness zone with heated pool, ice bath and sauna. The custom marble kitchen is a showpiece of craftsmanship, featuring curved timber detailing, twin integrated Liebherr refrigeration, backlit stone, premium Miele appliances and a full butler’s scullery (second integrated dishwasher, oven and microwave).
Upstairs, four generous bedrooms enjoy peaceful seclusion, headlined by a breathtaking main suite with glass-framed fireplace, private treetop terrace, extensive dressing room and a luxurious skylit ensuite with freestanding bath, dual vanities and double shower. Three additional bedrooms with built-in robes and desks share two designer bathrooms.
Every detail reflects intuitive design and timeless quality, from ultra-wide European Oak floors and pebble wool carpets to bespoke joinery, sheers backed by automated blinds and custom lighting. Additional features include hydronic heating, laundry with drying cabinet, guest powder room, keyless entry, advanced security, a remote double garage, electric car charger and ample driveway parking and play.
Directly opposite Whyte Street Park and minutes from Were Street village, Church Street’s restaurant, retail and rail precinct, elite schools and Brighton’s iconic bathing boxes, this remarkable residence situated on 705sqm (approx) redefines family luxury within a private garden oasis.
For more information about this sublime family retreat please contact Andrew Campbell at Buxton Brighton on 0419 366 545.
