Currently leased until 10th September 2026, this ground-floor garden apartment presents an exceptional opportunity for investors seeking immediate rental income and long-term capital growth. With a quality tenant already in place, it’s a stress-free, set-and-forget investment in a premium beachside location.
Tucked away at the rear of a boutique...
Currently leased until 10th September 2026, this ground-floor garden apartment presents an exceptional opportunity for investors seeking immediate rental income and long-term capital growth. With a quality tenant already in place, it’s a stress-free, set-and-forget investment in a premium beachside location.
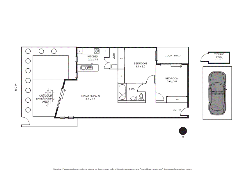
Tucked away at the rear of a boutique block of just 16, this two-bedroom residence is a quiet sanctuary designed for easy living. Light-filled bedrooms are cleverly arranged around a central atrium, while the open-plan living zone extends to a generous courtyard with paved entertaining space, lawn, and private rear gate access.
The kitchen impresses with stone benchtops, Smeg appliances, an integrated dishwasher, and a waterfall-edge breakfast bar. A stylish two-way bathroom features floor-to-ceiling tiling and mirrored storage, while modern comforts include reverse-cycle air conditioning, video intercom, lift access to secure basement parking, and ample storage including built-in robes and a private garage space.
Enjoy unbeatable convenience with the bus to Southland and local train stations at your door, clifftop trails just a block away, and the vibrant Black Rock village within walking distance – home to popular cafés, boutiques, and bars. For more information about this beachside lifestyle opportunity contact Wesley Belt at Buxton Mentone on 0418 310 753.
Disclaimer:
The floorplan, room measurements, and land size provided are approximate and for illustrative purposes only. Buxton makes no representations or warranties regarding the accuracy, completeness, or reliability of any floorplan, drawing, or rendering used in the advertising materials. Buxton disclaims any liability for errors, omissions, or inaccuracies in the depiction of the land, property, or any described features. Prospective purchasers should conduct their own due diligence and seek independent professional advice to verify all information.