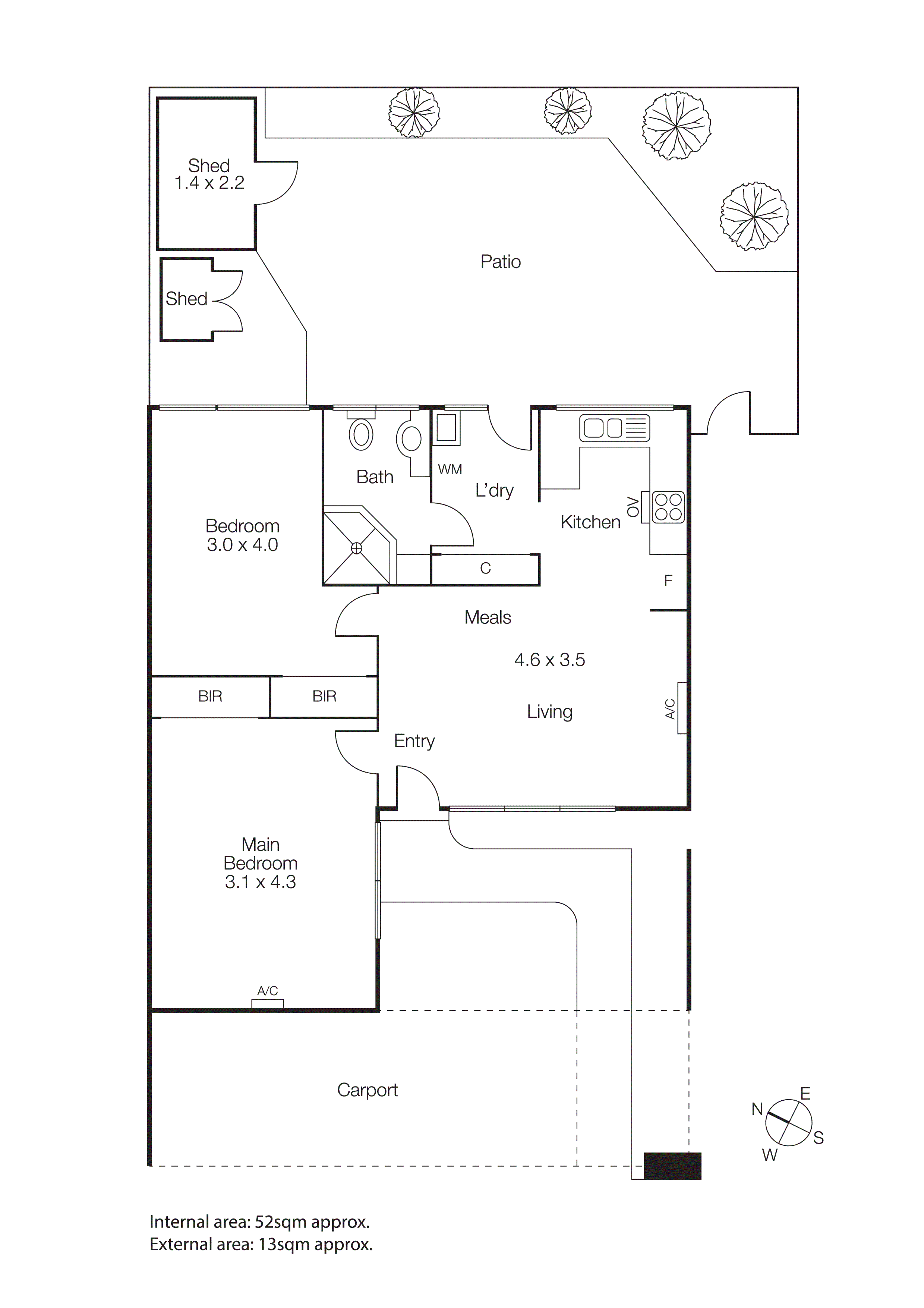
Flooded with beautiful natural light, this low-maintenance beachside haven sits in a sought-after central pocket just 600 metres from the station and village. A short walk to golden stretches of sand, this single-level gem is perfect to occupy or invest. Inside, fresh paint shines throughout, alongside soft carpet, modern venetian blinds and...
Flooded with beautiful natural light, this low-maintenance beachside haven sits in a sought-after central pocket just 600 metres from the station and village. A short walk to golden stretches of sand, this single-level gem is perfect to occupy or invest. Inside, fresh paint shines throughout, alongside soft carpet, modern venetian blinds and split-system comfort. Open-plan living offers ample space to relax, accompanied by an immaculate kitchen with stainless steel appliances. There are two good-sized bedrooms with built-in robes - the main bedroom with its own split-system - both sharing the neat light-filled bathroom. A proper laundry with linen cupboard is a fantastic inclusion, along with the large private paved courtyard drenched in glorious sunshine and a single parking space. Perfectly placed for you to enjoy all that this amenity-rich locale offers, the local general store with its servery window is just steps away for your weekend coffee, while Chelsea Station, Chelsea Village’s cafes and shopping are within walking distance. Stroll to Chelsea Primary School, Bicentennial Park (home of the 5ifth Makers Market and Park Run) and the Longbeach Trail. A relaxed coastal lifestyle beckons!