Set on an elevated block, this contemporary four-bedroom residence delivers a flexible and low-maintenance family lifestyle in a sought-after Strathmore pocket. Spread across two light-filled levels,...
Sharing Listing
B 4 b 3 C 2
Buxton Albert Park
330 Montague Street,
Albert Park
3206
Set on an elevated block, this contemporary four-bedroom residence delivers a flexible and low-maintenance family lifestyle in a sought-after Strathmore pocket. Spread across two light-filled levels,...
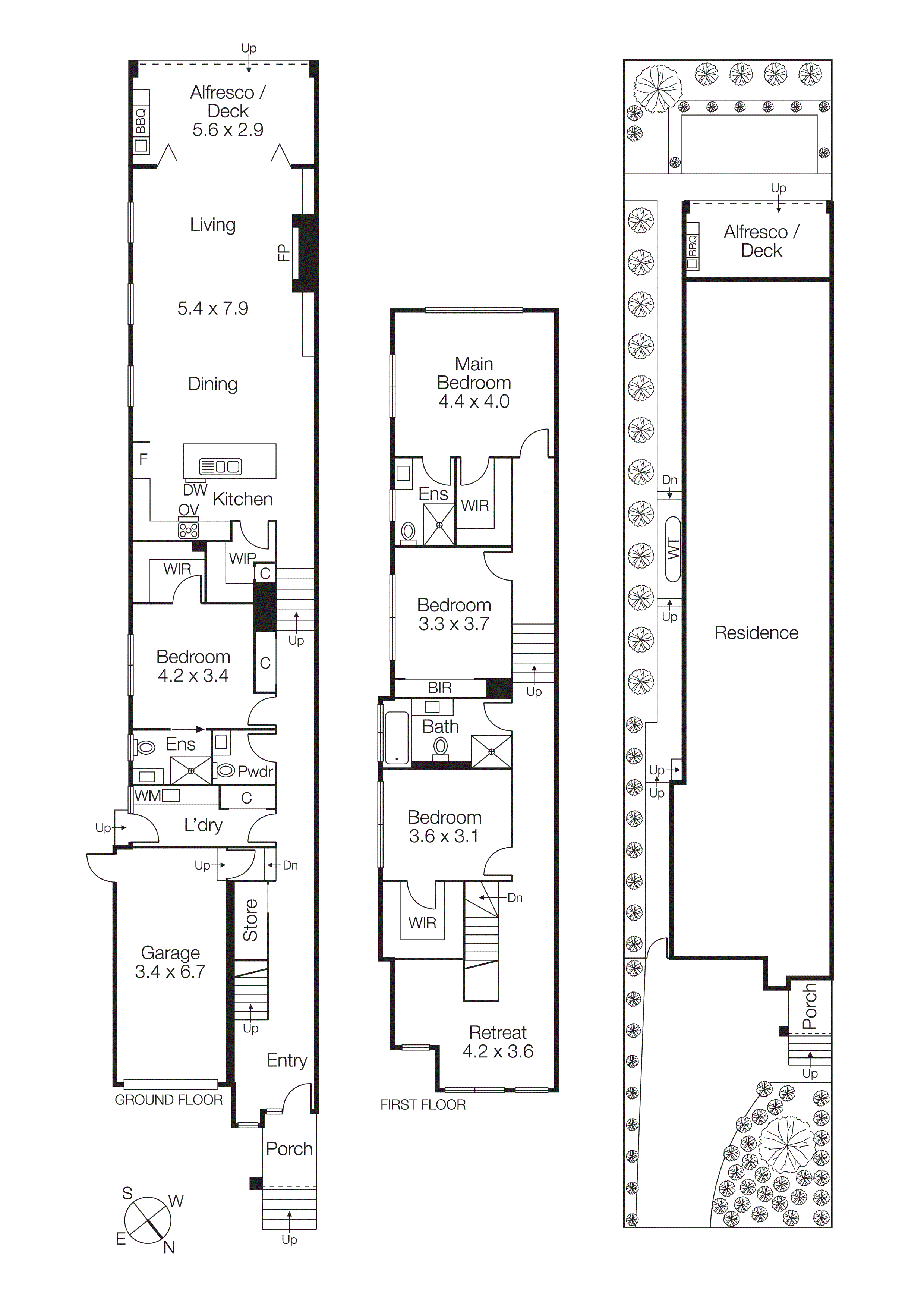
Set on an elevated block, this contemporary four-bedroom residence delivers a flexible and low-maintenance family lifestyle in a sought-after Strathmore pocket.
Spread across two light-filled levels, the home features two master suites, one on each floor, both with WIRs and private ensuites. Upstairs, the remaining bedrooms include one with a WIR and one with a BIR, accompanied by a central bathroom and a separate powder room, all finished with stone benchtops and full-height tiling. Completing this level is a bright retreat with a study nook, offering an ideal space to work or unwind.
The open plan living and dining area sits at the heart of the home, complemented by a well-appointed kitchen with stone surfaces, a butler’s pantry, and premium appliances, perfect for both everyday living and entertaining. The adjoining lounge with a gas fireplace flows seamlessly through bi-fold doors to a covered alfresco area complete with a built-in BBQ and a private rear garden, ideal for relaxed outdoor dining.
Additional highlights include ducted heating and refrigerated cooling, alarm and video intercom, square-set ceilings, hardwood floors, a large laundry, generous storage, and an internally accessed remote garage.
Positioned for convenience within the Strathmore Secondary College zone, the home is close to local buses, shops, Lebanon Reserve, and the Moonee Ponds Creek Trail, with easy access to CityLink and Pascoe Vale Station.
Currently leased at $765 per week until February 2027, the property offers secure income in the short term with the flexibility to move in when the lease concludes.
Set on an elevated block, this contemporary four-bedroom residence delivers a flexible and low-maintenance family lifestyle in a sought-after Strathmore pocket.
Spread across two light-filled levels, the home features two master suites, one on each floor, both with WIRs and private ensuites. Upstairs, the remaining bedrooms include one with a WIR...
Set on an elevated block, this contemporary four-bedroom residence delivers a flexible and low-maintenance family lifestyle in a sought-after Strathmore pocket.
Spread across two light-filled levels, the home features two master suites, one on each floor, both with WIRs and private ensuites. Upstairs, the remaining bedrooms include one with a WIR and one with a BIR, accompanied by a central bathroom and a separate powder room, all finished with stone benchtops and full-height tiling. Completing this level is a bright retreat with a study nook, offering an ideal space to work or unwind.
The open plan living and dining area sits at the heart of the home, complemented by a well-appointed kitchen with stone surfaces, a butler’s pantry, and premium appliances, perfect for both everyday living and entertaining. The adjoining lounge with a gas fireplace flows seamlessly through bi-fold doors to a covered alfresco area complete with a built-in BBQ and a private rear garden, ideal for relaxed outdoor dining.
Additional highlights include ducted heating and refrigerated cooling, alarm and video intercom, square-set ceilings, hardwood floors, a large laundry, generous storage, and an internally accessed remote garage.
Positioned for convenience within the Strathmore Secondary College zone, the home is close to local buses, shops, Lebanon Reserve, and the Moonee Ponds Creek Trail, with easy access to CityLink and Pascoe Vale Station.
Currently leased at $765 per week until February 2027, the property offers secure income in the short term with the flexibility to move in when the lease concludes.
Buxton Albert Park
330 Montague Street,
Albert Park
3206
We'll give you a clear, honest assessment based on real market insights, so you can make informed decisions with confidence.
Local knowledge. Proven results. Trusted advice.
