Seamlessly connected to its easy-care surroundings thanks to vast expanses of double-glazed glass - and designed to capture optimum northerly sunshine throughout its spacious interiors - this...
Sharing Listing
B
3
b
2
C
5
632 m²
Buxton Sandringham
11 Bay Road,
SANDRINGHAM VIC
3191
Seamlessly connected to its easy-care surroundings thanks to vast expanses of double-glazed glass - and designed to capture optimum northerly sunshine throughout its spacious interiors - this...
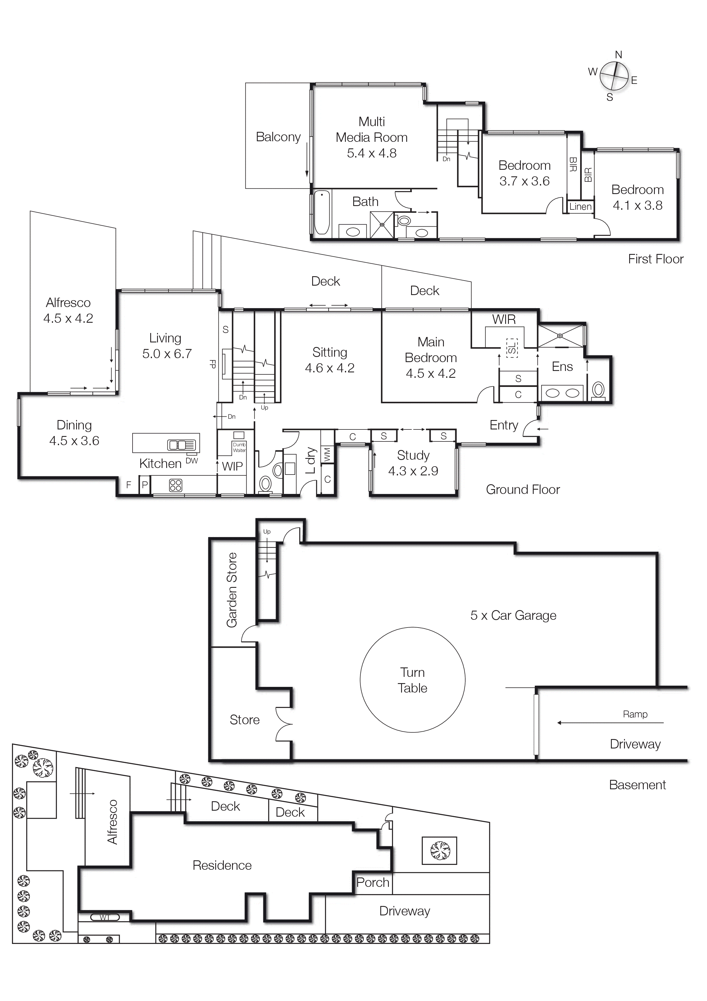
Seamlessly connected to its easy-care surroundings thanks to vast expanses of double-glazed glass - and designed to capture optimum northerly sunshine throughout its spacious interiors - this impressive 3-bedroom plus study residence is a first-class offering, and one that is elevated even further thanks to its enviable position within Black Rock’s coveted Golden Triangle.
Enhanced by timeless neutral hues, with soft tones, textures and finishes brilliantly echoing its proximity to sand & sea, the home is presented like new and is ready to be enjoyed. Among its highlights are a choice of living zones, including a fitted theatre/lounge with projector and electric screen, an open plan family/dining area with gas log fireplace and a fabulous upstairs retreat with sheltered, bay-glimpse balcony.
Avid chefs will love the sophisticated gourmet kitchen, which is equipped with quality European appliances and anchored by a vast entertainer’s island for effortless hosting - either inside or out on the sheltered alfresco terrace.
A retreat-like ground floor primary bedroom with walk-in robe and hotel-inspired ensuite will prove popular with both families and downsizers, while also offered are a fitted home office, two huge upstairs bedrooms with robes, a bright family bathroom with freestanding bath plus two powder rooms – one on each level.
In-floor hydronic heating warms the lower level – there is also reverse cycle heating/cooling throughout. Additional standout features include CBUS connectivity, comprehensive security, sound system, a dumb waiter, electric blinds, 19 solar panels (battery ready) and four-car basement garage with turntable and extensive storage.
Half Moon Bay and the village are within an easy stroll, and this prized address is just moments to leading public and private schools, championship golf courses, bus stops and so much more for a lifestyle beyond compare.
Seamlessly connected to its easy-care surroundings thanks to vast expanses of double-glazed glass - and designed to capture optimum northerly sunshine throughout its spacious interiors - this impressive 3-bedroom plus study residence is a first-class offering, and one that is elevated even further thanks to its enviable position within Black Rock’s...
Seamlessly connected to its easy-care surroundings thanks to vast expanses of double-glazed glass - and designed to capture optimum northerly sunshine throughout its spacious interiors - this impressive 3-bedroom plus study residence is a first-class offering, and one that is elevated even further thanks to its enviable position within Black Rock’s coveted Golden Triangle.
Enhanced by timeless neutral hues, with soft tones, textures and finishes brilliantly echoing its proximity to sand & sea, the home is presented like new and is ready to be enjoyed. Among its highlights are a choice of living zones, including a fitted theatre/lounge with projector and electric screen, an open plan family/dining area with gas log fireplace and a fabulous upstairs retreat with sheltered, bay-glimpse balcony.
Avid chefs will love the sophisticated gourmet kitchen, which is equipped with quality European appliances and anchored by a vast entertainer’s island for effortless hosting - either inside or out on the sheltered alfresco terrace.
A retreat-like ground floor primary bedroom with walk-in robe and hotel-inspired ensuite will prove popular with both families and downsizers, while also offered are a fitted home office, two huge upstairs bedrooms with robes, a bright family bathroom with freestanding bath plus two powder rooms – one on each level.
In-floor hydronic heating warms the lower level – there is also reverse cycle heating/cooling throughout. Additional standout features include CBUS connectivity, comprehensive security, sound system, a dumb waiter, electric blinds, 19 solar panels (battery ready) and four-car basement garage with turntable and extensive storage.
Half Moon Bay and the village are within an easy stroll, and this prized address is just moments to leading public and private schools, championship golf courses, bus stops and so much more for a lifestyle beyond compare.
Buxton Sandringham
11 Bay Road,
SANDRINGHAM VIC
3191
We'll give you a clear, honest assessment based on real market insights, so you can make informed decisions with confidence.
Local knowledge. Proven results. Trusted advice.
