Warm, bright and brimming with charm, this spacious family home offers modern comfort with timeless style, positioned in a prized pocket with easy access to beautiful beaches, schools, shops and...
Sharing Listing
B 3 b 1 C 4
Buxton Chelsea
406 Nepean Highway,
CHELSEA VIC
3196
Warm, bright and brimming with charm, this spacious family home offers modern comfort with timeless style, positioned in a prized pocket with easy access to beautiful beaches, schools, shops and...
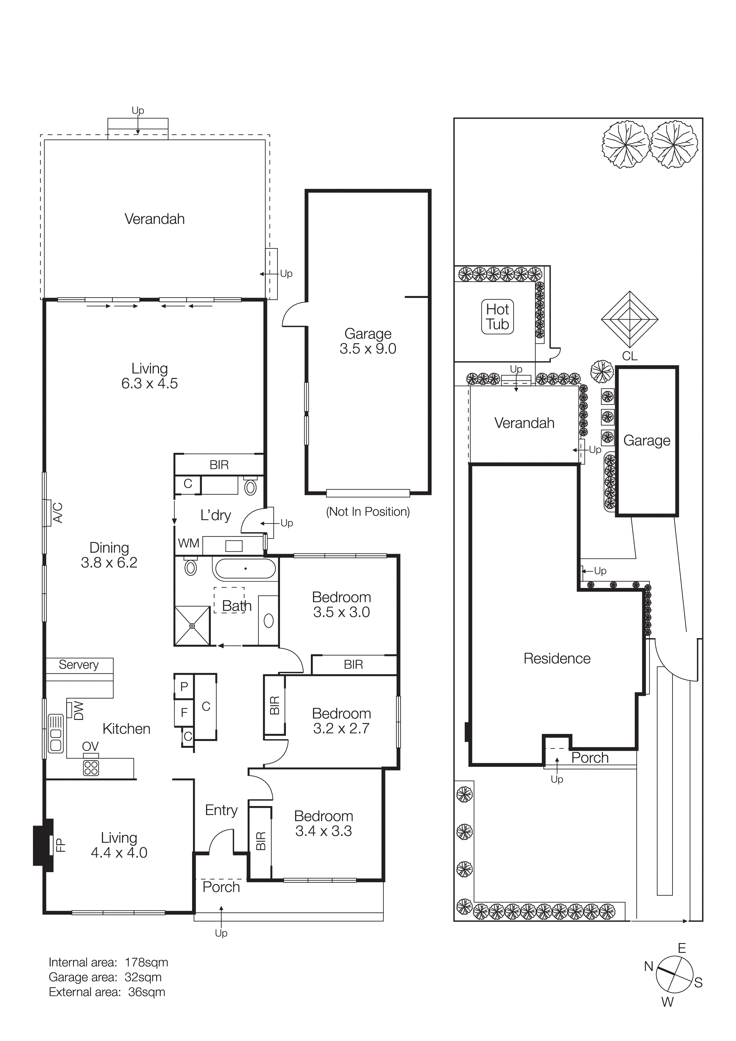
Warm, bright and brimming with charm, this spacious family home offers modern comfort with timeless style, positioned in a prized pocket with easy access to beautiful beaches, schools, shops and transport links. Set on approximately 821m2 amongst garden surrounds, this single-level beauty delivers generous proportions inside and out. Step inside and find an inviting front lounge room with a cosy wood heater and garden outlooks, while the central kitchen features a breakfast bench and stainless-steel appliances. The expansive open-plan living and dining space is light-filled and perfect for extended entertaining, with double sliding doors providing seamless access to a huge covered deck with cafe blinds and an enclosed spa area. You'll also love the large backyard with its sun-drenched north-east aspect and plenty of space for kids to play freely. All three bedrooms feature built-in robes, sharing a contemporary sky-lit bathroom with a walk-in rain shower and luxurious bath. The large laundry includes a second toilet. With all the essentials recently refreshed – plush new carpet, paint and repolished timber flooring – this wonderful home also features ducted heating, a split-system, large lockup garage and an automatic front gate. Positioned for family convenience just 600 metres from Chelsea Kindergarten and Chelsea Primary School, steps to the Longbeach Trail and walking distance to Bicentennial Park. Chelsea Village's cafes and shopping, the train station and golden stretches of sand are within easy reach.
Warm, bright and brimming with charm, this spacious family home offers modern comfort with timeless style, positioned in a prized pocket with easy access to beautiful beaches, schools, shops and transport links. Set on approximately 821m2 amongst garden surrounds, this single-level beauty delivers generous proportions inside and out. Step inside...
Warm, bright and brimming with charm, this spacious family home offers modern comfort with timeless style, positioned in a prized pocket with easy access to beautiful beaches, schools, shops and transport links. Set on approximately 821m2 amongst garden surrounds, this single-level beauty delivers generous proportions inside and out. Step inside and find an inviting front lounge room with a cosy wood heater and garden outlooks, while the central kitchen features a breakfast bench and stainless-steel appliances. The expansive open-plan living and dining space is light-filled and perfect for extended entertaining, with double sliding doors providing seamless access to a huge covered deck with cafe blinds and an enclosed spa area. You'll also love the large backyard with its sun-drenched north-east aspect and plenty of space for kids to play freely. All three bedrooms feature built-in robes, sharing a contemporary sky-lit bathroom with a walk-in rain shower and luxurious bath. The large laundry includes a second toilet. With all the essentials recently refreshed – plush new carpet, paint and repolished timber flooring – this wonderful home also features ducted heating, a split-system, large lockup garage and an automatic front gate. Positioned for family convenience just 600 metres from Chelsea Kindergarten and Chelsea Primary School, steps to the Longbeach Trail and walking distance to Bicentennial Park. Chelsea Village's cafes and shopping, the train station and golden stretches of sand are within easy reach.
Buxton Chelsea
406 Nepean Highway,
CHELSEA VIC
3196
We'll give you a clear, honest assessment based on real market insights, so you can make informed decisions with confidence.
Local knowledge. Proven results. Trusted advice.
