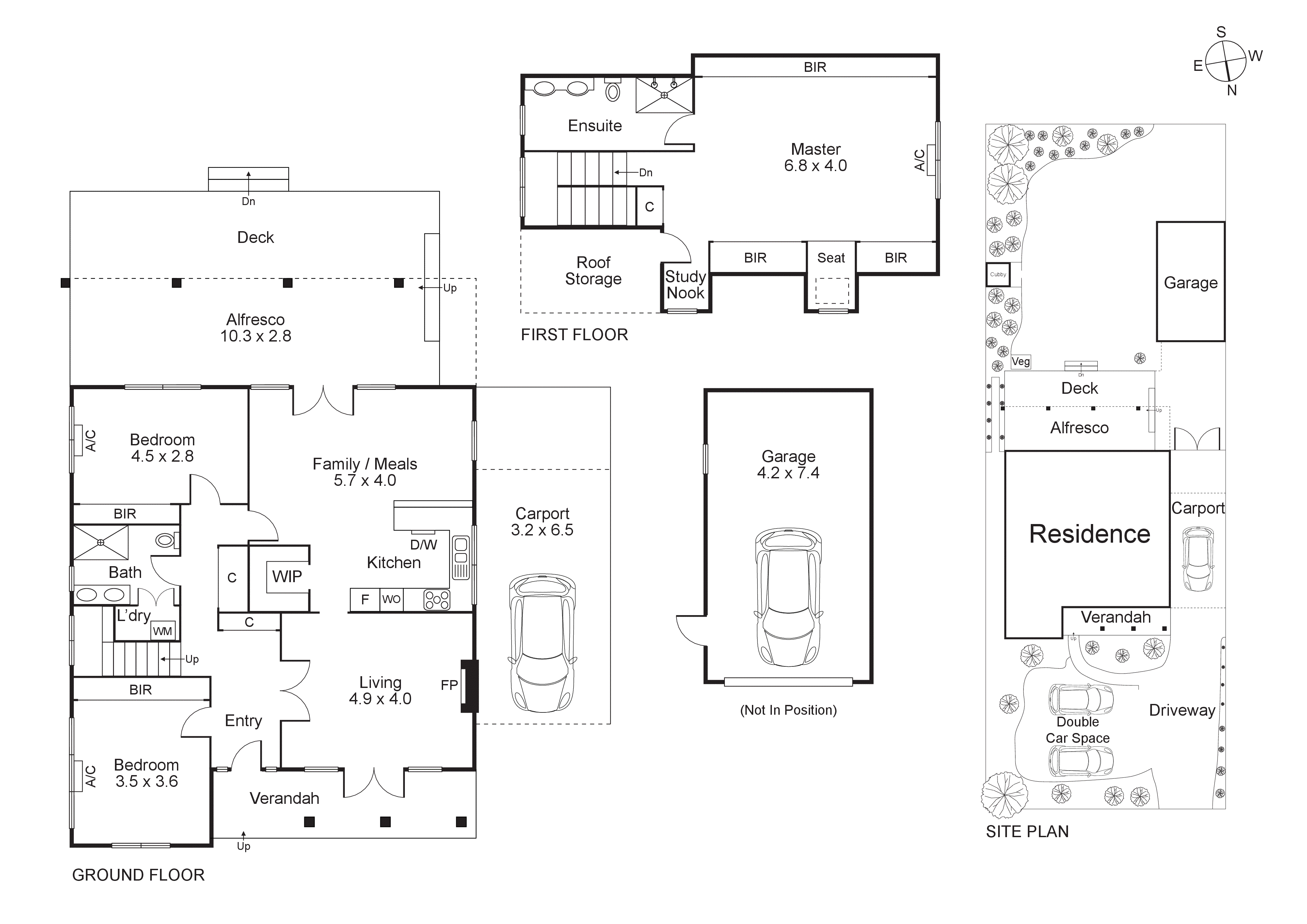
Directly opposite the leafy expanse of W.L. Simpson Reserve, this captivating three bedroom, two bathroom residence weaves timeless clinker-brick character with contemporary family sophistication in a wonderful family focused location.
A charming facade framed by lush established gardens introduces interiors where warmth, proportion, and natural...
Directly opposite the leafy expanse of W.L. Simpson Reserve, this captivating three bedroom, two bathroom residence weaves timeless clinker-brick character with contemporary family sophistication in a wonderful family focused location.
A charming facade framed by lush established gardens introduces interiors where warmth, proportion, and natural light unite in perfect harmony.
Timber floors extend from the entrance hall to a generous living room, enriched by plantation shutters and a beautiful open fireplace. French doors open north to a sunny front veranda - a tranquil vantage for morning coffee, framed by garden outlooks and the greenery of the reserve beyond.
At the heart of the home, a well-appointed kitchen features Westinghouse and Ariston appliances, an Asko dishwasher, and a walk-in pantry, connecting seamlessly to the dining area and a vast covered deck - a spectacular outdoor domain for effortless entertaining. Here, children and pets can play freely across secure, rear gardens, while adults gather under shelter for long, easy afternoons.
Two ground-floor bedrooms, each with robes and split-system comfort, share a bright central bathroom. Above, the private parents’ retreat offers a serene escape with fitted study nook, extensive wardrobes, and a sleek ensuite - a sanctuary elevated above the activity below.
Additional features include a discreet Euro laundry, plush carpet to all bedrooms, evaporative cooling, single carport, and a single garage.
With Hampton Bowls Club, Thomas Street Park, and Only About Children Childcare moments away - this refined family haven is within easy reach of Hampton Primary, Brighton Golf Course, and Hampton Street’s cafes, restaurants, shops, transport, and the beach.
For more information about this refined indoor-outdoor entertainer contact Richard Slade or Nickole Smirnov at Buxton Sandringham.