Positioned within a premium and tightly held commercial pocket, 1/37 Seymour Street presents an outstanding opportunity to occupy or invest with confidence. Offering excellent accessibility, strong...
Sharing Listing
C 4
Buxton Oakleigh
21-23 Atherton Road,
OAKLEIGH VIC
3166
Positioned within a premium and tightly held commercial pocket, 1/37 Seymour Street presents an outstanding opportunity to occupy or invest with confidence. Offering excellent accessibility, strong...
Positioned within a premium and tightly held commercial pocket, 1/37 Seymour Street presents an outstanding opportunity to occupy or invest with confidence. Offering excellent accessibility, strong natural light, and a versatile internal layout, this well-appointed office space is ideal for businesses seeking a professional and functional environment in a sought-after Ringwood location.
Just moments from public transport and within walking distance to Ringwood Train Station, the property combines convenience, presentation, and practicality — making it suitable for a wide range of commercial uses (STCA).
Property Highlights:
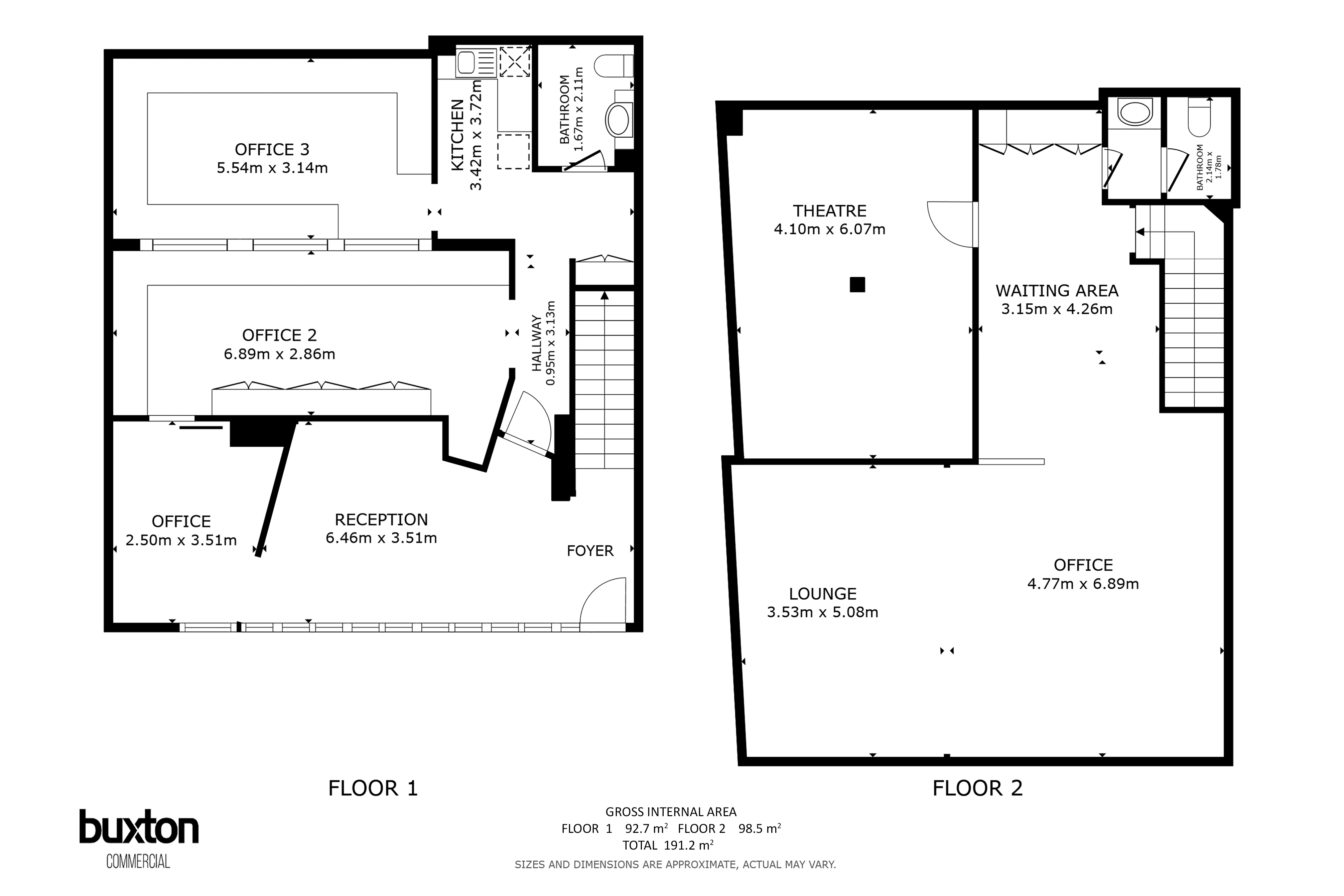
• Total Building Area: 190m2 (approx.)
Key Features:
• Light-filled office environment throughout
• Open-plan workspace with flexible configuration
• Separate boardroom / theatre room
• Glass-partitioned offices
• Heating and cooling throughout
• Built-in cabinetry and ample storage
• Four (4) allocated on-site car spaces
• Ample customer parking nearby
• Premium commercial location with excellent accessibility
• Suitable for a variety of business uses (STCA)
• Walking distance to Ringwood Train Station and public transport
Why This Property Works:
• Turnkey office space ready to occupy
• Flexible layout to suit a range of businesses
• Strong appeal for both owner-occupiers and investors
• Secure, professional setting in a tightly held precinct
• Excellent connectivity and staff convenience
With strong occupier demand and genuine versatility, 1/37 Seymour Street represents a smart and secure commercial opportunity. Properties of this calibre in such a convenient location are rarely offered — inspect with confidence.
Enquire today to arrange an inspection or request further information.
Positioned within a premium and tightly held commercial pocket, 1/37 Seymour Street presents an outstanding opportunity to occupy or invest with confidence. Offering excellent accessibility, strong natural light, and a versatile internal layout, this well-appointed office space is ideal for businesses seeking a professional and functional...
Positioned within a premium and tightly held commercial pocket, 1/37 Seymour Street presents an outstanding opportunity to occupy or invest with confidence. Offering excellent accessibility, strong natural light, and a versatile internal layout, this well-appointed office space is ideal for businesses seeking a professional and functional environment in a sought-after Ringwood location.
Just moments from public transport and within walking distance to Ringwood Train Station, the property combines convenience, presentation, and practicality — making it suitable for a wide range of commercial uses (STCA).
Property Highlights:
• Total Building Area: 190m2 (approx.)
Key Features:
• Light-filled office environment throughout
• Open-plan workspace with flexible configuration
• Separate boardroom / theatre room
• Glass-partitioned offices
• Heating and cooling throughout
• Built-in cabinetry and ample storage
• Four (4) allocated on-site car spaces
• Ample customer parking nearby
• Premium commercial location with excellent accessibility
• Suitable for a variety of business uses (STCA)
• Walking distance to Ringwood Train Station and public transport
Why This Property Works:
• Turnkey office space ready to occupy
• Flexible layout to suit a range of businesses
• Strong appeal for both owner-occupiers and investors
• Secure, professional setting in a tightly held precinct
• Excellent connectivity and staff convenience
With strong occupier demand and genuine versatility, 1/37 Seymour Street represents a smart and secure commercial opportunity. Properties of this calibre in such a convenient location are rarely offered — inspect with confidence.
Enquire today to arrange an inspection or request further information.
Buxton Oakleigh
21-23 Atherton Road,
OAKLEIGH VIC
3166
We'll give you a clear, honest assessment based on real market insights, so you can make informed decisions with confidence.
Local knowledge. Proven results. Trusted advice.
