Positioned within a coveted low-traffic, park-side enclave with no body corporate, this incredibly appealing and beautifully presented home impresses with its over-sized light-lavished spaces, superb lock & leave liveability and brilliant proximity to a raft of fabulous amenities and lifestyle attractions.
Step beyond the front door and discover...
Positioned within a coveted low-traffic, park-side enclave with no body corporate, this incredibly appealing and beautifully presented home impresses with its over-sized light-lavished spaces, superb lock & leave liveability and brilliant proximity to a raft of fabulous amenities and lifestyle attractions.
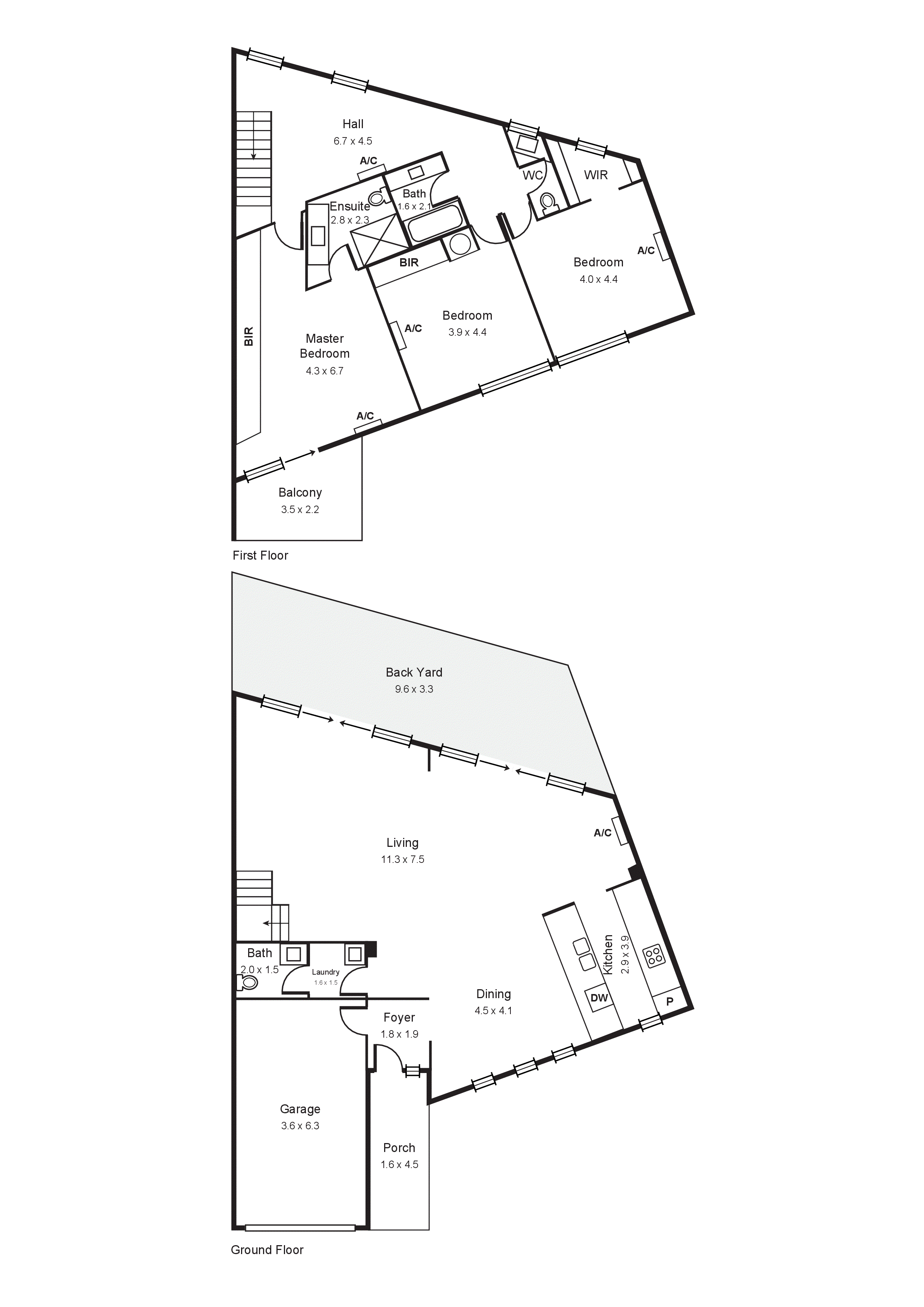
Step beyond the front door and discover a huge open plan entertaining domain and sophisticated kitchen with premium appliances - a zone designed for supreme comfort, effortless hosting and everything in between.
All three king-sized bedrooms are tucked away upstairs alongside a study area and smartly appointed family bathroom with separate WC. The primary bedroom is of retreat-like proportions and boasts extensive storage and a private ensuite - the remaining bedrooms also benefit from fitted storage.
Multiple split systems can be found throughout the inviting accommodation which features high ceilings both upstairs & down and also includes a full laundry, guest powder room, private easy-to-maintain courtyard and auto garage with direct house access.
Within easy reach of both Mentone village and Thrift park shopping centre for all daily needs, this prized pocket is close to bus stops, the Mentone Racecourse Reserve and the suburb’s private & independent schooling options. It also boasts dual zoning for Parkdale and Mentone Girls’ secondary colleges.
For more information about this impressively sized residence please contact Mathew Cox at Buxton Mentone.
Disclaimer:
The floorplan, room measurements, and land size provided are approximate and for illustrative purposes only. Buxton makes no representations or warranties regarding the accuracy, completeness, or reliability of any floorplan, drawing, or rendering used in the advertising materials. Buxton disclaims any liability for errors, omissions, or inaccuracies in the depiction of the land, property, or any described features. Prospective purchasers should conduct their own due diligence and seek independent professional advice to verify all information.