WHAT Beautifully renovated within the last five years, this stylish single-level residence offers modern comfort, flexible living and outstanding future potential. Set on 593sqm with approved plans...
Sharing Listing
B 3 b 2 C 2
Buxton Stonnington
92 Chapel Street,
WINDSOR VIC
3181
WHAT Beautifully renovated within the last five years, this stylish single-level residence offers modern comfort, flexible living and outstanding future potential. Set on 593sqm with approved plans...
WHAT
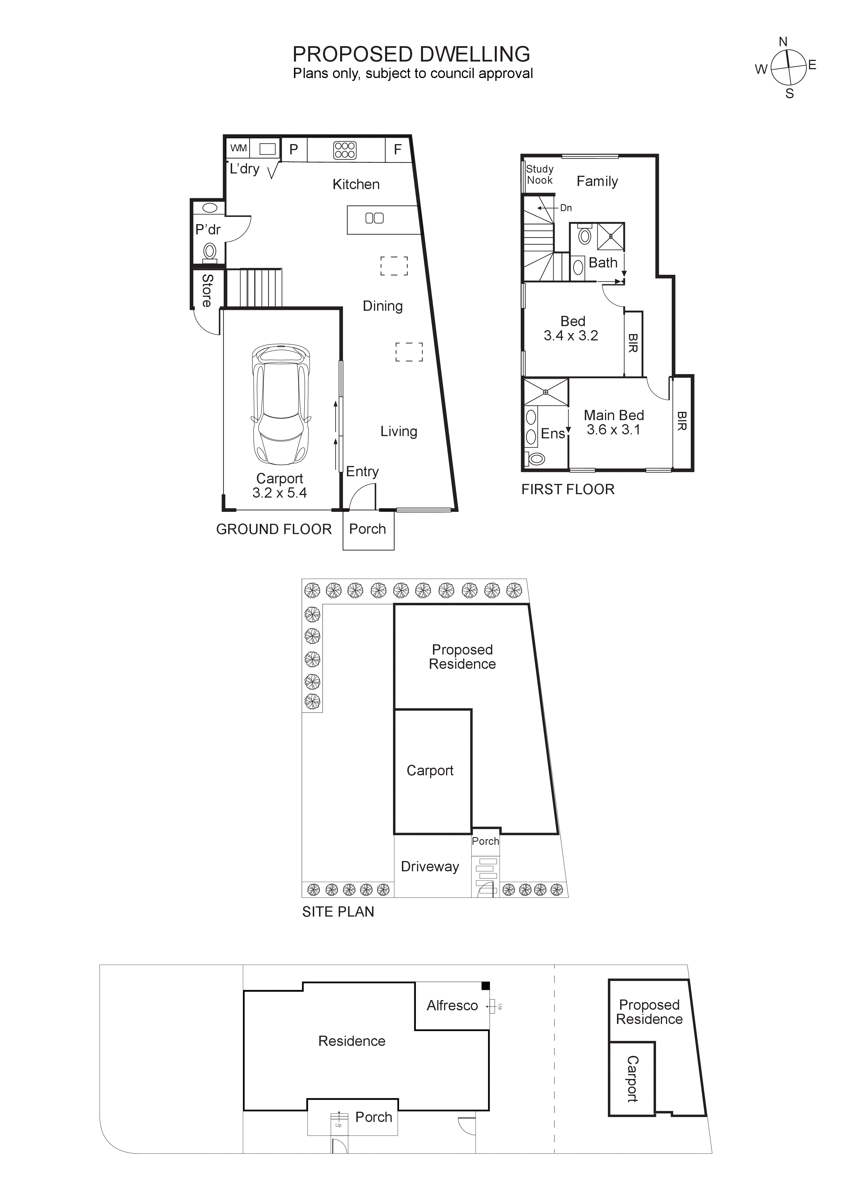
Beautifully renovated within the last five years, this stylish single-level residence offers modern comfort, flexible living and outstanding future potential. Set on 593sqm with approved plans for a rear dwelling (STCA), it features three bedrooms, a contemporary bathroom, two toilets, multiple living zones and a sleek open-plan kitchen. Enhanced with hydronic heating, Canada wood stove, split-system cooling, skylights, exposed timber beam ceilings, solar panels and a double-brick extension, it’s a turnkey opportunity in a fast-growing pocket.
• 3 bedrooms & 2 fully renovated bathrooms
• Open plan living with natural light
• Study nook with built-in desk
WHY
Perfect for families, investors or developers seeking future upside, this home blends stylish renovations with genuine long-term value. The designer kitchen is a standout, showcasing matte-black joinery, dual ovens, an oversized island, sleek stone-look surfaces and striking exposed brickwork beneath soaring timber-beam ceilings. Ample windows bring in natural light, while sliding doors provide seamless connection from the dining and living zones to the covered alfresco. Comfort is assured with hydronic heating, split-system cooling, updated flooring and high ceilings throughout.
• Smeg appliances, Bosch dishwasher, stone-look benchtops
• Hydronic heating, split-system cooling, solar panels & skylights
• Side driveway parking for multiple cars, trailers or work vehicles
WHERE
Positioned in a well-connected Heidelberg West pocket, the home offers unbeatable access to La Trobe University, Austin/Mercy Hospitals, Northland Shopping Centre and local parklands. Public transport, schooling options and major arterials are all within easy reach, making this a superb choice for homeowners or investors wanting convenience and capital growth in one.
• Close to La Trobe Uni & Heidelberg Station
• Near Northland, cafes, parks & hospitals
• Easy access to buses, major roads & local schools
WHAT
Beautifully renovated within the last five years, this stylish single-level residence offers modern comfort, flexible living and outstanding future potential. Set on 593sqm with approved plans for a rear dwelling (STCA), it features three bedrooms, a contemporary bathroom, two toilets, multiple living zones and a sleek open-plan kitchen....
WHAT
Beautifully renovated within the last five years, this stylish single-level residence offers modern comfort, flexible living and outstanding future potential. Set on 593sqm with approved plans for a rear dwelling (STCA), it features three bedrooms, a contemporary bathroom, two toilets, multiple living zones and a sleek open-plan kitchen. Enhanced with hydronic heating, Canada wood stove, split-system cooling, skylights, exposed timber beam ceilings, solar panels and a double-brick extension, it’s a turnkey opportunity in a fast-growing pocket.
• 3 bedrooms & 2 fully renovated bathrooms
• Open plan living with natural light
• Study nook with built-in desk
WHY
Perfect for families, investors or developers seeking future upside, this home blends stylish renovations with genuine long-term value. The designer kitchen is a standout, showcasing matte-black joinery, dual ovens, an oversized island, sleek stone-look surfaces and striking exposed brickwork beneath soaring timber-beam ceilings. Ample windows bring in natural light, while sliding doors provide seamless connection from the dining and living zones to the covered alfresco. Comfort is assured with hydronic heating, split-system cooling, updated flooring and high ceilings throughout.
• Smeg appliances, Bosch dishwasher, stone-look benchtops
• Hydronic heating, split-system cooling, solar panels & skylights
• Side driveway parking for multiple cars, trailers or work vehicles
WHERE
Positioned in a well-connected Heidelberg West pocket, the home offers unbeatable access to La Trobe University, Austin/Mercy Hospitals, Northland Shopping Centre and local parklands. Public transport, schooling options and major arterials are all within easy reach, making this a superb choice for homeowners or investors wanting convenience and capital growth in one.
• Close to La Trobe Uni & Heidelberg Station
• Near Northland, cafes, parks & hospitals
• Easy access to buses, major roads & local schools
Buxton Stonnington
92 Chapel Street,
WINDSOR VIC
3181
We'll give you a clear, honest assessment based on real market insights, so you can make informed decisions with confidence.
Local knowledge. Proven results. Trusted advice.
