Tucked quietly behind the vibrant hum of Carlisle Street, “Le Cottage” by JFKDESiGN is a rare and remarkable offering – the award-winning designer’s own home, where craftsmanship, spatial ingenuity...
Tucked quietly behind the vibrant hum of Carlisle Street, “Le Cottage” by JFKDESiGN is a rare and remarkable offering – the award-winning designer’s own home, where craftsmanship, spatial ingenuity and refined detailing come together with effortless clarity. Originally a modest two-bedroom cottage, the residence has been transformed through an extensive and highly considered renovation into a sophisticated sanctuary that maximises space, storage and natural light on a compact site.
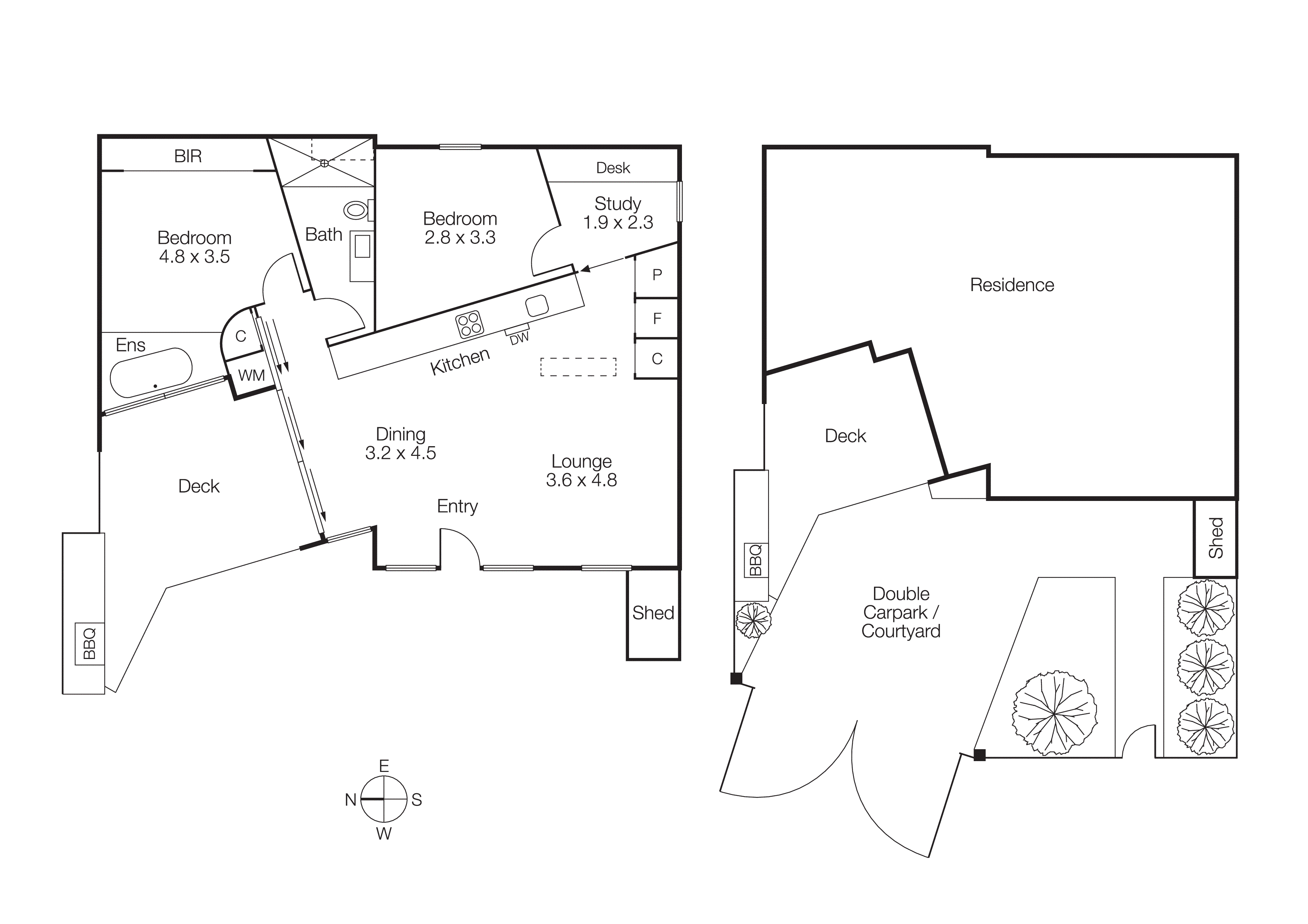
At its heart, a bespoke, airy living/kitchen/dining domain unfolds in a free-flowing configuration, with full-height double-glazed sliding doors opening seamlessly to a sun-drenched, north-facing garden courtyard The result is a true indoor–outdoor environment that feels far larger than its footprint suggests. Warm, textural interiors are grounded by high-quality materiality and thoughtful planning throughout. Spotted gum timber flooring, custom joinery and clever storage solutions create a calm, uncluttered aesthetic, while premium inclusions elevate everyday living.
The sleek black chef’s kitchen is appointed with a Smeg oven, induction cooktop, integrated Bosch dishwasher and built-in fridge, while a Euro laundry is cleverly concealed behind a curved wall, providing additional linen storage without compromising usable space.
Ducted heating and evaporative cooling ensure year-round comfort. One of the home’s most memorable moments is revealed in the main bedroom, where a classic claw-foot bath is positioned beneath windows overlooking the deck and landscaped greenery beyond – a beautiful expression of the home’s ethos of overlapping uses and enhanced liveability. The elegant bathroom continues the layered material palette, with warm timber cladding complemented by exposed brick in the study, feature lighting, and bluestone laid in refined herringbone patterns.
Looking ahead, council and OC-approved plans allow for an upper-level extension, enabling the home to evolve into a three-bedroom plus study, two-living, two-bathroom residence. This future transformation enhances both functionality and long-term value while preserving the home’s intimate charm. Proudly recognised on a national stage, “Le Cottage” is a triple award-winner, celebrated by Design Matters National and the Building Designers Association of Victoria for its ingenuity, technical excellence and skillful resolution of a challenging small site – one where internal living space is balanced beautifully with garden and courtyard zones.
Perfect as it stands, and even more compelling with its approved future vision, this is a refined, design-led sanctuary with genuine upside, set within one of St Kilda’s most walkable and amenity-rich neighbourhoods.
