Expressions of Interest Close Date Saturday 29th November at 4:00pm
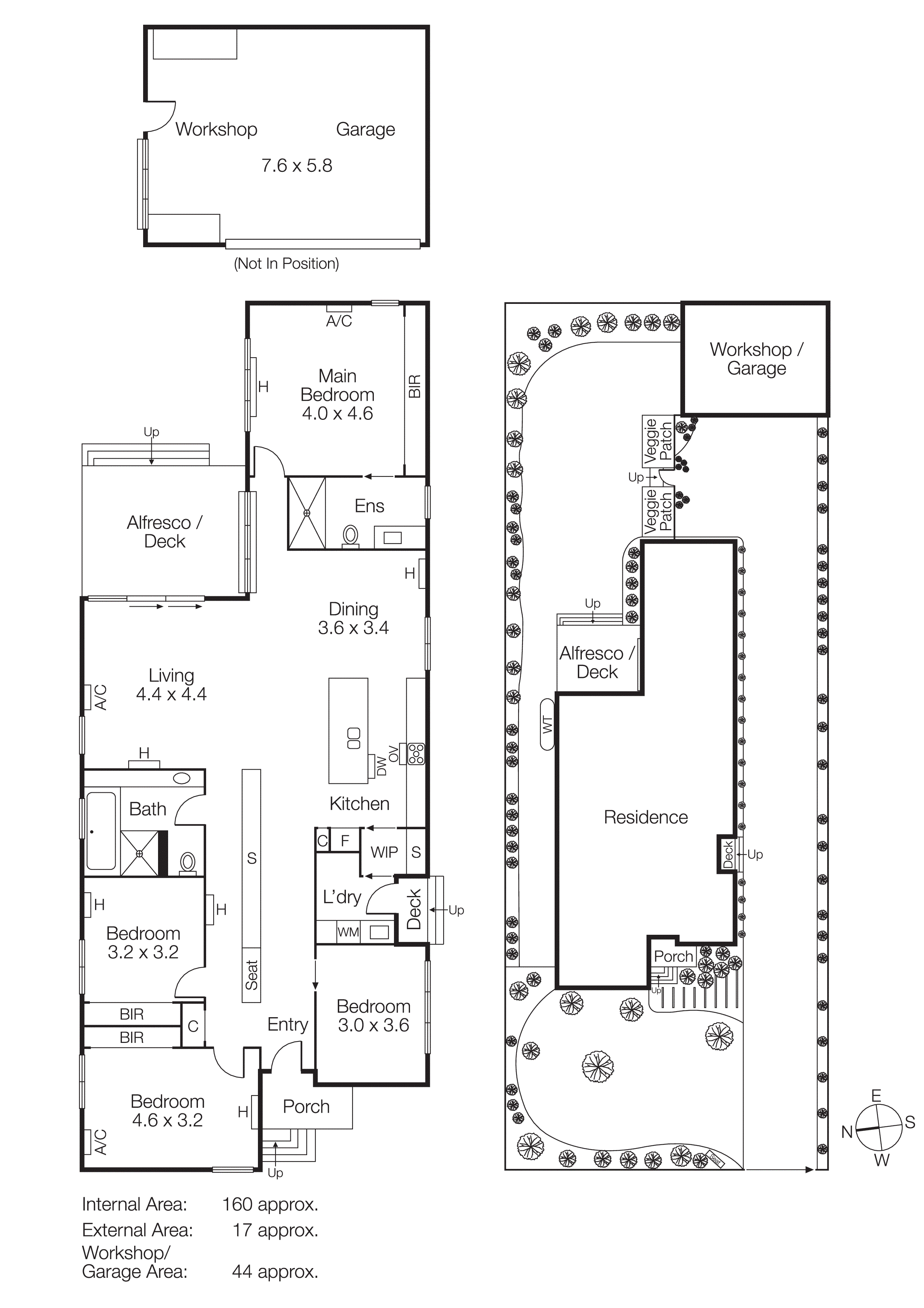
Showcasing a striking façade and beautiful landscaped gardens, this architecturally designed family home delivers uncompromising luxury and contemporary beachside living. Positioned within a short stroll of the sand, schools and the station, you'll enjoy the relaxed turnkey...
Expressions of Interest Close Date Saturday 29th November at 4:00pm
Showcasing a striking façade and beautiful landscaped gardens, this architecturally designed family home delivers uncompromising luxury and contemporary beachside living. Positioned within a short stroll of the sand, schools and the station, you'll enjoy the relaxed turnkey lifestyle in this exclusive pocket. Set beneath vaulted ceilings with clerestory windows, the stunning single-level interior boasts an inviting open living and dining area bathed in natural light. The adjoining gourmet kitchen features sleek cabinetry and an island bench, a pantry, SMEG cooker (900mm) and Bosch dishwasher. Outdoors, you’ll love the backyard with its covered entertaining deck and servery for easy hosting, lush lawn and established veggie gardens, as well as a remote garage with workshop and extensive parking behind a secure automatic front gate. The four bedrooms (three fitted with robes) and two bathrooms are serene retreats, including a stylish main with ensuite and the generous family bathroom – both with blissful walk-in rain showers. Hydronic heating, split systems, and double-glazing enhance the appeal, alongside gorgeous timber flooring and elegant floor-to-ceiling custom joinery. Located in a golden pocket with Kananook Primary School and Kananook Station, sports reserves, playgrounds and pristine beaches within walking distance. Vibrant Seaford Village is minutes away, along with Frankston’s waterfront precinct and freeways.