From its sophisticated single-fronted façade to its luxurious oversized rear living, this fully renovated three/four bedroom Victorian cottage makes a striking impression with its generous modern interior layout offering the perfect fusion of classic charm with contemporary design.
Not only is this home the dream lifestyle residence but it is...
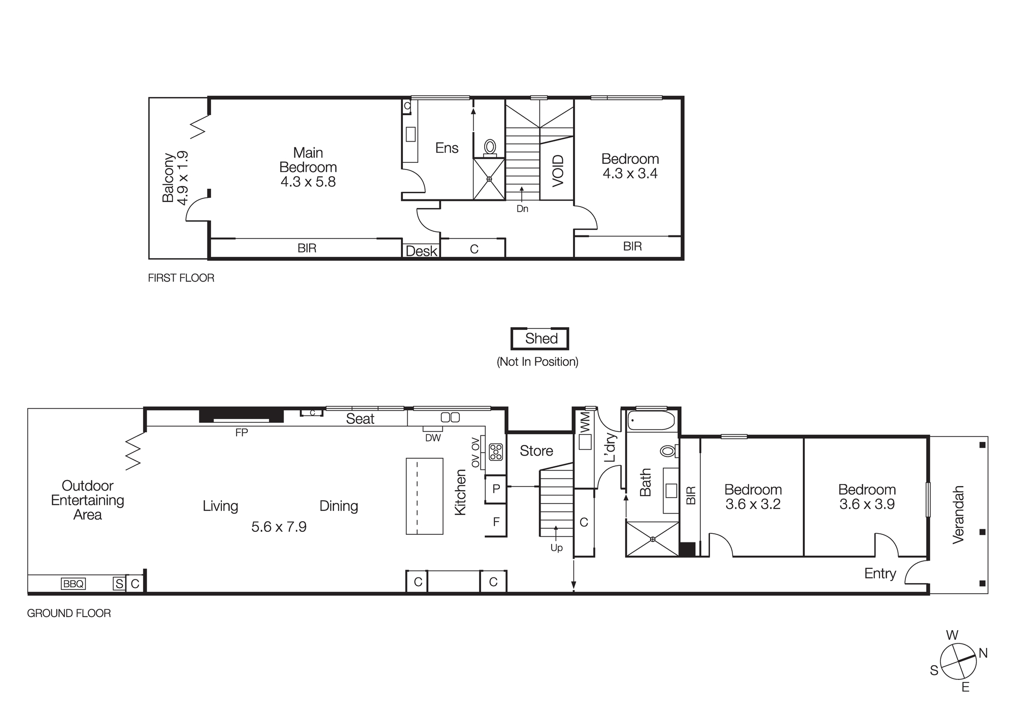
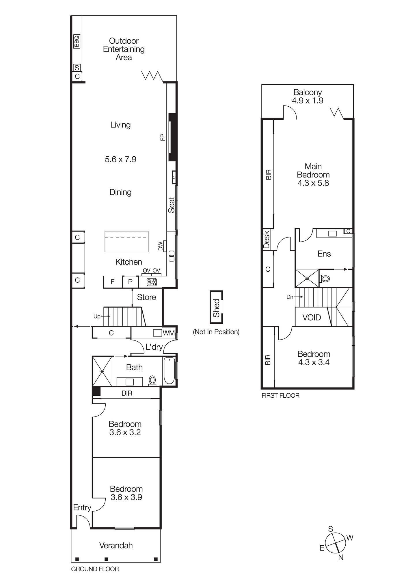
From its sophisticated single-fronted façade to its luxurious oversized rear living, this fully renovated three/four bedroom Victorian cottage makes a striking impression with its generous modern interior layout offering the perfect fusion of classic charm with contemporary design.
Not only is this home the dream lifestyle residence but it is also a stylish sanctuary boasting spacious proportions and immaculate intricate finishes. Enjoying a soaring entrance hall, three generous bedrooms with master including ensuite & private balcony, a fourth bedroom or formal lounge/snug/home office, stunning central bathroom, bespoke kitchen featuring stainless steel appliances (inc double ovens) & stone benches overlooking the open plan living/dining domain. To complete this designer offering there is a tasteful and private lush green sanctuary to enjoy from the luxury of the seamless indoor/outdoor living zone/s.
Includes ducted heating/cooling, gas fireplace, separate laundry, outdoor kitchen, and off-street parking. Close to Martin St precinct, Gardenvale station, Kamesburgh Gardens, schools and a walk to the beach.
*Please note this property is unfurnished and furnishings are for illustrative purposes only*
*You MUST register for an inspection and we ask that you also confirm your attendance. AN AGENT WILL NOT BE PRESENT IF YOU DO NOT REGISTER and CONFIRM. Your consideration and co-operation is appreciated.*