For those seeking modern carefree living in an outstanding location, this sun-drenched 3-bedroom, 2.5 bathroom residence delivers space, sunshine and beachside bliss. Positioned within strolling distance of the village, cafes and pristine stretches of white sand – you’re going to love this ultra-convenient lifestyle haven. Practically standalone...
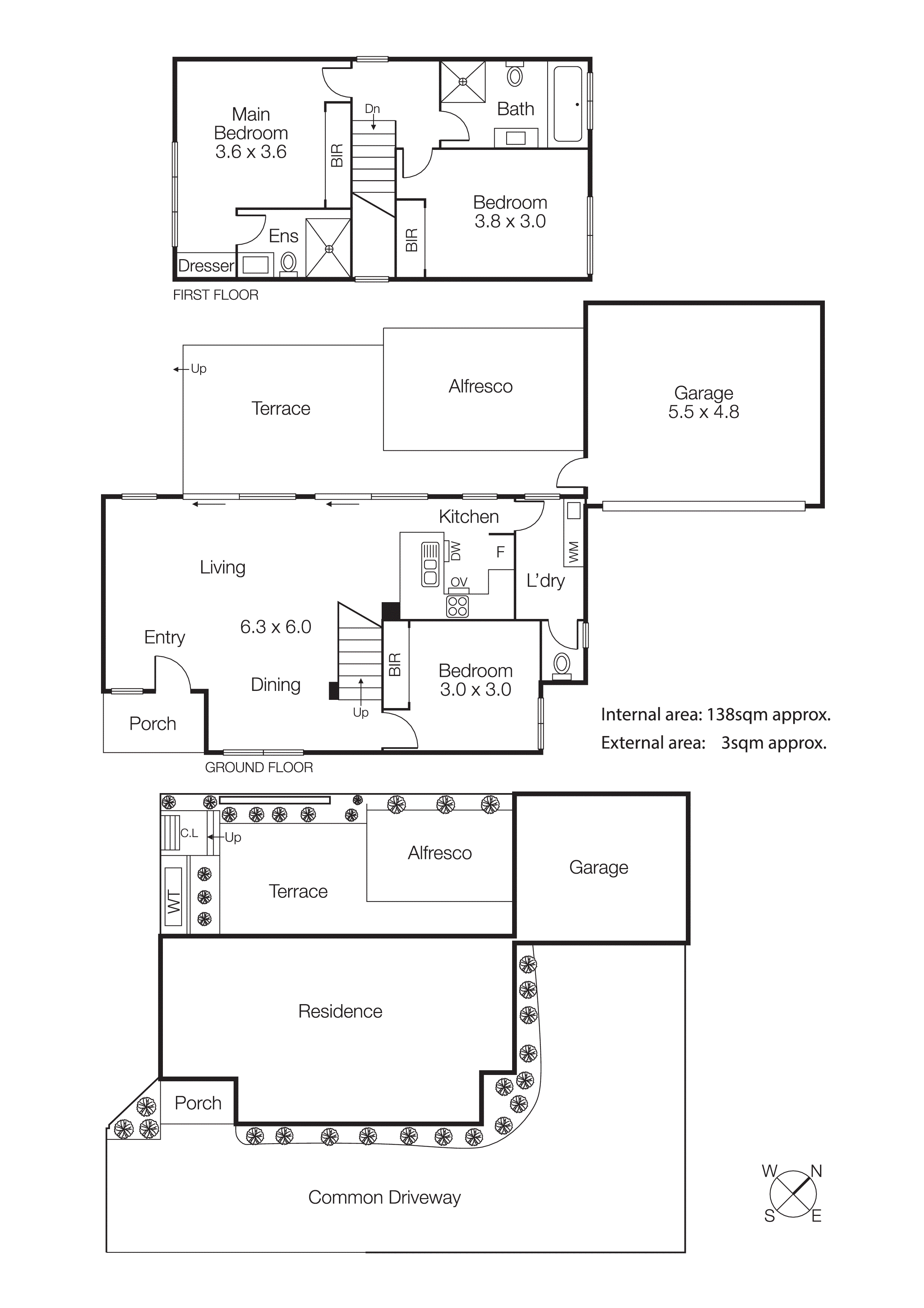
For those seeking modern carefree living in an outstanding location, this sun-drenched 3-bedroom, 2.5 bathroom residence delivers space, sunshine and beachside bliss. Positioned within strolling distance of the village, cafes and pristine stretches of white sand – you’re going to love this ultra-convenient lifestyle haven. Practically standalone and one of only three homes, inside you’ll find open-plan living and dining bathed in northern sunshine, complete with dual sliding doors for easy indoor-outdoor entertaining. The sun-drenched courtyard is private and low-maintenance, with a covered deck and café blind perfect for lazy summer afternoons and alfresco barbeques with family and friends. The immaculate kitchen is equipped with stainless-steel appliances and ample storage, while the flowing floorplan also incorporates three spacious robed bedrooms, with one desirably positioned at ground-level. Upstairs you’ll find two serene bedrooms, the master bedroom with ensuite, as well as a gleaming family bathroom with a separate shower and bath. This impressive home also features a remote double garage, large laundry with third toilet, ducted heating, evaporative cooling, plus ceiling fans and TV wall brackets to all bedrooms. Whether you’re in search of a relaxed coastal lifestyle or investment, this sun-filled sanctuary is situated only 500 metres from Carrum Village’s popular cafes, the station and ALDI. Stunning white sandy beaches, Carrum Primary School, Patterson River Secondary College and Roy Dore Reserve are just around the corner, with freeway access moments away.