Position, Proportions & Potential in the Heart of Yarraville
Set on a generous approx. 445sqm allotment along one of Yarraville’s most established streets, this three-bedroom home presents an exceptional opportunity to secure a substantial landholding in a location synonymous with lifestyle appeal and long-term growth.
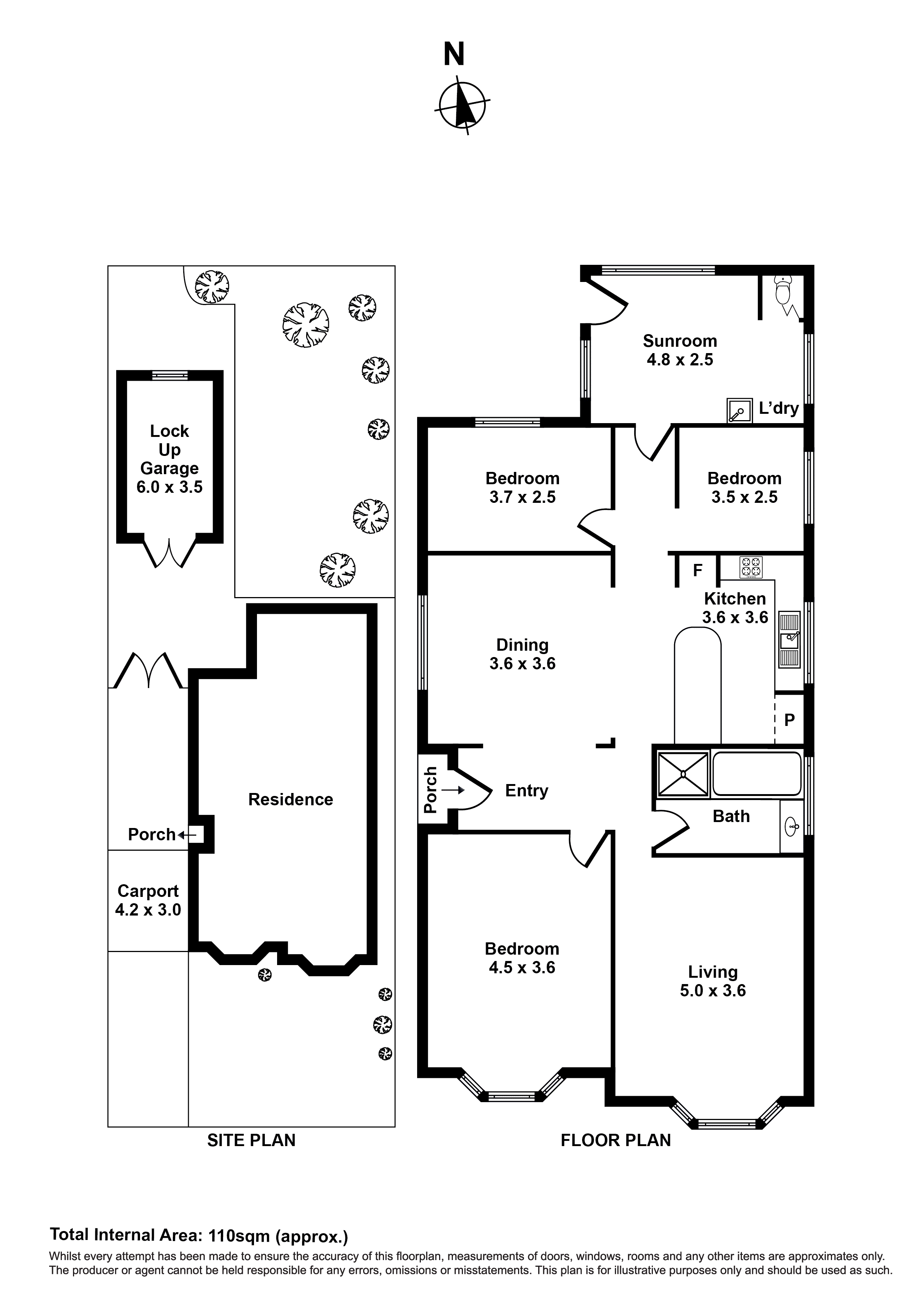
The existing residence...
Position, Proportions & Potential in the Heart of Yarraville
Set on a generous approx. 445sqm allotment along one of Yarraville’s most established streets, this three-bedroom home presents an exceptional opportunity to secure a substantial landholding in a location synonymous with lifestyle appeal and long-term growth.
The existing residence offers a traditional footprint, providing scope to renovate, rebuild or redevelop (STCA), while the true value lies in the compelling combination of block size, orientation and blue-chip positioning.
Enjoy a premium Inner West lifestyle with immediate access to the vibrant cafés, boutiques and cinema of Anderson Street, the convenience of Yarraville Square, local parks and sporting facilities, and seamless city connectivity via Yarraville Station, bus routes and major arterials.
Families will be particularly drawn to the highly regarded Wembley Primary School zoning, further reinforcing the long-term appeal of this tightly held pocket, while surrounding quality homes underscore the area’s enduring desirability.
A rare opportunity where location and land take centre stage, offering limitless potential in one of Yarraville’s most sought-after settings.