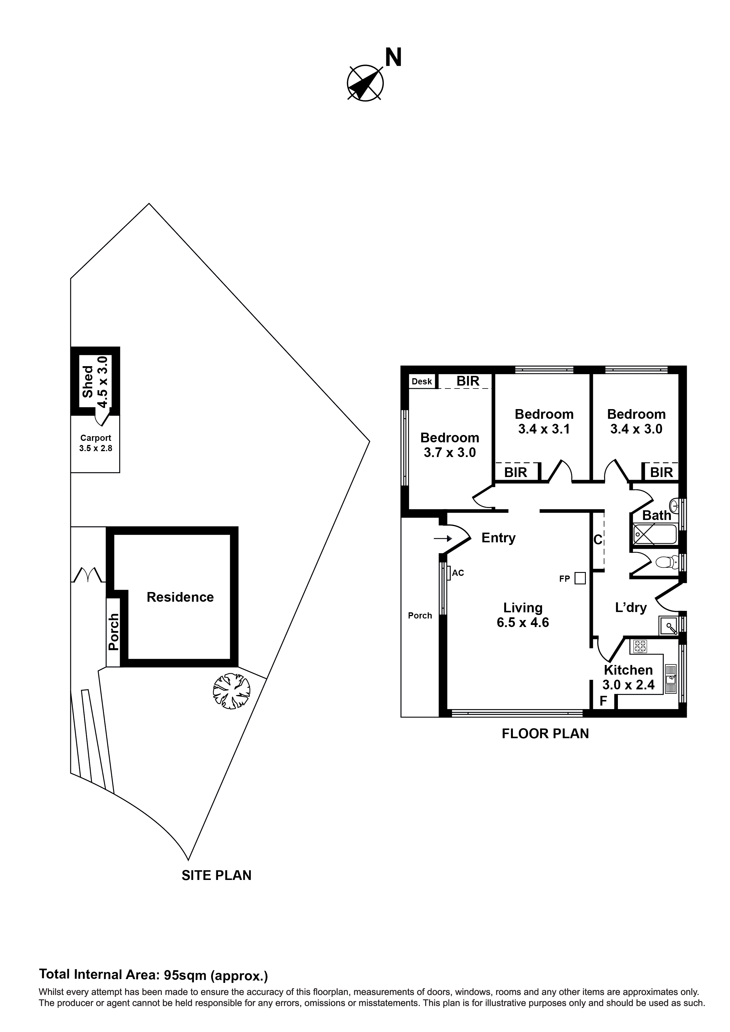
Quietly positioned within a peaceful Laverton court, this three-bedroom home occupies an impressive approx. 865sqm allotment, presenting an outstanding opportunity to secure a substantial parcel of land in a location defined by convenience, connectivity and long-term promise.
The existing residence offers a traditional layout, providing scope to...
Quietly positioned within a peaceful Laverton court, this three-bedroom home occupies an impressive approx. 865sqm allotment, presenting an outstanding opportunity to secure a substantial parcel of land in a location defined by convenience, connectivity and long-term promise.
The existing residence offers a traditional layout, providing scope to renovate, rebuild or explore redevelopment opportunities (STCA), while the true value lies in the generous proportions, court setting and family-friendly surroundings.
Enjoy everyday ease with Laverton Station just 350m away, providing direct access to the CBD, while local shopping strips, cafés and essential services are all close at hand. The nearby Aircraft Station precinct, parklands and community facilities further enhance lifestyle appeal, complemented by excellent access to major arterials including the Princes Freeway and West Gate.
Families will appreciate the property’s zoning to Laverton P–12 College, reinforcing its appeal as a long-term home or investment in an area continuing to evolve and grow.
A rare opportunity to secure scale, position and potential in one of Laverton’s most convenient and connected pockets.