Timeless Design | Contemporary Home with Premium Finishes Step into refined modern luxury with this brand-new, architecturally designed residence, ideally positioned approximately 15 minutes from...
Timeless Design | Contemporary Home with Premium Finishes
Step into refined modern luxury with this brand-new, architecturally designed residence, ideally positioned approximately 15 minutes from the city and moments from the Yarraville Village lifestyle amenities.
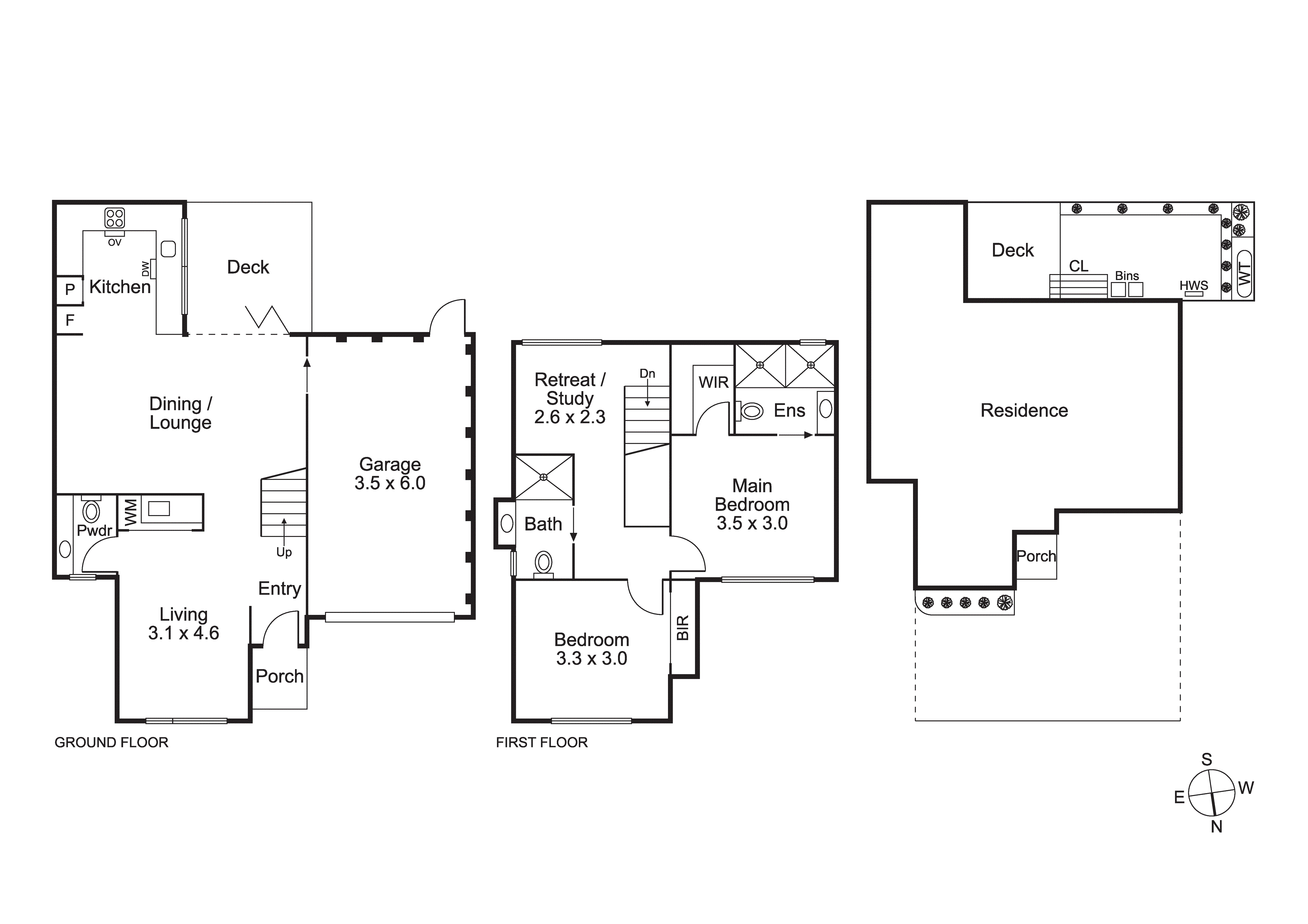
Showcasing high ceilings, premium fixtures, and thoughtfully curated spaces, this home seamlessly blends sophisticated design with everyday comfort. The open-plan living and dining area flows effortlessly through double-glazed bi-fold doors to a sunlit merbau deck perfect for alfresco dining, entertaining, or relaxed weekend gatherings.
At the heart of the home is a stunning designer kitchen, meticulously crafted for both beauty and functionality, featuring:
• Custom-designed Polytec cabinetry
• Exquisite textured matte stone finishes throughout
• Feature stone benchtops with waterfall edge
• Induction glass cooktop
• Inbuilt air-fryer oven
• Dishwasher
• LED feature lighting
A light-filled study or retreat provides an ideal work-from-home space, while two spacious bedrooms and two luxurious designer bathrooms offer exceptional accommodation. The master bedroom is a private sanctuary, complete with a beautifully appointed ensuite.
Additional premium features include:
• Square-set high ceilings throughout (excluding garage)
• Custom Polytec cabinetry to bathrooms, laundry, and study
• European engineered hardwood flooring in a light oak white-wash finish
• Luxury loop carpet to all bedrooms
• Designer brass fixtures and fittings throughout
• Frameless shower screens, marble stone basins
• Overhead designer cabinetry
• Elegant brass door hardware
• S-fold sheer drapes throughout for a refined finish
• Zoned ducted heating and refrigerated cooling
• Double-glazed windows throughout
• TV points to all bedrooms, living, dining, and retreat/study
• Video doorbell intercom and alarm system
• Lock-up garage
• Lush, professionally landscaped gardens
Enjoy ultimate convenience with trains and buses within walking distance, ensuring an effortless commute. Spend your weekends exploring Yarraville Village, relaxing at the nearby beach, enjoying local parks, and accessing excellent schools, all just minutes away.
This is a rare opportunity to secure a turnkey contemporary home where luxury, lifestyle, and location come together in perfect harmony.
