Situated in a sought after parkside pocket, this recently completed contemporary standalone residence will impress with its family-sized proportions and amenity rich locale. Spanning two levels of sophisticated living, generous accommodation ensures room for families to grow with 4-bedrooms, 2-bathrooms and 2-living zones. The moment you step...
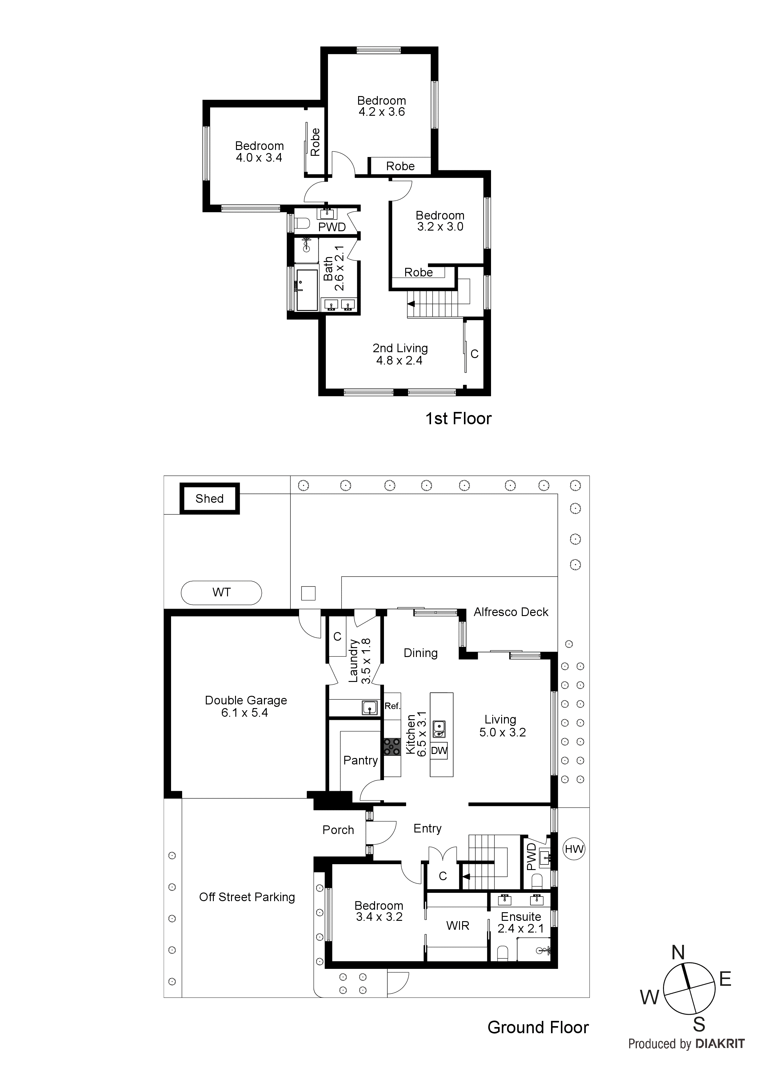
Situated in a sought after parkside pocket, this recently completed contemporary standalone residence will impress with its family-sized proportions and amenity rich locale. Spanning two levels of sophisticated living, generous accommodation ensures room for families to grow with 4-bedrooms, 2-bathrooms and 2-living zones. The moment you step inside, exceptional style and quality is evident with its gorgeous fully-tiled terrazzo rain shower bathrooms, matte black finishes, stone surfaces and timber-style accents. Beautiful natural light streams throughout, while 3m high ceilings enhancing the bright, airy feel of the stylish open plan living and dining space, flowing seamlessly to a sun drenched deck for alfresco dining and entertaining. Further elevating the living space is a contemporary gourmet kitchen with a huge walk-in pantry and premium Westinghouse stainless steel appliances, including a 900mm oven and 5-burner cooktop. Desirably set at ground level, the luxurious main bedroom is a serene haven with its enormous walk-in robe, and lavish double vanity ensuite, while upstairs is the perfect kids retreat with a sitting room/rumpus, three robed bedrooms and chic main bathroom with separate bath and shower. The custom laundry offers access to both the double remote garage and outdoors, where you’ll find irrigated architect landscaped gardens and plenty of space to enjoy with minimal maintenance. Appointed with powder rooms on each level, excellent storage, a garden shed and water tank. Positioned just steps from public transport, the park, playground and pre-school, this outstanding home is approximately 550m from Belvedere Park Primary School, the Seaford Hotel, Ritchies IGA, takeaway and shopping. Seaford Village, stunning beaches and freeways are also within easy reach.