Luxury is defined in this stunning G1 apartment, showcasing elegant interiors, high end finishes, contemporary comforts and a magnificent terrace balcony with panoramic views from the city skyline to...
Luxury is defined in this stunning G1 apartment, showcasing elegant interiors, high end finishes, contemporary comforts and a magnificent terrace balcony with panoramic views from the city skyline to the bay. Designed for spacious indoor-outdoor living set against a stunning backdrop of everchanging vistas, you will enjoy every moment spent in this immaculately presented property. Set on the cusp of the CBD and medical precinct, a short walk from the Waterfront, GMHBA Stadium, Deakin Waterfront, and soon-to-open Nyaal Banyul Convention Centre, the location places you on the doorstep of the city’s best attractions, events and amenities.
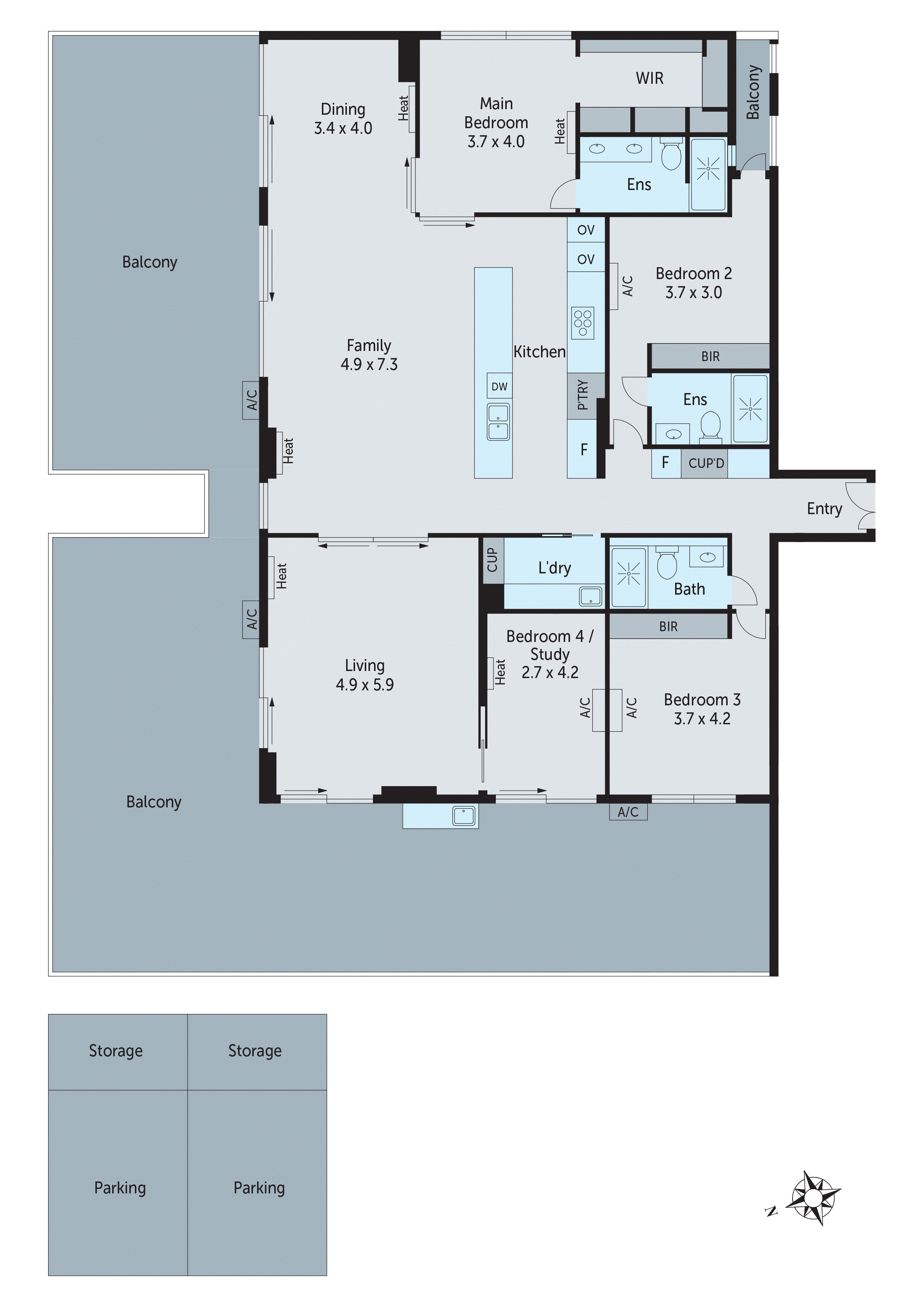
Entry to the apartment will immediately impress, featuring contemporary interiors, light-filled spaces, engineered timber flooring, and square set ceilings. A spacious open plan kitchen, dining and living area forms the heart of the home, with large glass sliders framing the city skyline whilst creating a seamless connection with the outdoor terrace. The high end kitchen features a striking 5 metre island bench with waterfall stone benchtops, breakfast bar seating and open shelving, dual 600mm Siemens ovens with pyrolytic, microwave and steam functionality, 900mm Siemens gas cooktop, Qasair Rangehood, Zip boiling and chilled water tap, integrated Miele dishwasher, integrated Subzero fridge-freezer with ice maker, sleek cabinetry and a mirrored splashback reflecting your view of iconic St Mary’s Basilica. An integrated Subzero dual zone wine fridge ensures your red and white collections are stored at optimum temperature.
Double doors open to a generous second lounge, offering a versatile space that can be closed off for a quiet retreat, or opened to extend the main living. Both living areas connect with the wrap-around terrace balcony which offers ample space for dining and lounging zones, barbecue and sink facilities, gas, power and water connection. The terrace is thoughtfully designed to offer alternative aspects, allowing you to enjoy the sun or shade, along with vibrant city and bay views.
The main bedroom is a luxurious retreat, featuring fully fitted walk-in robes and a tastefully presented ensuite finished in floor to ceiling tiles, with double stone-topped vanity and a frameless glass shower with dual rainmaker and hand-held shower heads. Bedroom two includes built-in robes, an ensuite and a private balcony, bedroom three adjoins a third separate bathroom, and the fourth room offers versatility as a bedroom or home office.
Equipped for optimum comfort and functionality, additional features include hydronic heating throughout, zoned ducted heating and cooling, two split systems, ceiling fans to all bedrooms, electric double blinds to all windows, electric external blinds to west windows, full laundry with storage, and an entrance nook with mirror and storage facilities. The apartment includes three secure undercover parking spaces and five storage cages.
Immaculately maintained by one owner, here is your exclusive window of opportunity to become the next custodian of this prestigious property. Promising a lifestyle of luxury, enjoyment and convenience, its premium inner-city position delivers strong long term investment appeal in a location poised for continued growth.
