Beautifully presented and flooded with natural light, this two-bedroom haven offers exceptional space both inside and out – tucked within a peaceful pocket just minutes from the beach. One of only four residences and set on a substantial 249m² (approx.), this standalone gem combines move-in-ready appeal with lifestyle convenience. The spacious...
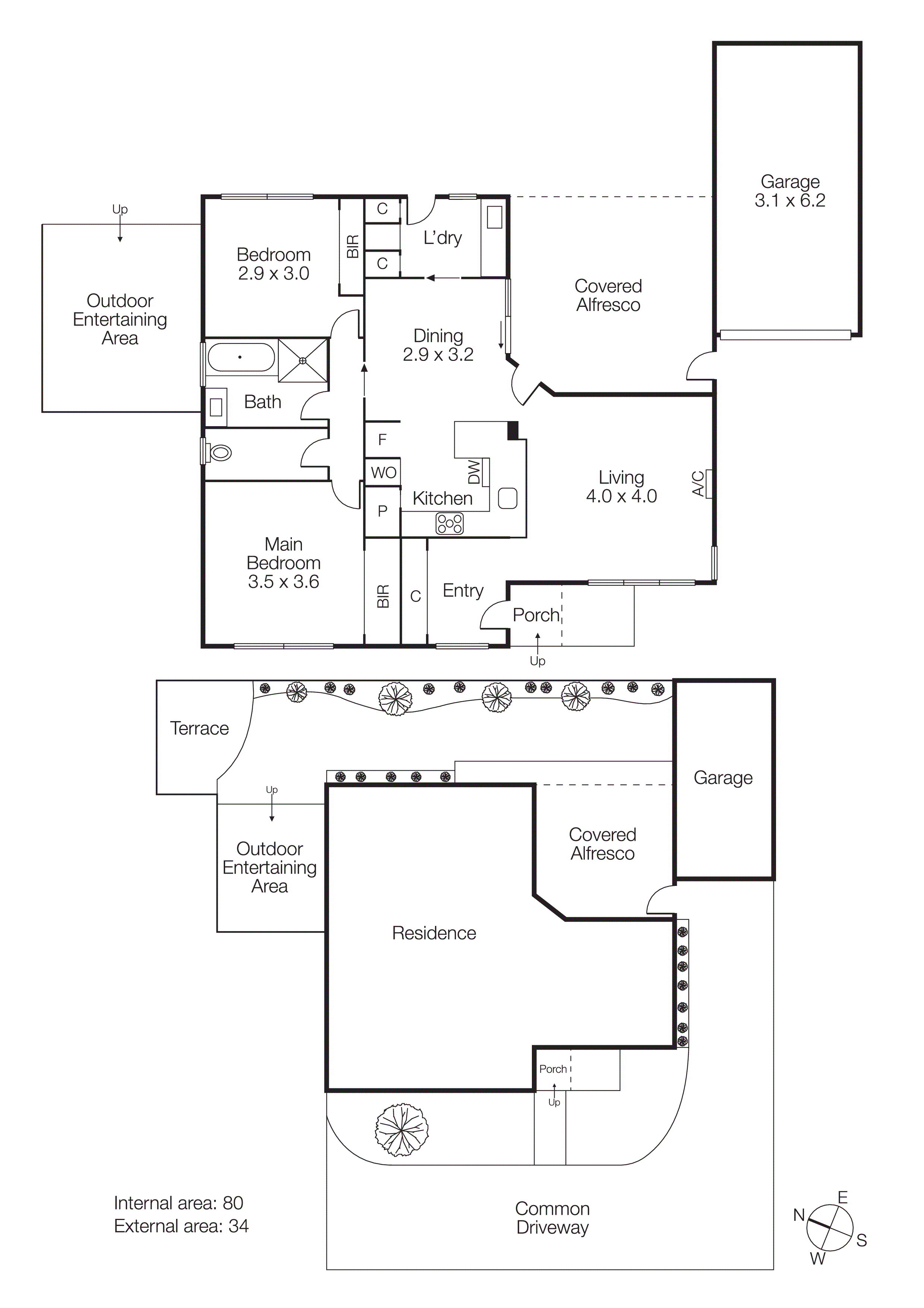
Beautifully presented and flooded with natural light, this two-bedroom haven offers exceptional space both inside and out – tucked within a peaceful pocket just minutes from the beach. One of only four residences and set on a substantial 249m² (approx.), this standalone gem combines move-in-ready appeal with lifestyle convenience. The spacious living room features elegant timber flooring and flows seamlessly to a stylish kitchen and dining area, which opens onto covered alfresco decking – perfect for year-round entertaining. The sleek kitchen boasts stone surfaces, a built-in microwave, wall oven, dishwasher and refrigerator plumbing, making cooking for yourself or guests effortless. Two generous bedrooms, both with extensive built-in robes and large windows, are quietly positioned off the hallway, while the modern bathroom features a separate bath and shower. Highlights include ducted heating, a split-system, ceiling fans, front security shutters, rear awnings, a single remote garage plus additional driveway parking. A dedicated laundry and exceptional entrance storage add extra appeal! The outdoor space is equally impressive. Enjoy the enviable north-east aspect, green lawn that’s perfect for pets, low-maintenance garden, and your choice of three alfresco zones to relax and chase the sunshine. Walk to buses, the local general store, Longbeach Trail and Bicentennial Park. Vibrant Chelsea Village, the train station and beach are within easy reach.