Delivering light-filled low maintenance accommodation across one easy level, this well-presented townhouse will capture the hearts of young families and downsizers alike. With its own street front and spacious layout, it further pleases with a prized location in the sought-after Beaumaris and Mentone Girls’ secondary college zones.
Beyond the...
Delivering light-filled low maintenance accommodation across one easy level, this well-presented townhouse will capture the hearts of young families and downsizers alike. With its own street front and spacious layout, it further pleases with a prized location in the sought-after Beaumaris and Mentone Girls’ secondary college zones.
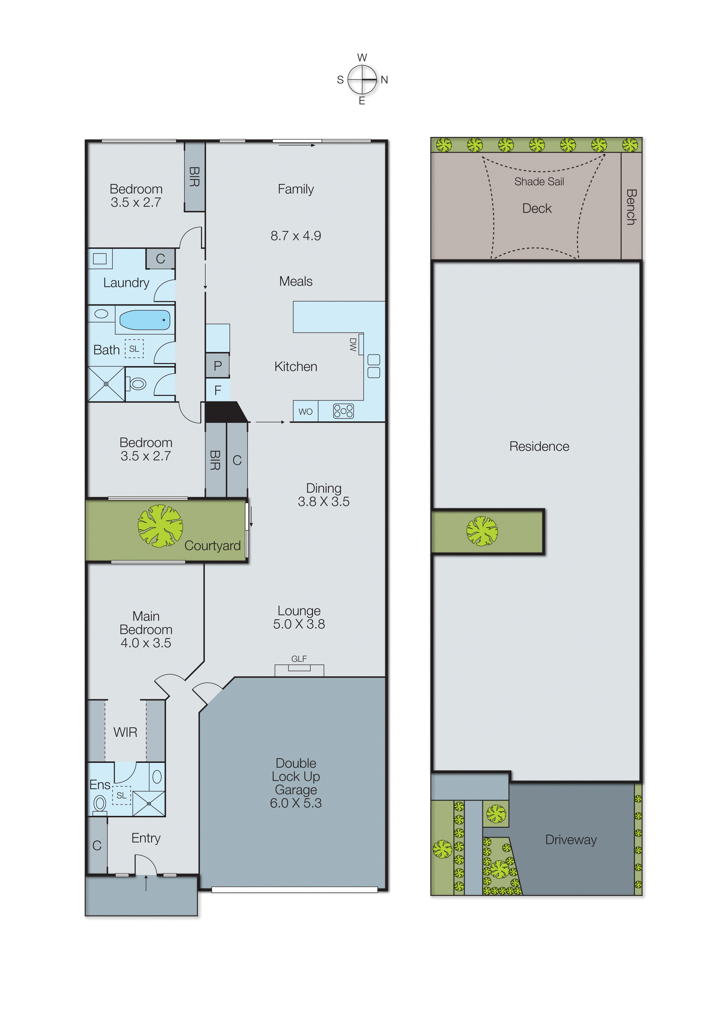
Beyond the smartly rendered façade, the layout is flowing and inviting, leading through a tranquil living room with gas fireplace to the rear open plan dining zone which spills from a well-equipped granite kitchen. A perfect space to relax with loved ones, the interiors then spill out to a peaceful & superbly private alfresco deck setting the scene for lazy summer get-togethers.
To the front, the main bedroom benefits from walk-thru wardrobes and a bright ensuite bathroom, while tucked to the rear are two further bedrooms both with built-in wardrobes sharing a central bathroom with handy separate WC. A laundry and ducted heating/evaporative cooling are also offered along with a double auto garage with secure internal entry.
Located to easily access both Cheltenham & Mentone stations, cafes and shops, there are major retail options nearby, bus stops on hand and parks & the beach all within easy reach.
For more information about this spacious single-level setting, please contact Christopher Rae at Buxton Mentone on 0418 456 980
Disclaimer:
The floorplan, room measurements, and land size provided are approximate and for illustrative purposes only. Buxton makes no representations or warranties regarding the accuracy, completeness, or reliability of any floorplan, drawing, or rendering used in the advertising materials. Buxton disclaims any liability for errors, omissions, or inaccuracies in the depiction of the land, property, or any described features. Prospective purchasers should conduct their own due diligence and seek independent professional advice to verify all information.