With its secluded rear position and superior space, this beautifully maintained 3-bedroom, 2-bathroom standalone haven offers peace and privacy in a prime location. One of only two residences with no body corporate, discover the ease of single-level living enhanced by a bright, airy interior and two separate living areas. The spacious front lounge...
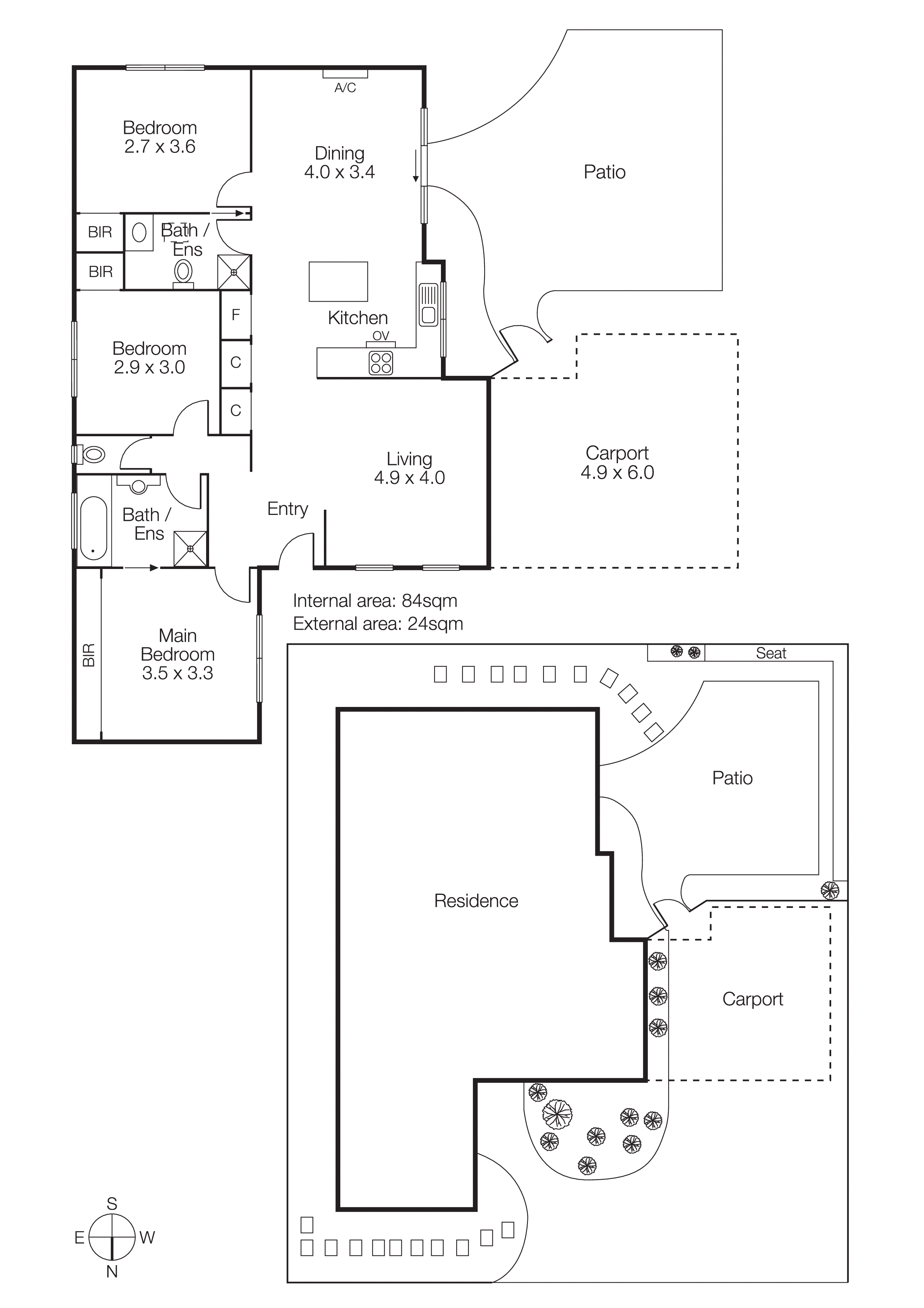
With its secluded rear position and superior space, this beautifully maintained 3-bedroom, 2-bathroom standalone haven offers peace and privacy in a prime location. One of only two residences with no body corporate, discover the ease of single-level living enhanced by a bright, airy interior and two separate living areas. The spacious front lounge is bathed in natural light, while the open-plan rear living space flows seamlessly through sliding doors to your private alfresco. The immaculate kitchen showcases an island bench and glossy white cabinetry, perfectly positioned for effortless indoor-outdoor entertaining. Accommodation impresses at every turn. The master bedroom features a mirrored built-in robe and dual-access ensuite with the luxury of a bath, while two additional robed bedrooms share a modern second bathroom. Outdoors, the generous courtyard is drenched in sunshine and low-maintenance – the perfect entertaining space for summer barbeques. Highlights include ducted heating and a split-system, polished timber floors, fresh paint throughout and a large double carport. Situated in a highly convenient pocket, walk to Westfield Southland's cinemas, restaurants, shopping and train station, Highett Reserve, Waves Leisure Centre and Cheltenham Secondary College. In moments you'll find Highett Road's trendy eateries and bar scene, beautiful beaches and an array of private schools. Ideal for first home buyers, downsizers and investors alike.