Relish a lifestyle of convenience, privacy and understated prestige with this impressive town residence, set amidst smartly landscaped, low-maintenance greenery in one of Black Rock’s most coveted...
Relish a lifestyle of convenience, privacy and understated prestige with this impressive town residence, set amidst smartly landscaped, low-maintenance greenery in one of Black Rock’s most coveted pockets. Immediately striking with its architectural design, this is a home where refined family living, effortless entertaining and true functionality converge. All of this sits within the highly sought-after Royal Melbourne Golf Club links catchment.
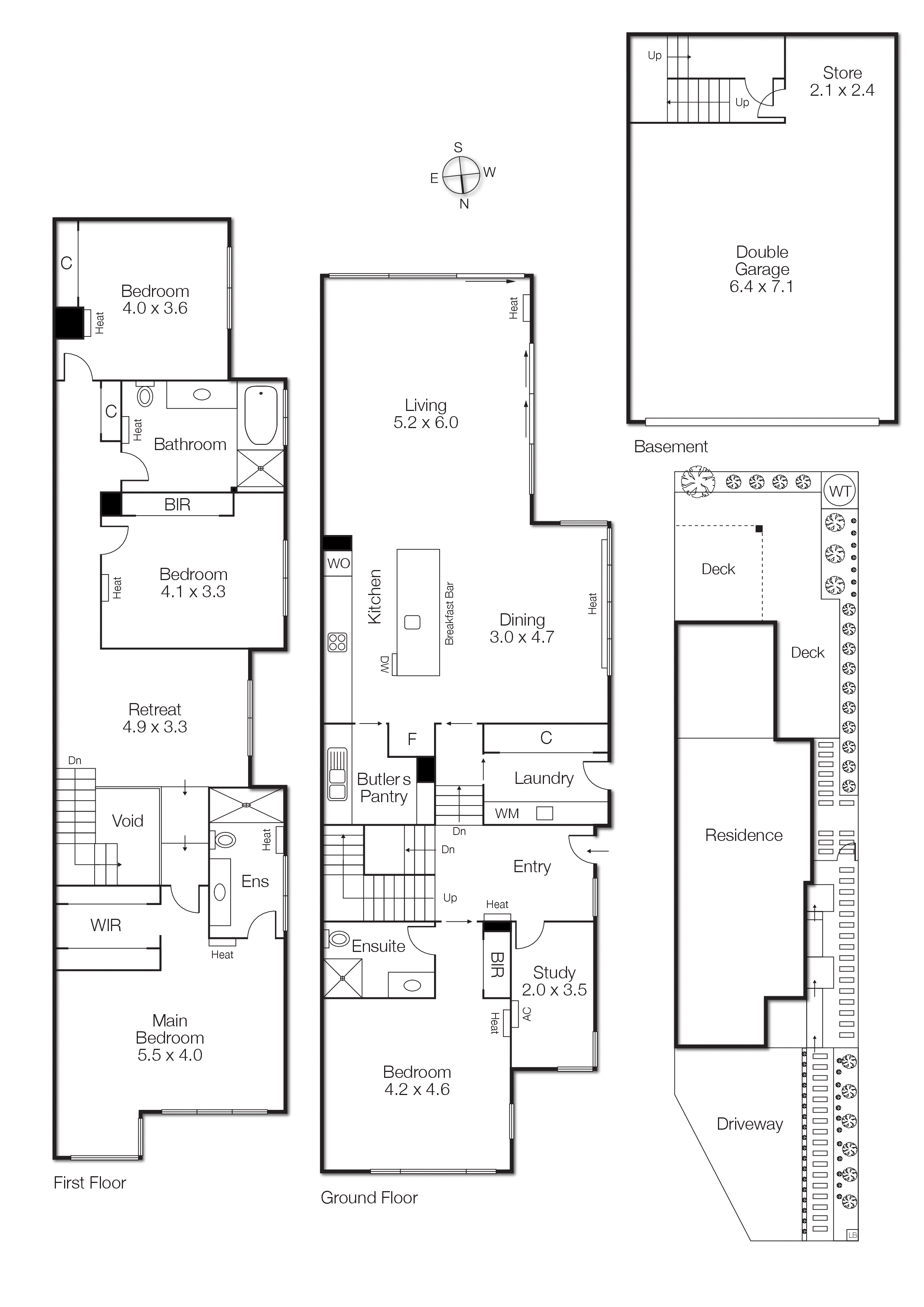
Beyond the tiered decked entry, split-level accommodation showcases solid timber Southern Blackbutt flooring that steps down to a superb rear entertaining zone. Here, banks of glass and dual sliding doors create a light and airy feel and a seamless indoor-outdoor connection to the expansive wraparound deck and rear garden, a space that is completely private and not overlooked. Sheltered from neighbouring sightlines, this tranquil outdoor sanctuary is ideal for relaxed entertaining, family gatherings or quiet moments of retreat.
Anchoring the living zone is a sleek designer kitchen featuring quality stone benchtops, a full suite of European appliances and a butler’s pantry — perfectly appointed for hosting with ease and style.
The entry level introduces the first of two ensuite bedrooms, ideal for guests or multi-generational living. This room is also fully wired for use as a home cinema if desired. Upstairs, the primary suite offers generous proportions, a luxe ensuite and walk-in robe, while two further double bedrooms (BIRs) are complemented by a designer family bathroom. A versatile retreat provides a dedicated space for children or relaxed downtime, alongside a dedicated study and full laundry.
Comfort is assured year-round with 10.5kW solar PV system, hydronic heating and refrigerated cooling, while the home is further enhanced by a substantial dual basement garage. Oversized in scale, this secure space comfortably accommodates two vehicles and offers exceptional flexibility for additional storage, a home gym or workshop setup — a rare and valuable asset in townhouse living.
Nestled in a sought-after sand-belt pocket close to rolling fairways, Black Rock Primary School and a walk to the village shops, cafes and bus stops, the home is also moments to the bay and boasts zoning for both Beaumaris and Mentone Girls’ secondary colleges.
For more information about this high-class low maintenance lifestyle contact Kylie Charlton at Buxton Sandringham.
