A true slice of urban tranquility, this custom-built one-owner home set on a wide 17 metre block provides a rare opportunity to purchase in in a sought-after pocket of Cheltenham. The inviting...
A true slice of urban tranquility, this custom-built one-owner home set on a wide 17 metre block provides a rare opportunity to purchase in in a sought-after pocket of Cheltenham. The inviting three-bedroom, 2.5-bathroom residence offers serenity and sun-filled style. Set well back from the street, it has a large, private and well-established front garden which is perfect for family privacy or relaxed entertaining. The property, which forms part of the area’s original market garden estate is located just minutes from local shops, Cheltenham Secondary College, leisure facilities, and Southland.
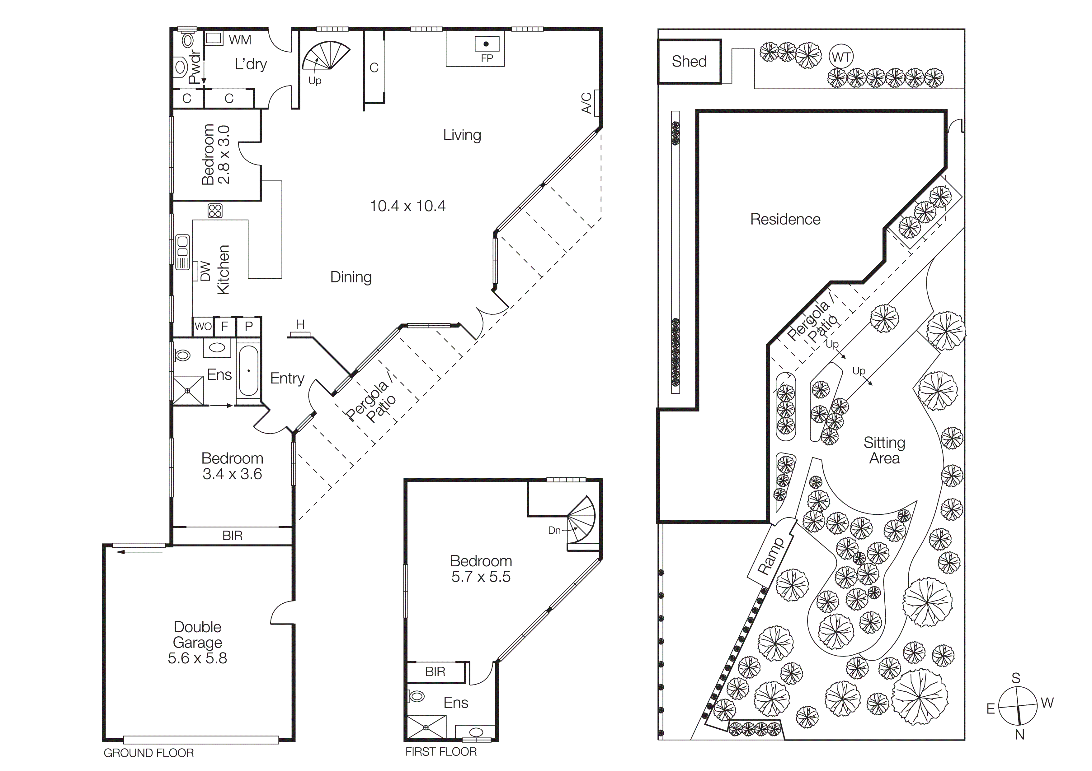
The vast, north-facing living-dining area is flooded with natural light and leafy outlooks, reflecting the custom passive solar design. Living interiors are complemented by magnificant high timber-lined ceilings and a combination of gas and electric heating and cooling. A spacious, practical kitchen includes induction cooktop, dishwasher, stone-look breakfast bar and abundant storage, perfect for gatherings both large and intimate.
Two sets of glass doors open to a beautiful private garden where you can choose to dine al fresco, unwind, or entertain against a delightful botanical backdrop. Designed for all ages, the garden invites children to explore and play, with the added potential to incorporate a swimming pool or other outdoor feature. A double remote garage with 2-car driveway provides ample parking or additional storage.
The home is predominantly single-level with a generous upstairs bedroom, built-in robes and ensuite. A ground-floor bedroom that overlooks the leafy garden includes an ensuite, heated towel rail and bathtub and could act as an alternative accessible master bedroom. A third bedroom, nursery, or home office provides flexible options depending on your needs
This is a comfortable, captivating and desirable home that reflects the previous owners’ love of peace, serenity and connection with nature. The large laundry, gas and electric heating, air conditioning, and ceiling fans, provide practicality and comfort for immediate appeal with room to adjust to your personal style. Close to sought after amenities including Waves Leisure Centre, Highett Reserve, Le Page Primary School, Southland Station, Mentone’s private schools and the pristine beachfront, it perfectly blends lifestyle, convenience, and family-friendly appeal.
For more information about this prized garden sanctuary please contact Ross Walker at Buxton Brighton on 0425 836 613.
