Inspection by Appointment Total Per Year Income: $137,892.00 A significant St Kilda Hill offering, this mansion-style block of four boutique residences presents an exceptional opportunity to secure...
Sharing Listing
B
9
b
6
C
4
617 m²
Buxton Brighton
Level 1, 28 Carpenter Street,
BRIGHTON VIC
3186
Inspection by Appointment Total Per Year Income: $137,892.00 A significant St Kilda Hill offering, this mansion-style block of four boutique residences presents an exceptional opportunity to secure...
Inspection by Appointment
Total Per Year Income: $137,892.00
A significant St Kilda Hill offering, this mansion-style block of four boutique residences presents an exceptional opportunity to secure an entire solid-brick holding in one of the area’s most prestigious pockets. Delivering immediate rental income alongside outstanding scope for future capital growth, redevelopment potential or premium Airbnb returns (STCA), this is a strategic acquisition with enduring appeal.
Privately set among established leafy surrounds yet moments from the buzz of St Kilda, the four house-sized apartments have been tastefully updated for modern comfort while retaining their grand period character. Soaring ceilings, original fireplaces (not operational) and beautiful north-facing sunroom conversions filled with natural light create warmth and distinction, complemented by stylish well-appointed kitchens and sparkling bathrooms throughout.
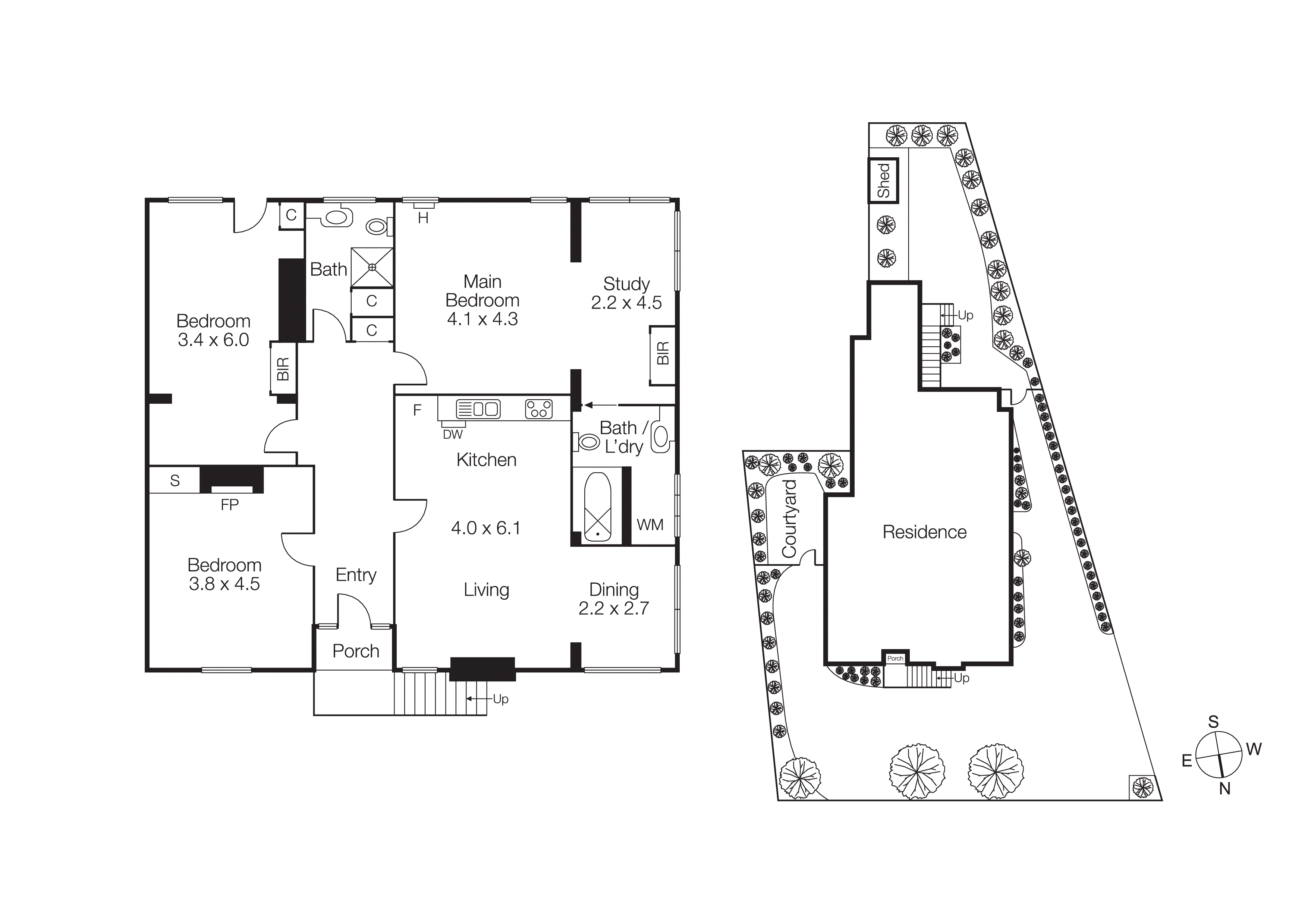
The substantial allotment accommodates four distinct residences of varying floorplans, including a remarkably large three-bedroom ground-floor apartment with ensuite and study zone, a second ground-level two-bedroom apartment with ensuite, and two unique upper-level two-bedroom apartments, each with study areas. All enjoy spacious living and dining domains, off-street parking and access to communal outdoor areas.
Positioned for consistent tenant demand and long-term growth, this blue-chip lifestyle address places Fitzroy Street, Acland Street, Chapel Street, Albert Park Lake and the St Kilda foreshore within easy reach. Trams are just metres away, the station is within walking distance, and the CBD is easily accessible via St Kilda Road, reinforcing the property’s ongoing investment strength.
This is a tightly held St Kilda Hill opportunity combining immediate income, significant landholding value and exceptional future growth potential in a premier lifestyle setting.
For more information about this rare investment opportunity please contact Stefan Whiting at Buxton Brighton on 0411 473 153.
Inspection by Appointment
Total Per Year Income: $137,892.00
A significant St Kilda Hill offering, this mansion-style block of four boutique residences presents an exceptional opportunity to secure an entire solid-brick holding in one of the area’s most prestigious pockets. Delivering immediate rental income alongside outstanding scope for future...
Inspection by Appointment
Total Per Year Income: $137,892.00
A significant St Kilda Hill offering, this mansion-style block of four boutique residences presents an exceptional opportunity to secure an entire solid-brick holding in one of the area’s most prestigious pockets. Delivering immediate rental income alongside outstanding scope for future capital growth, redevelopment potential or premium Airbnb returns (STCA), this is a strategic acquisition with enduring appeal.
Privately set among established leafy surrounds yet moments from the buzz of St Kilda, the four house-sized apartments have been tastefully updated for modern comfort while retaining their grand period character. Soaring ceilings, original fireplaces (not operational) and beautiful north-facing sunroom conversions filled with natural light create warmth and distinction, complemented by stylish well-appointed kitchens and sparkling bathrooms throughout.
The substantial allotment accommodates four distinct residences of varying floorplans, including a remarkably large three-bedroom ground-floor apartment with ensuite and study zone, a second ground-level two-bedroom apartment with ensuite, and two unique upper-level two-bedroom apartments, each with study areas. All enjoy spacious living and dining domains, off-street parking and access to communal outdoor areas.
Positioned for consistent tenant demand and long-term growth, this blue-chip lifestyle address places Fitzroy Street, Acland Street, Chapel Street, Albert Park Lake and the St Kilda foreshore within easy reach. Trams are just metres away, the station is within walking distance, and the CBD is easily accessible via St Kilda Road, reinforcing the property’s ongoing investment strength.
This is a tightly held St Kilda Hill opportunity combining immediate income, significant landholding value and exceptional future growth potential in a premier lifestyle setting.
For more information about this rare investment opportunity please contact Stefan Whiting at Buxton Brighton on 0411 473 153.
Buxton Brighton
Level 1, 28 Carpenter Street,
BRIGHTON VIC
3186
We'll give you a clear, honest assessment based on real market insights, so you can make informed decisions with confidence.
Local knowledge. Proven results. Trusted advice.
