A Soaring Sanctuary of Sun, Space & Style Discover a soaring sanctuary of sun-drenched style, with this stunning Edwardian positioned on the edge of Elwood village. Privately set back from the street...
A Soaring Sanctuary of Sun, Space & Style
Discover a soaring sanctuary of sun-drenched style, with this stunning Edwardian positioned on the edge of Elwood village. Privately set back from the street amidst lush gardens, the home offers a peaceful retreat for professionals, young families or downsizers, just footsteps from vibrant cafes, gourmet eateries and city transport. This lifestyle address provides a picture-perfect backdrop for contemporary beachside living.
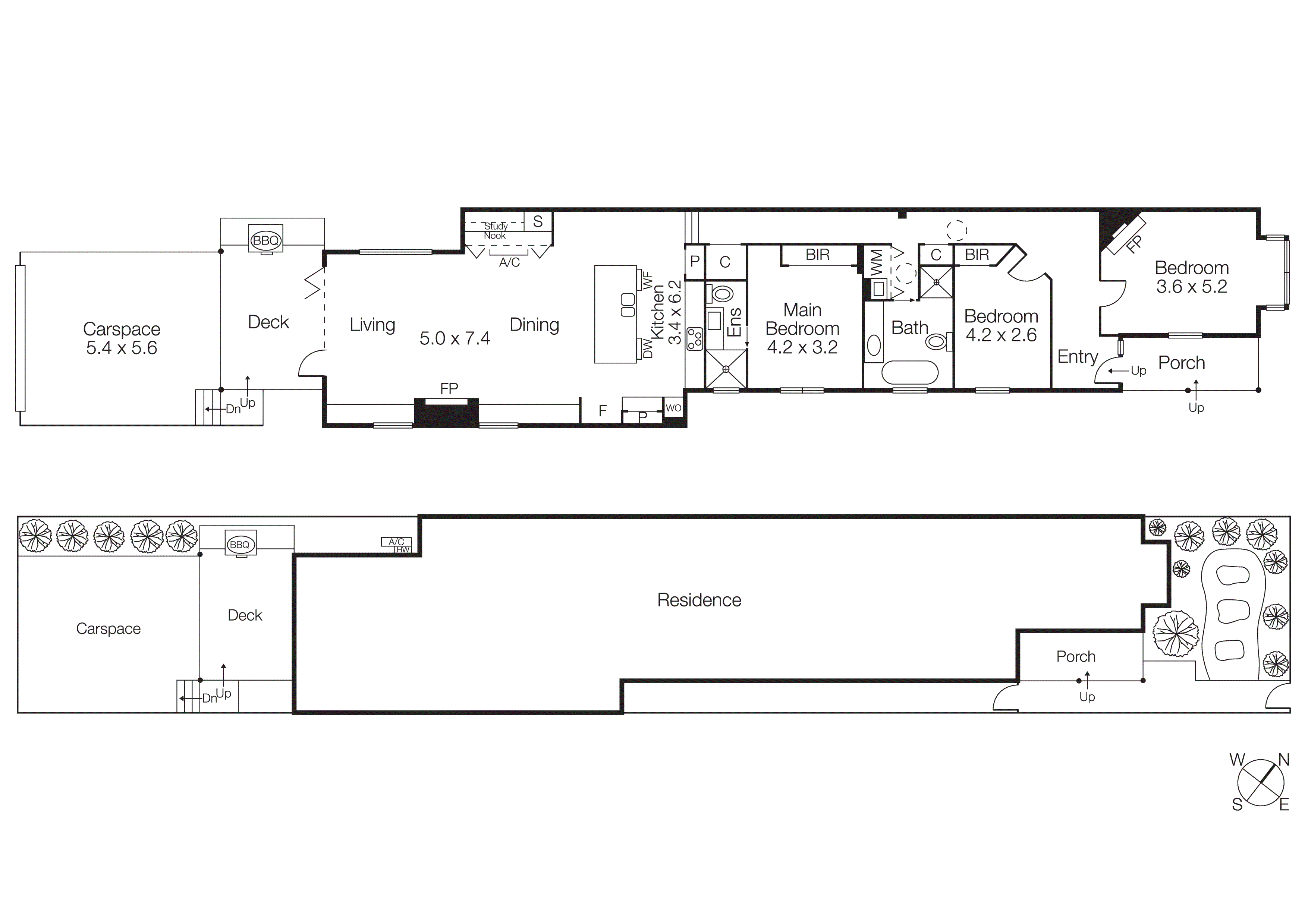
Beautifully balancing period elegance with modern design, the home unfolds to reveal a versatile three-bedroom, two-bathroom layout, culminating in a breathtaking indoor-outdoor living domain. A sky-high clerestory roofline floods the space with natural light, while tall bi-fold doors connect seamlessly to a vine-covered al fresco terrace with a fully integrated Weber Q, floating above an utterly private, north-westerly courtyard with rear access.
A home for all seasons featuring an inviting gas log fireplace for cosy nights, and long lunches through sunset soirees in the warmer months. At the heart of the spacious living and dining zone, a gourmet kitchen delivers exceptional functionality and style, appointed with premium Miele appliances including a combi oven, induction cooktop and dishwasher, a Vintec wine fridge, stone island and benchtops, and abundant custom storage. A concealed study nook and bespoke joinery enhances appeal.
At the front of the home, a generous third bedroom or second living room is enriched by an elegant bay window and tiled gas open fireplace. The main bedroom is appointed with twin built-in robes and a luxe stone ensuite, while the family bathroom boasts a designer freestanding bath. Additional features include a European laundry, timber floors, plantation shutters and in-ceiling speakers.
Engineered for comfort, the home showcases high-performance double glazing throughout for excellent thermal and acoustic insulation, ensuring a remarkably quiet interior. Central heating and reverse cycle air conditioning provide year-round climate control. Rear lane access to remote off-street parking for two smaller vehicles, or comfortably one large SUV adds a rare and highly desirable convenience.
Be part of a vibrant community just metres from Brighton Road’s cafés and shops, premium childcare and tram stops with Tennyson Street Village, Elsternwick Park, Elwood Primary School, Elwood Beach and Ripponlea Station all nearby. Also central to St Kilda, Balaclava, Elsternwick, Ripponlea and the CBD.
For more information about this effortless Edwardian please contact Kym Williams at Buxton Brighton on 0435 906 485.
