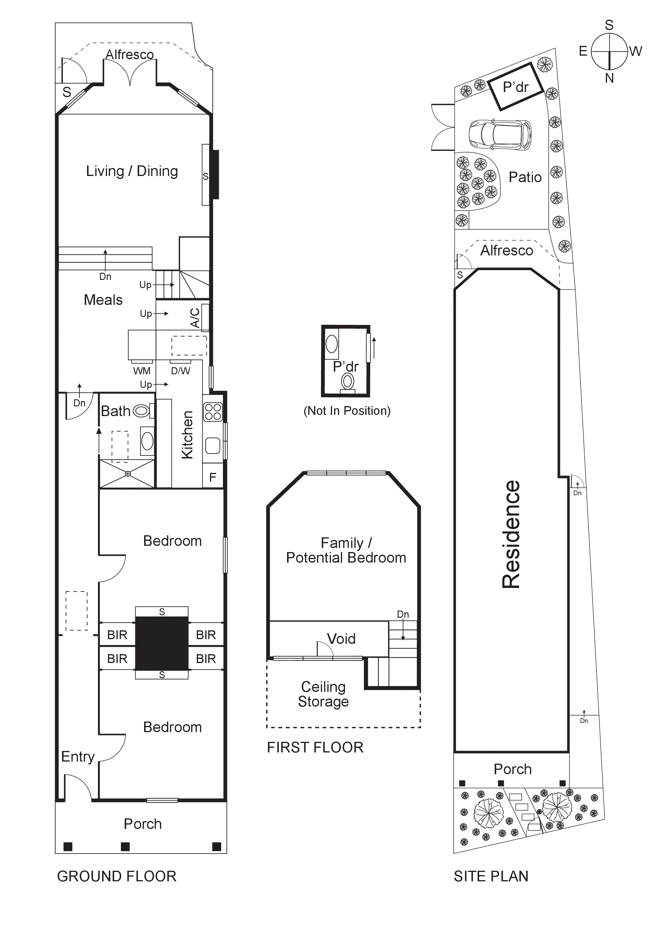
A quaint & unassuming façade bears no indication of the unique personality within this totally captivating residence. The individual character filled identity offers graceful period aesthetics alongside a contemporary edge creating a memorable environment.
A cleverly designed galley style kitchen with stainless steel appliances, stone benchtops...
A quaint & unassuming façade bears no indication of the unique personality within this totally captivating residence. The individual character filled identity offers graceful period aesthetics alongside a contemporary edge creating a memorable environment.
A cleverly designed galley style kitchen with stainless steel appliances, stone benchtops & plenty of cabinetry serves voluminous double height open plan living & dining featuring cathedral ceilings & exposed brick for a retro vibe - continues upstairs to an excellent mezzanine for an ideal work from home opportunity, another lounge, studio or even a third bedroom.
For year round entertaining, French doors open to reveal a paved garden with established plants & a car space off Inkerman Street. Continuing the allure, two ambient double bedrooms are enhanced by all the hallmarks of the era such as high ceilings & cast-iron fireplaces concluding with built-in wardrobes. A chic sky lit bathroom with the latest fittings, leadlight windows, timber floorboards, a fireplace, outdoor toilet, split system & bespoke lighting throughout are all in a home.
It's situated within immediate proximity to St Kilda Primary school, in the Elwood secondary zone, a walk to St. Kilda Junction, Carlisle Street’s cosmopolitan lifestyle, transport & plethora of lifestyle amenities.
ALL ENQUIRIES MUST INCLUDE A CONTACT NUMBER. For more information, contact the Buxton Office on (03) 9964 3737
‘We have obtained all information in this document from sources we believe to be reliable; however, we cannot guarantee its accuracy. Prospective purchasers are advised to carry out their own investigation.’
While all copy is prepared with the utmost care, ultimate responsibility for accuracy lies with the agent and vendor. Please check carefully prior to publication.