Distinguished by the calming cadence of quality and intentional design, this inviting home is enveloped in flourishing gardens. With soaring ceilings punctuated by features of vertical joinery and...
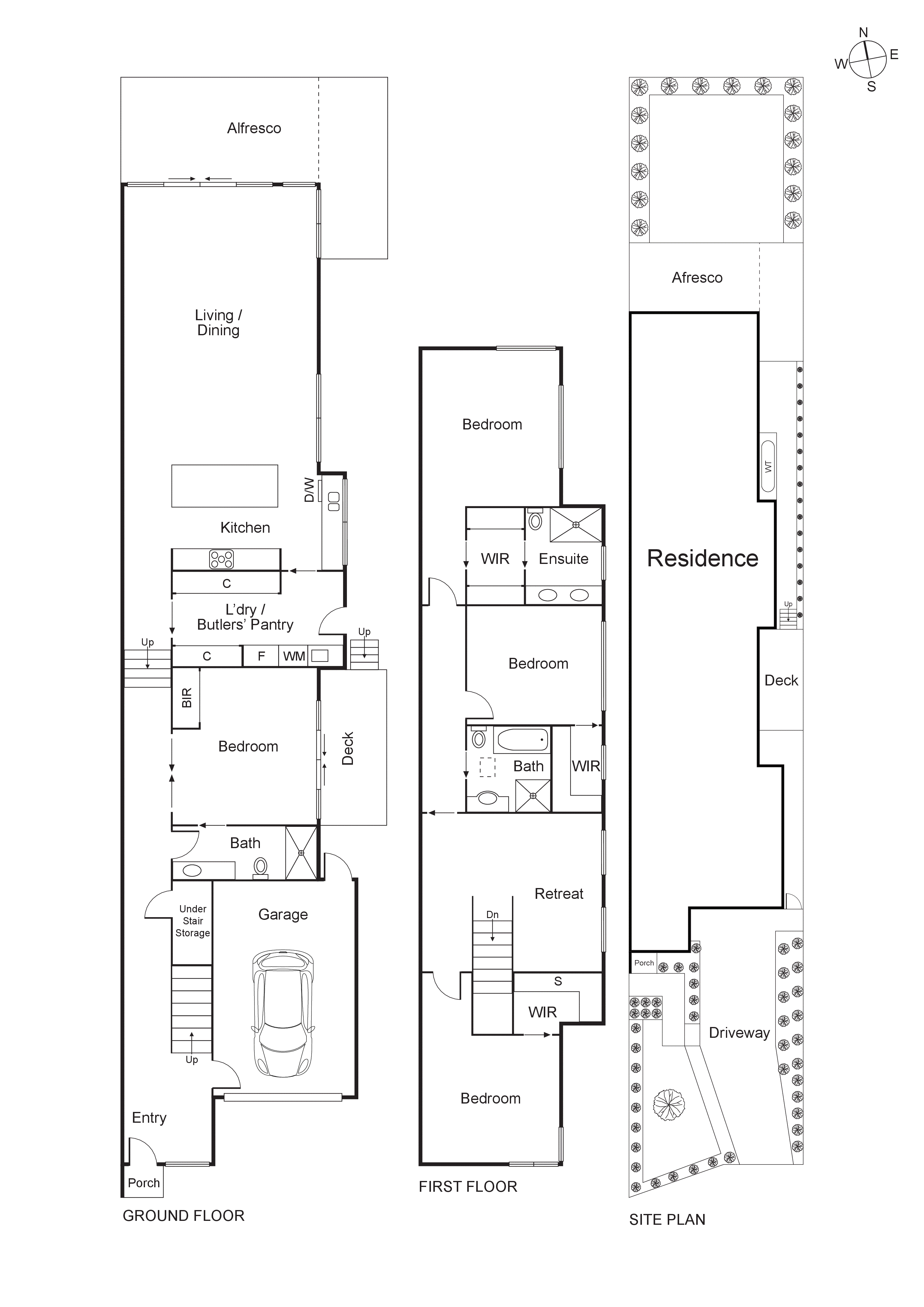
Distinguished by the calming cadence of quality and intentional design, this inviting home is enveloped in flourishing gardens. With soaring ceilings punctuated by features of vertical joinery and north east light captured at every opportunity, this dual master home (with one accessible ground floor option) yields luxury married with a relaxing delight that’s enriched by its Mckinnon Secondary College zoning. Welcomed by a sculptural like timber staircase and foyer that sets the tone, this home is bestowed with a calibre of care and standard of finish that’s rare to see in contemporary living. Boasts a positively radiant living zone with impressive glazing that harnesses the north east light. Opening onto a deep decked patio overlooking the low maintenance garden that’s framed with established living screens for a private fresh air extension of the living zone. Hosts will love entertaining from the kitchen appointed with a full suite of Smeg appliances (900mm induction cooktop, 900mm oven and dishwasher) alongside a cleverly laid out combi butler’s pantry with laundry that houses a huge bank of functional storage and flows to the garden or hallway for practicality. Offering the space to spread out with flexibility, the home also comprises a rumpus room and a generous accessible ground floor master suite with its own garden entry (easily a private guest bedroom or home office). The main master suite is pampered by a leafy outlook, walk in robe and luxurious ensuite with a stone topped vanity and walk in shower. While two further bedrooms are paired with a matching bathroom with tub. A garage with internal access, ducted zoned climate control, ducted vacuum and an alarm complete this sophisticated sanctuary. In a family focused pocket with playgrounds, bus options (822, 701, 627, 767) and the thoroughly lovely Mackie Road shops all just a short stroll away. Also, happily close to the iconic Oasis Bakery, GESAC, the East Bentleigh Village and the popular East Bentleigh Farmer’s market adjoining a toy library and community gardens. School options include Coatesville Primary (zoned), St Peter’s Primary, East Bentleigh Steiner Primary School, Mckinnon Secondary College (zoned), St Bede’s and OLSH.
