Maximising the depth and rare dual street frontage of this exceptional allotment, a thoughtful architectural extension both upwards and outwards has transformed this engaging Edwardian into a truly...
Sharing Listing
B
4
b
2
C
1
350 m²
Buxton Elwood
3/122 Ormond Road,
Elwood
3184
Maximising the depth and rare dual street frontage of this exceptional allotment, a thoughtful architectural extension both upwards and outwards has transformed this engaging Edwardian into a truly...
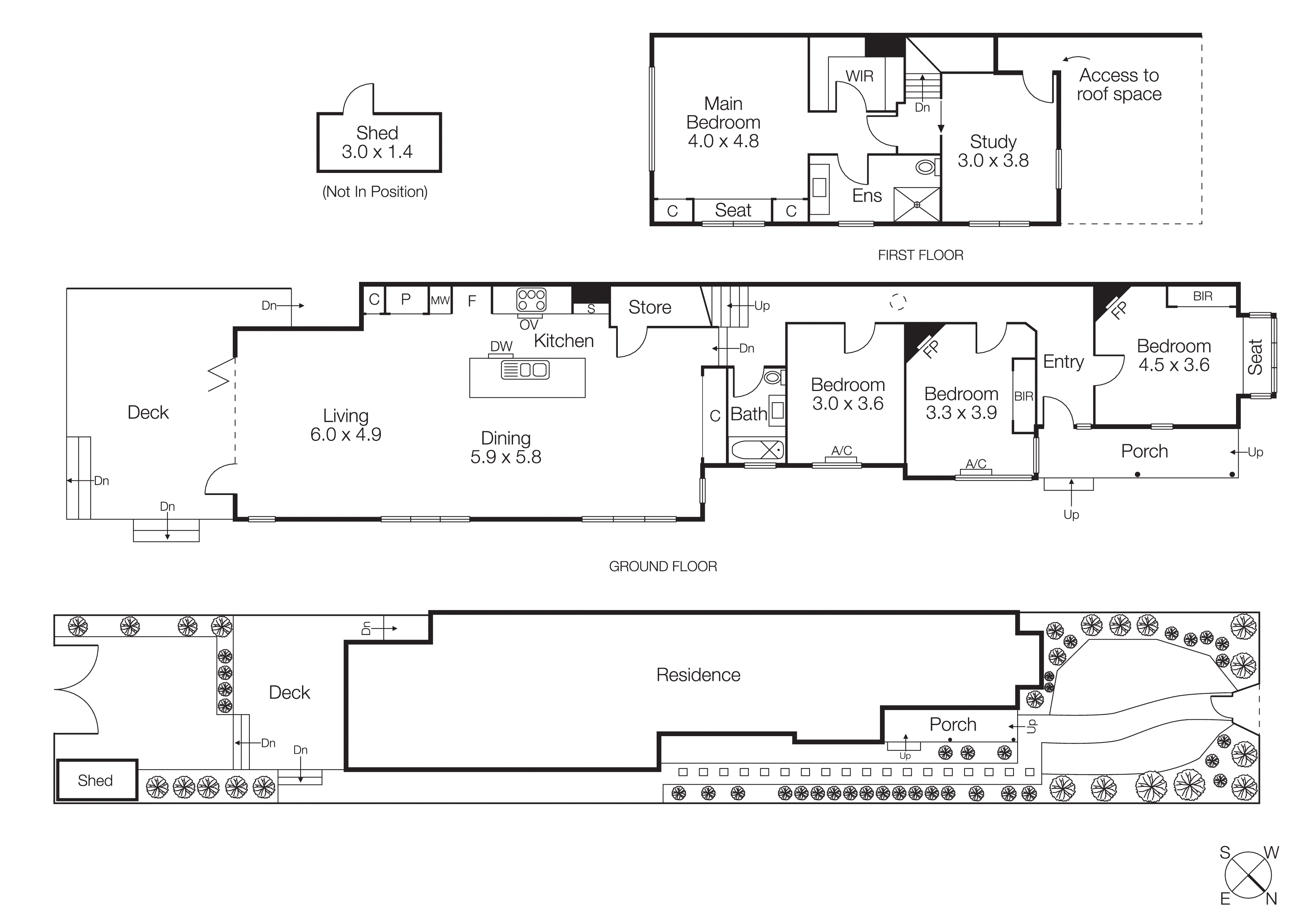
Maximising the depth and rare dual street frontage of this exceptional allotment, a thoughtful architectural extension both upwards and outwards has transformed this engaging Edwardian into a truly spectacular family residence. Original character and contemporary design are beautifully balanced, with soaring ceilings throughout enhancing the sense of space, light and vertical grandeur.
At the heart of the home, an expansive open-plan living and dining domain unfolds around a superb stone kitchen appointed with high-end European appliances, generous storage and a seamless connection to everyday family living and entertaining. Full-height bi-fold doors dissolve the boundary between indoors and out, opening onto a timber deck and deep, landscaped garden complete with automated irrigation — a private, sun-filled sanctuary ideal for relaxed entertaining or family play.
Accommodation is intelligently zoned, with three bedrooms on the ground level sharing an updated central bathroom. Upstairs, an entire floor is devoted to an indulgent parent’s retreat, offering a large bedroom, bathroom, walk-in robe, a separate and spacious home office, and ducted cooling — a peaceful escape from the main household.
Additional features include ducted heating on ground floor, split systems in two downstairs bedrooms, hardwood floorboards, extensive storage, leadlight windows, fireplaces, bay window to the front bedroom, decorative timber fretwork to the entry.
Perfectly positioned for family life, the home enjoys easy proximity to a range of highly regarded schools including Elwood Primary School, St Columba’s Primary School, Elwood College and St Michael’s Grammar School.
With trams, Ripponlea Station, St Kilda Botanical Gardens, Elwood and Ripponlea Villages, Acland Street, the beach and leading schools all within effortless reach, this is a rare opportunity to secure a substantial, character-rich family home in one of Elwood’s idyllic pockets.
Maximising the depth and rare dual street frontage of this exceptional allotment, a thoughtful architectural extension both upwards and outwards has transformed this engaging Edwardian into a truly spectacular family residence. Original character and contemporary design are beautifully balanced, with soaring ceilings throughout enhancing the sense...
Maximising the depth and rare dual street frontage of this exceptional allotment, a thoughtful architectural extension both upwards and outwards has transformed this engaging Edwardian into a truly spectacular family residence. Original character and contemporary design are beautifully balanced, with soaring ceilings throughout enhancing the sense of space, light and vertical grandeur.
At the heart of the home, an expansive open-plan living and dining domain unfolds around a superb stone kitchen appointed with high-end European appliances, generous storage and a seamless connection to everyday family living and entertaining. Full-height bi-fold doors dissolve the boundary between indoors and out, opening onto a timber deck and deep, landscaped garden complete with automated irrigation — a private, sun-filled sanctuary ideal for relaxed entertaining or family play.
Accommodation is intelligently zoned, with three bedrooms on the ground level sharing an updated central bathroom. Upstairs, an entire floor is devoted to an indulgent parent’s retreat, offering a large bedroom, bathroom, walk-in robe, a separate and spacious home office, and ducted cooling — a peaceful escape from the main household.
Additional features include ducted heating on ground floor, split systems in two downstairs bedrooms, hardwood floorboards, extensive storage, leadlight windows, fireplaces, bay window to the front bedroom, decorative timber fretwork to the entry.
Perfectly positioned for family life, the home enjoys easy proximity to a range of highly regarded schools including Elwood Primary School, St Columba’s Primary School, Elwood College and St Michael’s Grammar School.
With trams, Ripponlea Station, St Kilda Botanical Gardens, Elwood and Ripponlea Villages, Acland Street, the beach and leading schools all within effortless reach, this is a rare opportunity to secure a substantial, character-rich family home in one of Elwood’s idyllic pockets.
Buxton Elwood
3/122 Ormond Road,
Elwood
3184
We'll give you a clear, honest assessment based on real market insights, so you can make informed decisions with confidence.
Local knowledge. Proven results. Trusted advice.
