Built by renowned luxury builder GIA behind its own street frontage, this architecturally designed contemporary residence delivers uncompromising easy care living in one of Elwood’s most prized...
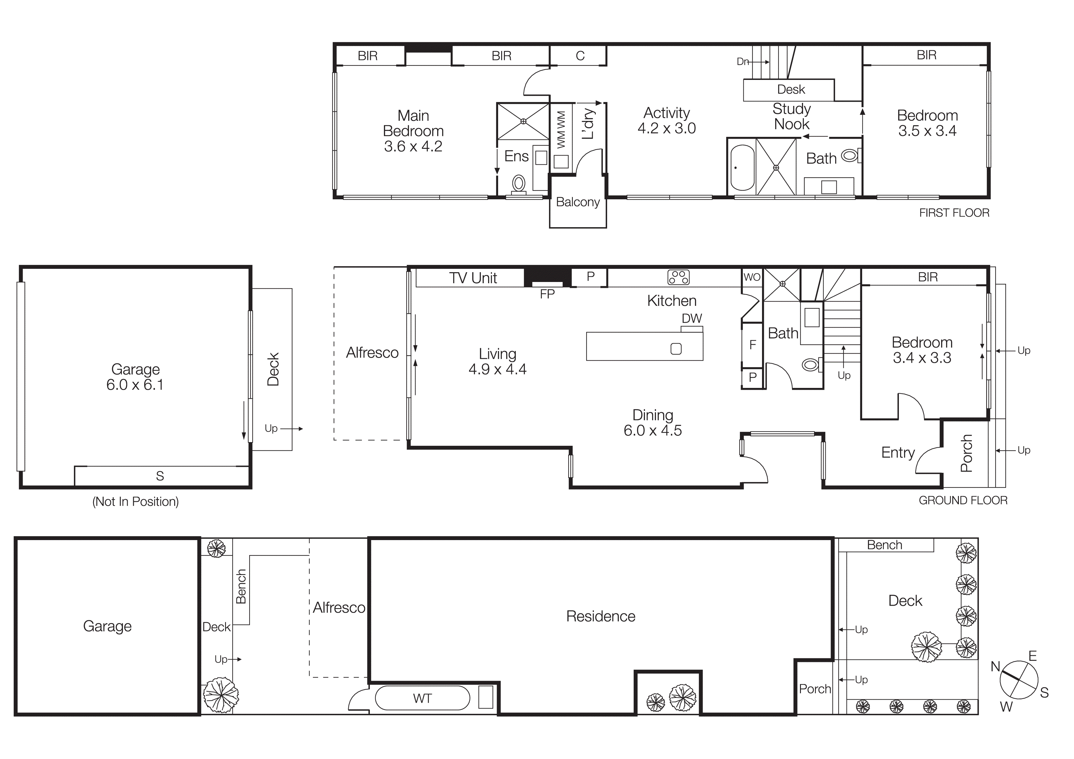
Built by renowned luxury builder GIA behind its own street frontage, this architecturally designed contemporary residence delivers uncompromising easy care living in one of Elwood’s most prized pockets. Nestled amongst the Plane Trees that line its peaceful, family focussed avenue, impressive three bedroom, three bathroom accommodation unfolds across two light-filled levels that beautifully balance space with flexibility in perfect privacy. High ceilings and large expanses of glass ensure a close connection to the lush leafy surroundings whilst refined attention to detail and premium finishes ensure a superior level of comfort throughout.
Beyond its pivot front door and foyer entry, instantly impressive interiors offer multiple living areas for easy family flexibility while the clever inclusion of a ground floor bedroom with BIRs, courtyard and nearby bathroom provides valuable versatility for guests, extended family or future-proofed living. Generous north facing living and dining areas feature a gas fireplace and a wall of sliding glass doors that blur the boundary between inside and a lush water-wise courtyard perfect for any season entertaining. A magnificent showpiece kitchen demonstrates the appeal of expert design with its stone benchtops and feature timber joinery hosting premium Miele appliances, including induction cooktop and plumbed coffee machine, integrated Liebherr fridge/freezer, and a broad central island with dedicated dining.
Upstairs, the main bedroom enjoys extensive BIRs/storage and a luxurious ensuite, accompanied by a second bedroom with BIRs, central bathroom, second living/retreat and dedicated open study/office.
Further highlights include zoned ducted heating/air conditioning, tiled floors, extensive built-in storage, six star energy efficiencies including double glazing and grey water recycling, water tank, remote exterior privacy blinds, video intercom, CCTV security and the area luxury of a remote double garage via Poets Lane.
Immediately enjoy this friendly, community focussed pocket just meters from Tennyson Village cafés, Elwood Primary and Elwood College with Elwood Village, Glen Huntly Road Elsternwick, renowned parkland, trams, trains and the beach all within easy reach.
