Inspection by Appointment - Please contact Tom Davidson
Private Hampton Sanctuary, in a Prime Lifestyle Location
Set behind a charming established entrance and picturesque carport, this quality residence offers a private sanctuary just moments from the vibrant Hampton Street shopping strip, quality schools and convenient transport.
Thoughtfully...
Inspection by Appointment - Please contact Tom Davidson
Private Hampton Sanctuary, in a Prime Lifestyle Location
Set behind a charming established entrance and picturesque carport, this quality residence offers a private sanctuary just moments from the vibrant Hampton Street shopping strip, quality schools and convenient transport.
Thoughtfully designed to maximise space and natural light, the home features a stunning open-plan living and dining zone centred around a stylish contemporary kitchen. French doors open seamlessly to a European-inspired rear courtyard, creating the perfect setting for relaxed outdoor entertaining in tranquil surrounds.
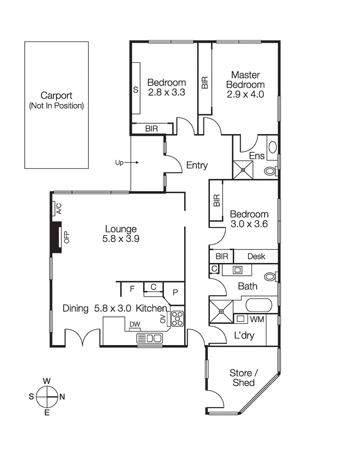
Accommodation comprises three well-appointed bedrooms, including a generous main suite complete with a tastefully designed ensuite. A beautifully finished central bathroom with bath and separate shower services the remaining bedrooms, while a separate laundry adds everyday practicality.
Comfort is assured with ducted heating throughout, complemented by soft neutral tones that enhance the home’s timeless appeal. The spacious kitchen overlooks the dining area, which flows effortlessly into the inviting lounge, an ideal layout for both family living and entertaining.
Offering lifestyle, location and effortless style, this elegant Hampton home delivers peaceful living within easy reach of local shops, schools and transport.
For more information please contact Tom Davidson from Buxton Brighton on 0488 017 500.