Situated in the growing and family-friendly suburb of Winter Valley, 20 Kite Street presents a fantastic opportunity to secure a quality, brand-new home designed for modern living. Enjoy the convenience of being just moments from local parks, quality schools, Delacombe Town Centre, and public transport links, making everyday life effortless and...
Situated in the growing and family-friendly suburb of Winter Valley, 20 Kite Street presents a fantastic opportunity to secure a quality, brand-new home designed for modern living. Enjoy the convenience of being just moments from local parks, quality schools, Delacombe Town Centre, and public transport links, making everyday life effortless and connected.
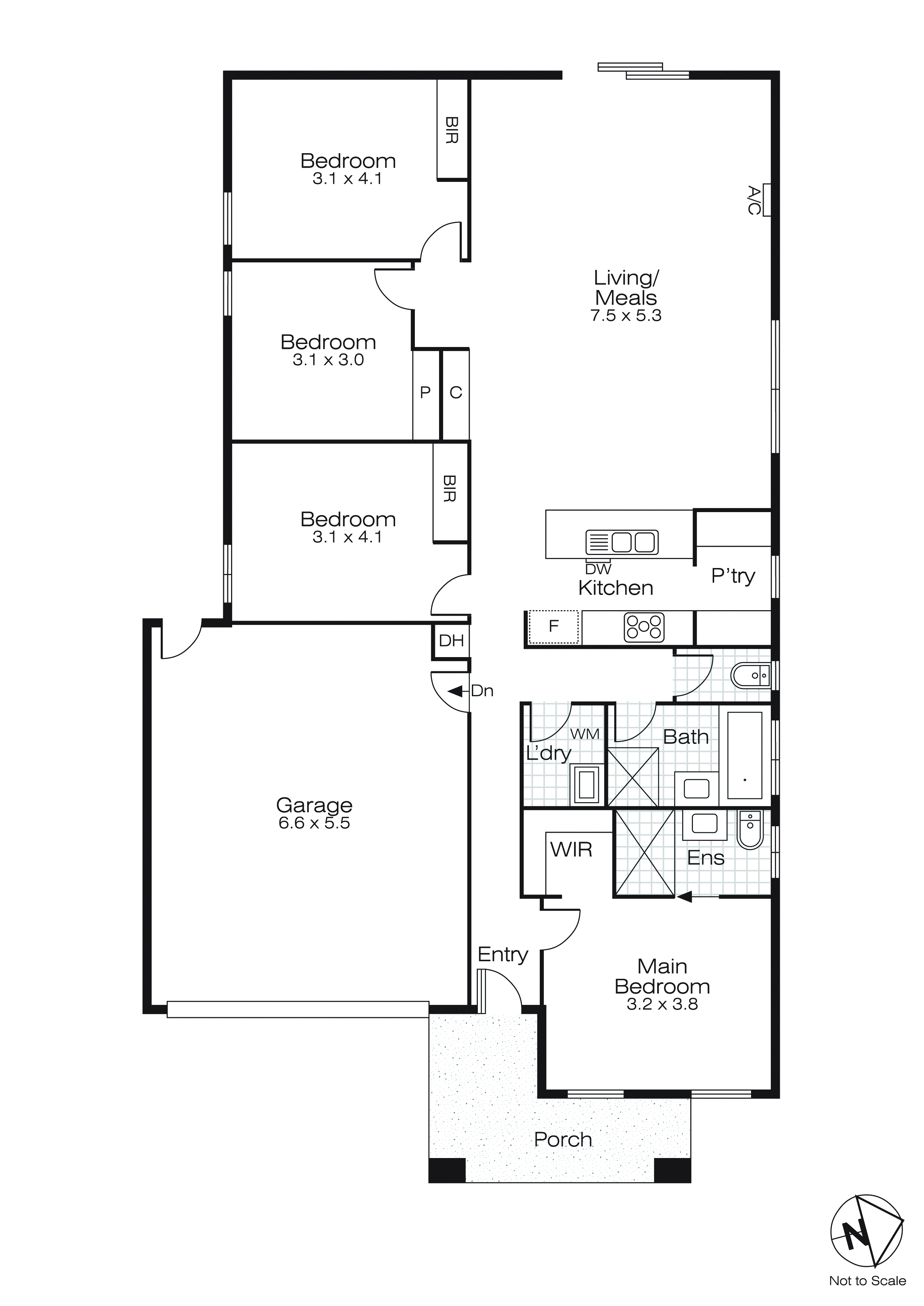
Step inside to discover a light-filled open-plan kitchen, meals and living area that forms the heart of the home. Designed with both comfort and entertaining in mind, this spacious zone offers seamless flow and an inviting atmosphere to relax or host family and friends. The contemporary kitchen is sure to impress, complete with sleek stone benchtops, stainless-steel appliances, and a large walk-in pantry providing exceptional storage and functionality. Ducted heating runs throughout the property, while a split system air conditioner in both the lounge and the main bedroom ensures year-round comfort.
The home comprises four generous bedrooms, thoughtfully designed to accommodate growing families. The main bedroom is privately positioned and features a walk-in robe and a stylish ensuite, while the remaining bedrooms are well-sized and serviced by a central family bathroom with quality fittings and finishes.
Outside, the property continues to deliver with a low-maintenance front yard, allowing you to enjoy your weekends without the upkeep. The double lock-up garage with internal access adds both security and convenience, completing this impressive package.
Offering a perfect blend of modern design, practicality, and easy-care living in a sought-after Winter Valley location, 20 Kite Street is ready to welcome its new owners.