WHAT Positioned within the private and leafy ‘Woodburn Heights’ development, this spacious two-bedroom ground floor apartment showcases classic architecture, generous proportions and an abundance...
WHAT
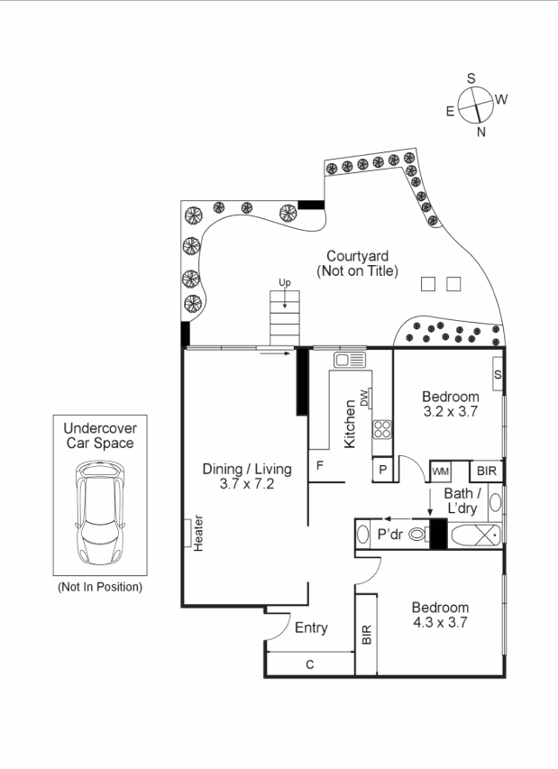
Positioned within the private and leafy ‘Woodburn Heights’ development, this spacious two-bedroom ground floor apartment showcases classic architecture, generous proportions and an abundance of natural light. Ideal for young couples, downsizers or investors seeking a low-maintenance lifestyle in a blue-chip Toorak address, the home offers two well-sized bedrooms with built-in robes, a central bathroom with separate powder room, and an expansive open-plan living and dining domain. Large sliding doors connect the living area to a front courtyard space, enhancing the sense of openness and indoor-outdoor connection while capturing a pleasant outlook across the tree-lined complex.
• Two generous bedrooms with built-in robes
• Spacious open-plan living and dining area
• Central bathroom plus separate powder room
WHY
Combining classic character with modern practicality, this apartment delivers comfortable living in a secure and well-maintained complex. The kitchen is stylishly updated with sleek stone-style benchtops, stainless steel appliances, gas cooking and a dishwasher, while the generous living area features polished floorboards, a wall heater and excellent natural light through large sliding doors. Double glazed front windows provide added comfort and security, while the courtyard creates a relaxed space to enjoy the outdoors. Additional highlights include ample storage, laundry facilities within the bathroom, secure entry and an undercover car space.
• Modern kitchen with stone-style benches and dishwasher
• Wall heating, double glazed windows and great natural light
• Undercover car space plus secure complex entry
WHERE
Enjoy the ease of a blue-chip Toorak address with public transport right at your doorstep and a lifestyle location that keeps everything close. Moments from Toorak Road trams, Toorak Village and Heyington Station, the apartment is also within easy reach of Hawksburn Village, Como Park and the Yarra River trails. It is a position that delivers daily convenience with cafes, shopping, parkland and city access all nearby.
• Walk to Toorak Road trams and public transport
• Close to Toorak Village, Hawksburn Village and cafes
• Near Como Park, the Yarra River and Heyington Station
