Brand New – Complete – Ready to call home An award-winning collaboration between Figurehead Group and Wolveridge Architects – residence G02 in Osprey Martha Cove sits within a boutique collection of architectural apartments, designed for the Peninsula and ready to move in now. This apartment has been designed and orientated to ensure generosity of...
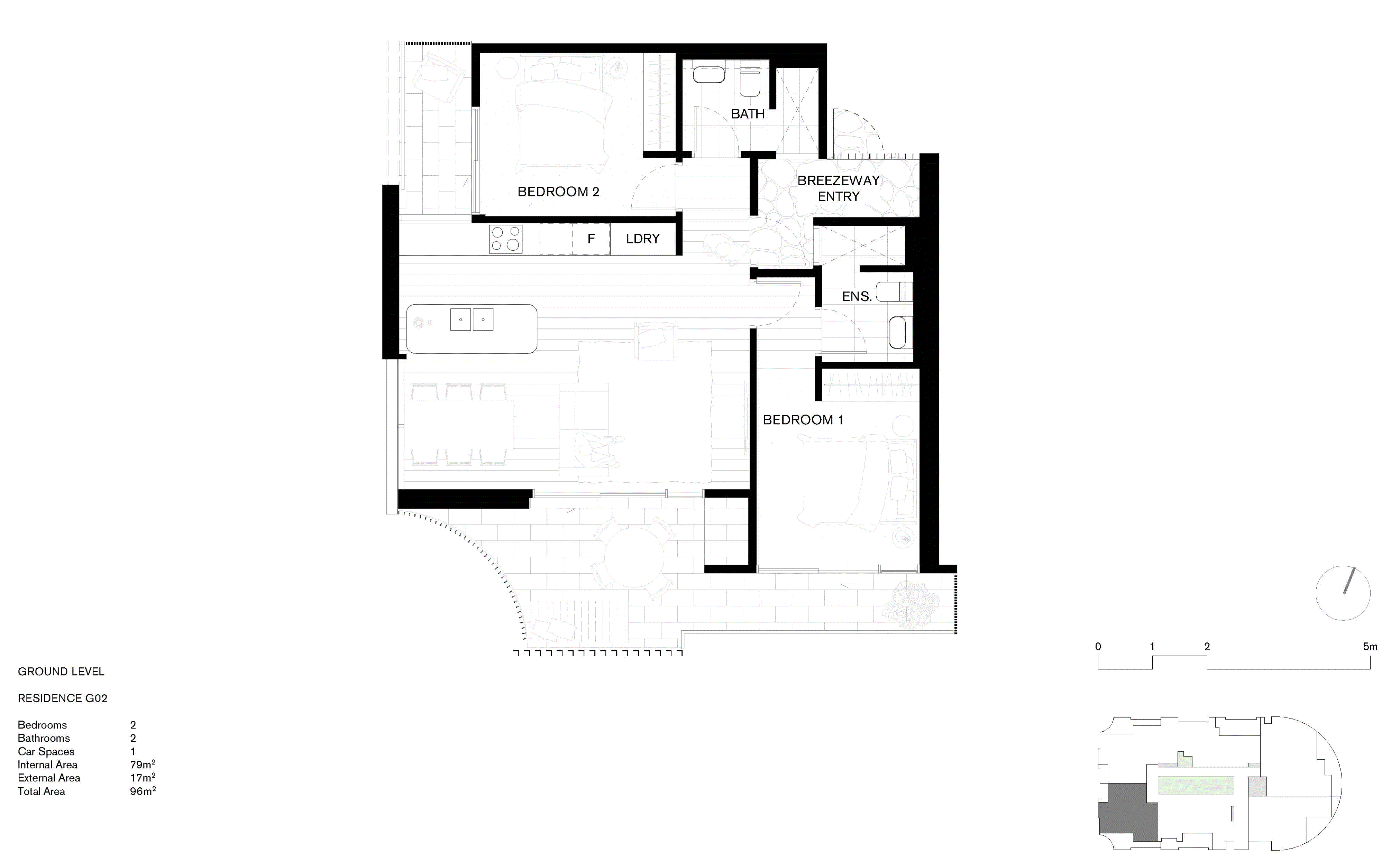
Brand New – Complete – Ready to call home An award-winning collaboration between Figurehead Group and Wolveridge Architects – residence G02 in Osprey Martha Cove sits within a boutique collection of architectural apartments, designed for the Peninsula and ready to move in now. This apartment has been designed and orientated to ensure generosity of natural light and provide cross-flow of fresh air through the living and common areas. At the heart of Osprey is a towering landscaped light court with formed concrete, inspired by the cliff faces of the shoreline and are a reminder of this spectacular coastal location. Featuring two-bedrooms, two bathrooms, two balconies and an opulent kitchen, dining and living space as well as secure basement car park and storage, this beautiful apartment presents a peaceful home far away from the city. It’s a place to kick off sandy shoes on the breezeway paved floor, leave the front door open and let the fresh air in. Renowned throughout the Peninsula, Wolveridge Architects have designed Osprey residences to enjoy a generosity of natural light and calming sea breezes. Reimagined as a series of coastal homes, the interiors enjoy a sense of warmth and timeless restraint of eggshell tones for a neutral textured palette. Details and materials such as cover batten wall linings, accents of hardwood timber and calming sage green bring the outside in.