Nepean Highway all the way to the sand, direct beach access is yours alone! Perfectly positioned property with unparalleled panoramic views of the bay. This is a rare opportunity to secure this...
Sharing Listing
B
4
b
2
C
1
495 m²
Buxton Chelsea
406 Nepean Highway,
CHELSEA VIC
3196
Nepean Highway all the way to the sand, direct beach access is yours alone! Perfectly positioned property with unparalleled panoramic views of the bay. This is a rare opportunity to secure this...
Nepean Highway all the way to the sand, direct beach access is yours alone!
Perfectly positioned property with unparalleled panoramic views of the bay. This is a rare opportunity to secure this absolute beachfront property in the heart of Carrum.
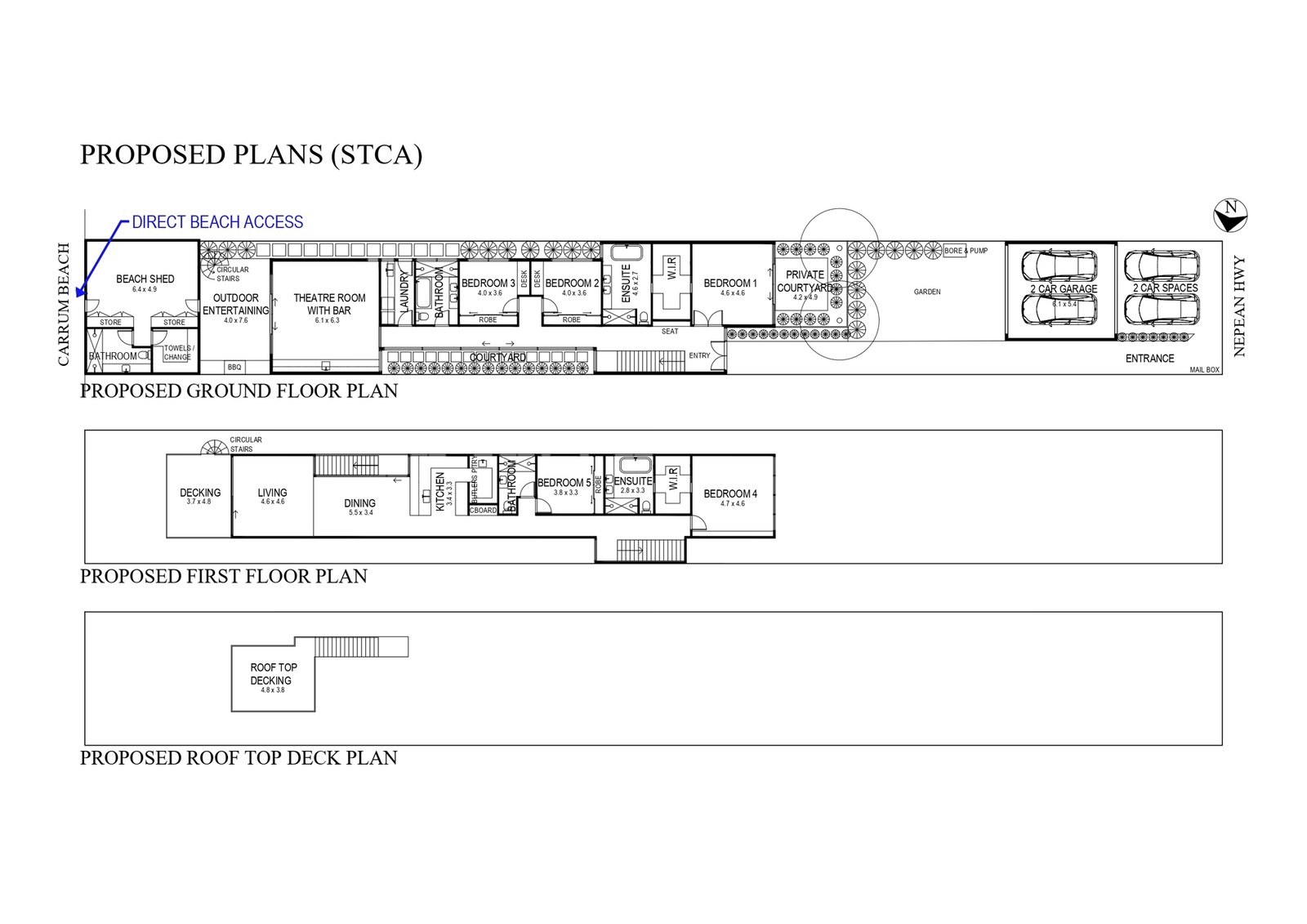
This original two-story beachside retreat is set on 495sqm of prime beach front property. This dream property is one of only approx. 500 true beachfront properties available along the strip from Melbourne to Portsea.
Imagine waking up to the calming sounds of the waves, gentle sea breezes and breathtaking views of the coastline. Watch the boats sail by your tranquil uninterrupted panoramic bay views and enjoy an unmatched lifestyle in this exclusive, sun-drenched retreat. Perfectly positioned for watching stunning sunset views over the bay.
What truly sets this block apart is its unmatched proximity to all Carrum’s amenities. This property seamlessly blends the serenity of waterfront living with the convenience of urban accessibility.
Imagine having:
• Carrum Train Station 70m away.
• ALDI supermarket 140m away.
• Cafes and restaurants less than 150m away.
• Carrum Life Saving Club 211m away.
• Carrum Foreshore Playground 250m away.
• Carrum Primary School 300m away.
• Carrum Sailing Club 270m away.
• Patterson River Secondary College 1.5km away.
This fully detached two storey beachside retreat is currently rented.
A remarkable find on the coastline, this unique property not only offers exquisite views but quite literally extends your garden to the beach.
It’s not just a place to live; it’s a lifestyle with endless opportunities to experience the true essence of coastal living. Offering a serene escape for relaxation as well as recreational waterfront adventures.
Don’t miss out on this rare opportunity to make this property your own.
All enquiries must include a contact number. For more information, please contact Daniel Wright on 0414 788 828 or Levi Burns on 0438 204 772.
Nepean Highway all the way to the sand, direct beach access is yours alone!
Perfectly positioned property with unparalleled panoramic views of the bay. This is a rare opportunity to secure this absolute beachfront property in the heart of Carrum.
This original two-story beachside retreat is set on 495sqm of prime beach front property. This dream...
Nepean Highway all the way to the sand, direct beach access is yours alone!
Perfectly positioned property with unparalleled panoramic views of the bay. This is a rare opportunity to secure this absolute beachfront property in the heart of Carrum.
This original two-story beachside retreat is set on 495sqm of prime beach front property. This dream property is one of only approx. 500 true beachfront properties available along the strip from Melbourne to Portsea.
Imagine waking up to the calming sounds of the waves, gentle sea breezes and breathtaking views of the coastline. Watch the boats sail by your tranquil uninterrupted panoramic bay views and enjoy an unmatched lifestyle in this exclusive, sun-drenched retreat. Perfectly positioned for watching stunning sunset views over the bay.
What truly sets this block apart is its unmatched proximity to all Carrum’s amenities. This property seamlessly blends the serenity of waterfront living with the convenience of urban accessibility.
Imagine having:
• Carrum Train Station 70m away.
• ALDI supermarket 140m away.
• Cafes and restaurants less than 150m away.
• Carrum Life Saving Club 211m away.
• Carrum Foreshore Playground 250m away.
• Carrum Primary School 300m away.
• Carrum Sailing Club 270m away.
• Patterson River Secondary College 1.5km away.
This fully detached two storey beachside retreat is currently rented.
A remarkable find on the coastline, this unique property not only offers exquisite views but quite literally extends your garden to the beach.
It’s not just a place to live; it’s a lifestyle with endless opportunities to experience the true essence of coastal living. Offering a serene escape for relaxation as well as recreational waterfront adventures.
Don’t miss out on this rare opportunity to make this property your own.
All enquiries must include a contact number. For more information, please contact Daniel Wright on 0414 788 828 or Levi Burns on 0438 204 772.
Buxton Chelsea
406 Nepean Highway,
CHELSEA VIC
3196
We'll give you a clear, honest assessment based on real market insights, so you can make informed decisions with confidence.
Local knowledge. Proven results. Trusted advice.
