Set on an exceptional 861sqm block with a 15.2m frontage (approx.), this 3-bedroom, 2-living zone family home offers an exciting opportunity in a highly sought-after pocket. Nestled just metres from...
Sharing Listing
B 3 b 1 C 2
Buxton Chelsea
406 Nepean Highway,
CHELSEA VIC
3196
Set on an exceptional 861sqm block with a 15.2m frontage (approx.), this 3-bedroom, 2-living zone family home offers an exciting opportunity in a highly sought-after pocket. Nestled just metres from...
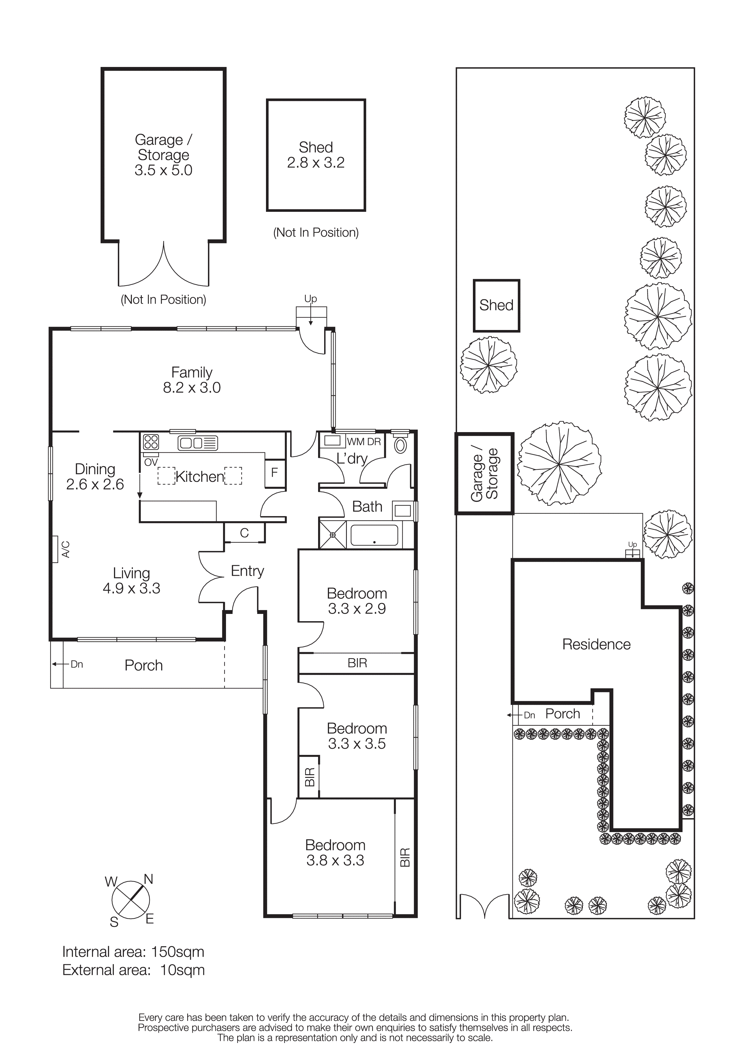
Set on an exceptional 861sqm block with a 15.2m frontage (approx.), this 3-bedroom, 2-living zone family home offers an exciting opportunity in a highly sought-after pocket. Nestled just metres from stunning Aspendale Beach, footsteps from schools and on the border of vibrant Mordialloc, this location perfectly combines lifestyle and convenience. Neat and tidy, the current property provides instant family comfort with scope to enhance, featuring two separate living areas and a functional kitchen at the social heart. There are three robed bedrooms, a family bathroom with separate shower, bath and toilet, plus split-system heating and cooling, ceiling fans and timber floors. Complete with a huge north-west facing backyard, garage and shed, kids and pets will love playing freely in the sunshine. However, the real drawcard is the substantial slice of bayside land. Move in and renovate over time, knock down and build your dream home or explore the development potential (STCA). Whether you're a growing family, a builder with a vision or investor – this beachside block impresses.
• 861sqm block with 15.2m frontage (approx.) – renovate, rebuild or develop (STCA)
• Stroll to Aspendale Beach, Aspendeli café, Browns Reserve and local shops
• 550m to Aspendale Primary; 700m to St Louis de Monfort’s Primary
• 750m to Mordialloc Secondary College; two train stops to Mentone's private schools
• Close to Mordialloc's Main Street and Mordialloc Station (revitalization underway)
In one of Melbourne's most coveted beachside suburbs, this premier lifestyle address is the one!
Set on an exceptional 861sqm block with a 15.2m frontage (approx.), this 3-bedroom, 2-living zone family home offers an exciting opportunity in a highly sought-after pocket. Nestled just metres from stunning Aspendale Beach, footsteps from schools and on the border of vibrant Mordialloc, this location perfectly combines lifestyle and convenience....
Set on an exceptional 861sqm block with a 15.2m frontage (approx.), this 3-bedroom, 2-living zone family home offers an exciting opportunity in a highly sought-after pocket. Nestled just metres from stunning Aspendale Beach, footsteps from schools and on the border of vibrant Mordialloc, this location perfectly combines lifestyle and convenience. Neat and tidy, the current property provides instant family comfort with scope to enhance, featuring two separate living areas and a functional kitchen at the social heart. There are three robed bedrooms, a family bathroom with separate shower, bath and toilet, plus split-system heating and cooling, ceiling fans and timber floors. Complete with a huge north-west facing backyard, garage and shed, kids and pets will love playing freely in the sunshine. However, the real drawcard is the substantial slice of bayside land. Move in and renovate over time, knock down and build your dream home or explore the development potential (STCA). Whether you're a growing family, a builder with a vision or investor – this beachside block impresses.
• 861sqm block with 15.2m frontage (approx.) – renovate, rebuild or develop (STCA)
• Stroll to Aspendale Beach, Aspendeli café, Browns Reserve and local shops
• 550m to Aspendale Primary; 700m to St Louis de Monfort’s Primary
• 750m to Mordialloc Secondary College; two train stops to Mentone's private schools
• Close to Mordialloc's Main Street and Mordialloc Station (revitalization underway)
In one of Melbourne's most coveted beachside suburbs, this premier lifestyle address is the one!
Buxton Chelsea
406 Nepean Highway,
CHELSEA VIC
3196
We'll give you a clear, honest assessment based on real market insights, so you can make informed decisions with confidence.
Local knowledge. Proven results. Trusted advice.
