WHAT A charming white-painted terrace home, this well-presented Windsor residence delivers generous proportions, classic character and an inviting sense of warmth throughout. Offering three large...
WHAT
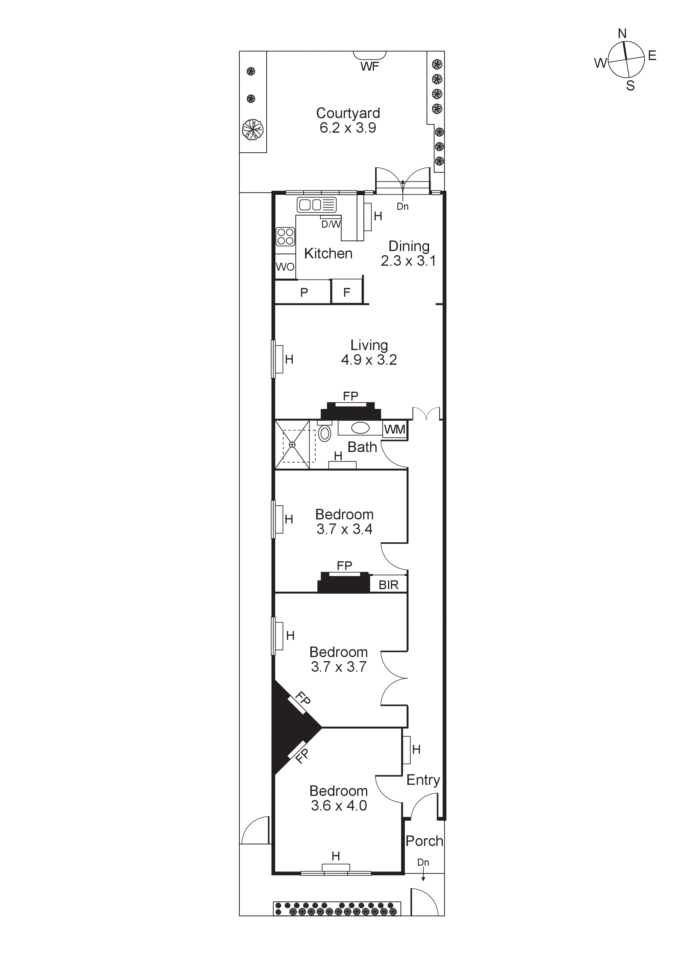
A charming white-painted terrace home, this well-presented Windsor residence delivers generous proportions, classic character and an inviting sense of warmth throughout. Offering three large bedrooms, one updated bathroom and a cosy formal living zone, the home is perfectly suited to couples, young families, downsizers, investors or city-based buyers seeking lifestyle and ease. Decorative fireplaces, high ceilings and period detail add timeless appeal, while the kitchen and adjoining dining area connect seamlessly to the private rear courtyard with a prized north-facing aspect.
• Three large carpeted bedrooms, one with built-in robe
• Cosy formal living room with fireplace and ceiling fan
• Central dining zone connecting the kitchen and north-facing rear courtyard
WHY
Full of heart and functionality, this is a home for buyers who value charm, comfort and low-maintenance living in an inner-city setting. The character-filled kitchen is positioned toward the rear, offering dark timber cabinetry, stone benchtops, generous pantry storage and stainless steel appliances including a dishwasher, oven and four-burner cooktop. A servery and double doors create easy connection to the quiet courtyard, ideal for relaxed entertaining. Comfort is assured with hydronic heating throughout, while the updated bathroom/laundry, skylight and alarm system enhance day-to-day practicality.
• Rear-positioned kitchen with stone benchtops and quality stainless steel appliances
• Hydronic heating throughout for consistent comfort
• Side street permit parking available
WHERE
Set in a quiet one-way street, this address places you close to some of inner Melbourne’s best lifestyle attractions. Enjoy easy access to Chapel Street’s renowned shopping, dining and nightlife, along with Prahran Market for fresh produce and local favourites. Windsor Station and nearby trams provide seamless city access, while Albert Park Lake offers a scenic escape for walking, cycling and recreation. Zoned for Windsor Primary School and Prahran High School, this is a location that delivers on both lifestyle and convenience.
• Moments to Chapel Street shops, cafes and nightlife
• Easy access to Windsor Station and trams
• Close to Albert Park Lake, Windsor Primary and Prahran High
