STYLE AND LUXURY IN THE HEART OF MALVERN! Experience the perfect blend of luxury, style, and everyday convenience in these brand-new two-bedroom 2nd floor apartments. Located in the heart of...
STYLE AND LUXURY IN THE HEART OF MALVERN!
Experience the perfect blend of luxury, style, and everyday convenience in these brand-new two-bedroom 2nd floor apartments.
Located in the heart of Malvern, this beautifully designed residence offers a sophisticated lifestyle with thoughtfully curated interiors, high-end finishes, and a seamless connection to lush outdoor spaces, offering the perfect balance of urban convenience and relaxed living
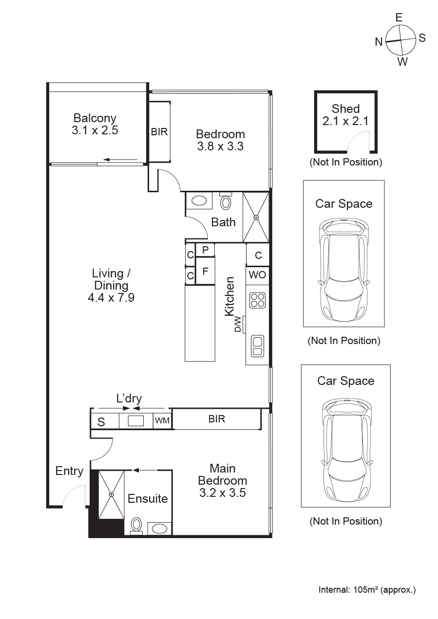
Your new home offers two carpeted bedrooms with built-in robes, two sleek, modern bathrooms appointed with premium fittings. The light-filled open-plan living and dining area creates a welcoming space for both relaxing and entertaining, complemented by a designer kitchen featuring quality appliances and elegant finishes. Step outside to your own private balcony, perfect for unwinding. Complete with ample storage throughout, integrated fridge/freezer, ducted heating, and cooling, two secure basement car spaces (please note height, width, weight, and length restrictions may apply), and a storage cage. This residence delivers both comfort and convenience in a refined, contemporary setting.
We have two apartments available on the second level: 202 has an area for a study nook and 203 includes an electric awning for the balcony, please see floorplans for specifics.
PLANT STREET: has been thoughtfully conceived to seamlessly unite internal and external spaces. The architecture, designed in collaboration with RITZ&GHOUGASSIAN, Interiors by Georgina Jeffries, bespoke lighting by Volker Haug Studio plus award-winning Landscaping by Acre enhances every level of the building, with lush greenery, seasonal plantings, and a calming open-air atrium that welcomes resident’s home
Positioned just 10km from Melbourne’s CBD, this apartment places you within easy reach of everything you need. Enjoy walking distance to Malvern Road, Glenferrie Road, and High Street, where you’ll find an array of cafes, restaurants, boutiques, and essential services. Close to Melbourne’s leading private schools. Public transport is at your doorstep, ensuring effortless connectivity to the city and surrounding suburbs.
This property has an embedded network.
Available NOW
Please click 'Request an inspection' to choose an available date and time. We ask that you confirm your attendance as an agent will not attend if the attendance SMS is not actioned. By registering your details, you will be INSTANTLY informed of any updates, changes, or cancellations for your property appointments.
