Utter convenience and true low maintenance combine to create the most laidback lifestyle at this stylish townhouse in a highly sought-after pocket so close to Southland. Nestled in a contemporary group, ready to move in or rent straight out, it boasts having a wealth of amenities only mere moments away.
A reverse floorplan serves to enhance the...
Utter convenience and true low maintenance combine to create the most laidback lifestyle at this stylish townhouse in a highly sought-after pocket so close to Southland. Nestled in a contemporary group, ready to move in or rent straight out, it boasts having a wealth of amenities only mere moments away.
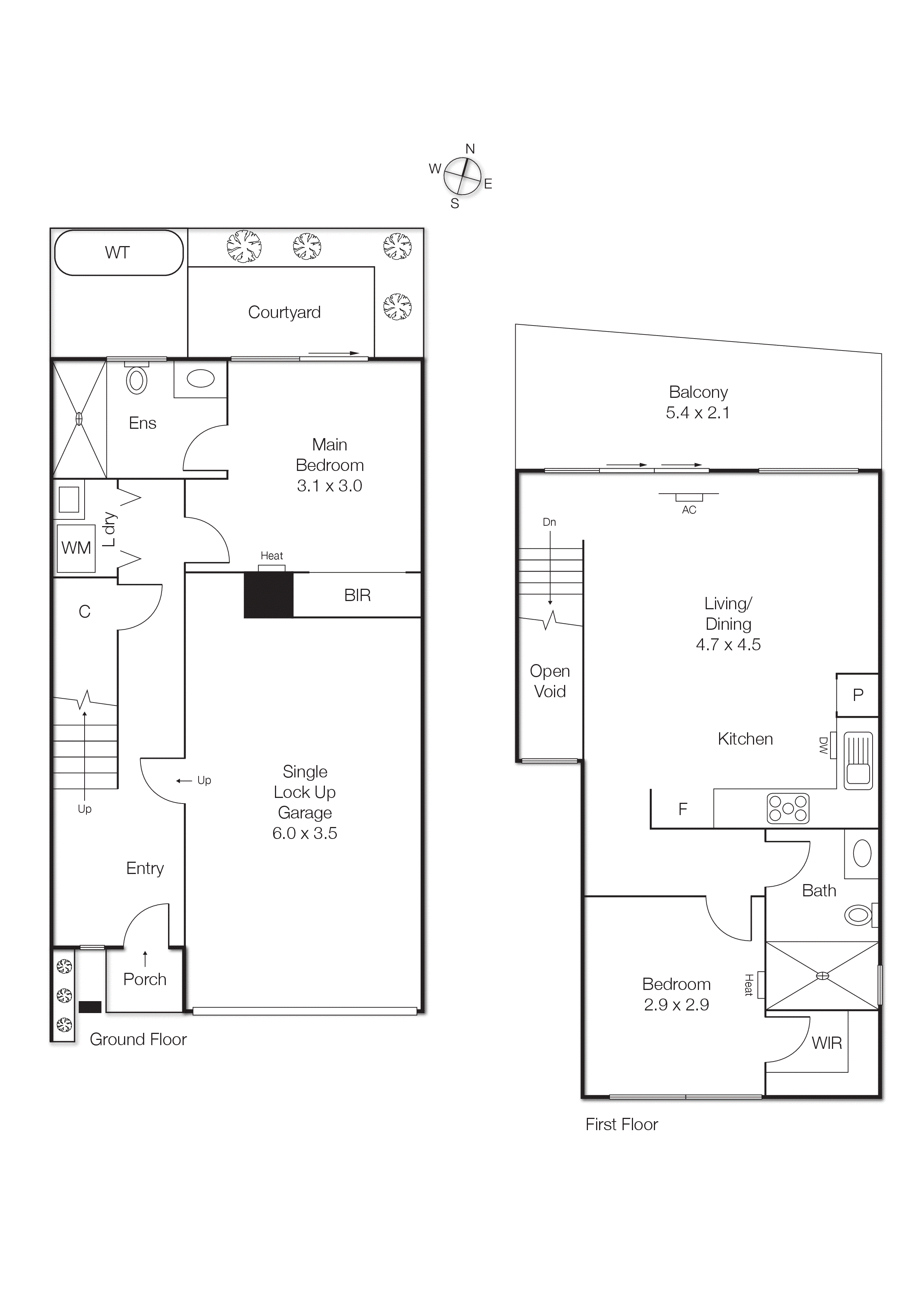
A reverse floorplan serves to enhance the natural light and sense of privacy through the inviting layout, which offers an upper-level living and dining zone with oak flooring flowing to the smart Bosch kitchen boasting 900mm cooking appliances. The northerly aspect floods this space with natural light, and extends to a sunny outdoor space — ideal for BBQs or relaxing in the sun.
A spacious upstairs bedroom with walk-in robes is serviced by a bright adjacent bathroom, while the ground-floor main ensuite bedroom luxuriates in a sparkling bathroom of its own as well as a quiet private courtyard. A European laundry, split system heating and cooling are also on offer together with ample storage, while internal entry to the automatic garage concludes a pristine property.
Just steps from Southland station and a short stroll to the shops, cinema and dining options, this pocket is near bus stops and parks and enjoys easy access to the highway for the workday commute and the beach for weekend getaways.
For more information about this immaculate low-maintenance home, please contact Kylie Charlton or Christian Hegarty at Buxton Sandringham.