A composed contemporary façade sets the tone for a home of scale and presence, opening to interiors shaped by natural light and a clear emphasis on family living. A sense of privacy is immediate,...
A composed contemporary façade sets the tone for a home of scale and presence, opening to interiors shaped by natural light and a clear emphasis on family living. A sense of privacy is immediate, while proximity to excellent schools, parkland and exceptional local amenities reinforces long-term appeal.
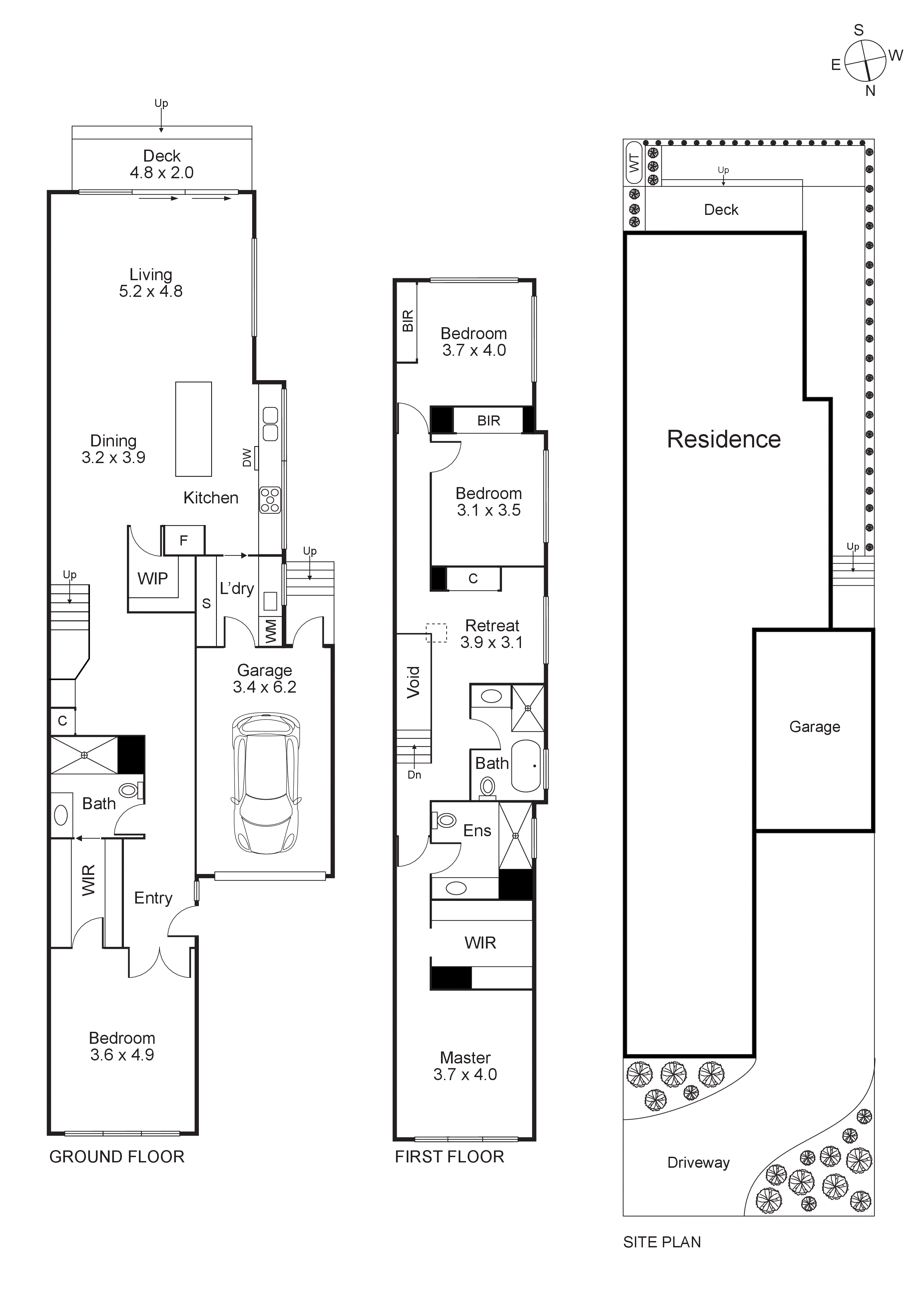
A broad entry defines the arrival, where engineered oak floors carry warmth underfoot and the layout reveals itself in stages rather than all at once. To the front, a north-facing master bedroom captures all-day light, complemented by a walk-through robe and access to a two-way bathroom, ideal for flexibility and convenience.
Living, dining and kitchen areas unfold as a cohesive open domain, framed by expansive glazing across the rear. Garden outlooks remain ever-present, while stacker doors extend to an elevated deck, creating a seamless indoor-outdoor connection and a natural setting for entertaining.
The streamlined kitchen is arranged around a substantial island and glossy white cabinetry, with a walk-in pantry offering excellent storage. A 5-burner freestanding Ilve cooker and Bosch dishwasher support everyday functionality, while stone surfaces add a refined finish. A picture window introduces additional light and enhances the sense of openness.
Positioned just beyond, a well-designed laundry provides further preparation and storage capacity, functioning with the efficiency of a butler’s pantry.
The transition upstairs is marked by a sculptural timber staircase, introducing a sense of lightness and architectural interest.
Upstairs, the main suite is set apart where soft natural light and generous proportions are complemented by a fitted walk-in wardrobe and a beautifully appointed ensuite. A skylit retreat offers valuable separation, accompanied by two additional bedrooms with mirrored robes and a luxurious central bathroom featuring a freestanding bath and oversized shower.
Cleverly designed with a six-star energy rating and full double glazing, this Brighton East residence delivers impressive acoustic insulation and thermal efficiency, creating a quiet, comfortable sanctuary within a well-connected setting.
Additional features include zoned heating and air conditioning, along with an internally accessed single garage.
Ideally positioned moments from Dendy Park, local bus services and Bluff Road shops, the home is also close to leading schools including St Leonard’s College and Haileybury College. Hampton Street’s cafés, restaurants and boutiques, Brighton Golf Course, Hampton Station and the bay are all within easy reach.
For more information about this sleek, low-maintenance home, contact Richard Slade or David Fallon at Buxton Sandringham.
