Freshly painted throughout, this freestanding family home offers space, style, and an unbeatable lifestyle in one of Elwood’s most desirable pockets—just moments from the beach and the vibrant Ormond...
Sharing Listing
B
3
b
2
C
2
392 m²
Buxton Elwood
3/122 Ormond Road,
Elwood
3184
Freshly painted throughout, this freestanding family home offers space, style, and an unbeatable lifestyle in one of Elwood’s most desirable pockets—just moments from the beach and the vibrant Ormond...
Freshly painted throughout, this freestanding family home offers space, style, and an unbeatable lifestyle in one of Elwood’s most desirable pockets—just moments from the beach and the vibrant Ormond Road village.
Positioned on a quiet, leafy street and zoned for the highly regarded Elwood Primary School and Elwood College, the home is perfectly suited to families seeking both convenience and quality. The location is truly exceptional, right on the doorstep of Ormond Road’s best cafés and shops, within walking distance to the beach, Elsternwick Park Nature Reserve, and Elsternwick train station—delivering an enviable bayside lifestyle.
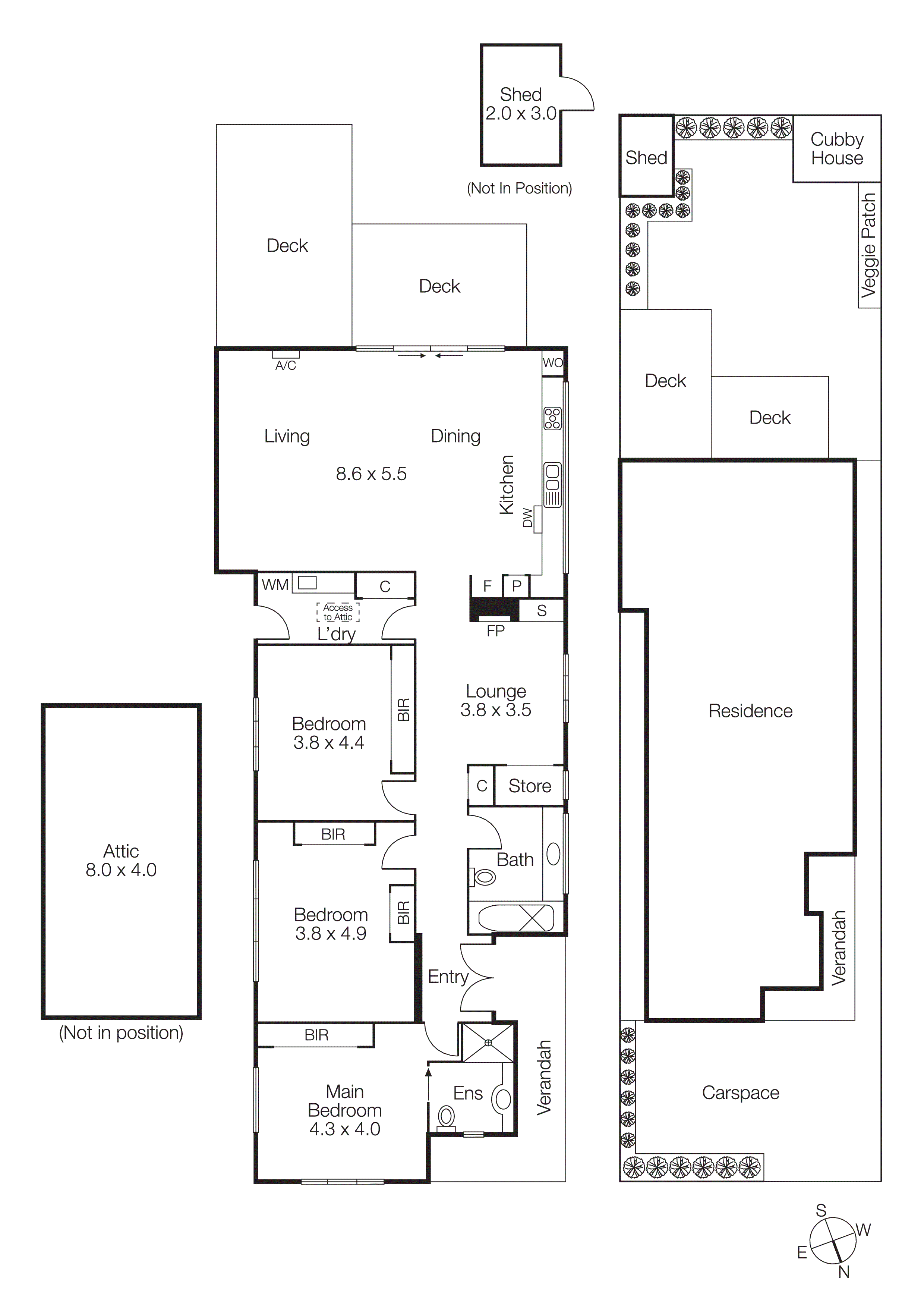
Inside, beautifully presented interiors showcase dark polished floorboards, central heating, and quality fixtures throughout. The generous master bedroom features built-in robes and a private ensuite, while two additional large bedrooms offer ample storage and soft carpeting underfoot. A central family bathroom with bath and a separate, well-appointed laundry enhance the home’s practicality.
Adding further appeal, a large attic—accessed via drop-down stairs from the laundry—provides an impressive amount of space, ideal for extensive storage or potential use as a home office.
At the rear, a spacious open-plan kitchen, living, and dining zone forms the heart of the home, complete with split system heating/cooling and seamless flow to an entertaining deck overlooking the fully fenced, grassed garden. Perfect for families, the backyard also includes a cubby house for the kids to enjoy.
Additional features include off-street parking for two large cars and a security alarm system.
This is a rare opportunity to secure a quality home in a blue-chip Elwood location, offering lifestyle, space, and outstanding convenience.
Freshly painted throughout, this freestanding family home offers space, style, and an unbeatable lifestyle in one of Elwood’s most desirable pockets—just moments from the beach and the vibrant Ormond Road village.
Positioned on a quiet, leafy street and zoned for the highly regarded Elwood Primary School and Elwood College, the home is perfectly...
Freshly painted throughout, this freestanding family home offers space, style, and an unbeatable lifestyle in one of Elwood’s most desirable pockets—just moments from the beach and the vibrant Ormond Road village.
Positioned on a quiet, leafy street and zoned for the highly regarded Elwood Primary School and Elwood College, the home is perfectly suited to families seeking both convenience and quality. The location is truly exceptional, right on the doorstep of Ormond Road’s best cafés and shops, within walking distance to the beach, Elsternwick Park Nature Reserve, and Elsternwick train station—delivering an enviable bayside lifestyle.
Inside, beautifully presented interiors showcase dark polished floorboards, central heating, and quality fixtures throughout. The generous master bedroom features built-in robes and a private ensuite, while two additional large bedrooms offer ample storage and soft carpeting underfoot. A central family bathroom with bath and a separate, well-appointed laundry enhance the home’s practicality.
Adding further appeal, a large attic—accessed via drop-down stairs from the laundry—provides an impressive amount of space, ideal for extensive storage or potential use as a home office.
At the rear, a spacious open-plan kitchen, living, and dining zone forms the heart of the home, complete with split system heating/cooling and seamless flow to an entertaining deck overlooking the fully fenced, grassed garden. Perfect for families, the backyard also includes a cubby house for the kids to enjoy.
Additional features include off-street parking for two large cars and a security alarm system.
This is a rare opportunity to secure a quality home in a blue-chip Elwood location, offering lifestyle, space, and outstanding convenience.
Buxton Elwood
3/122 Ormond Road,
Elwood
3184
We'll give you a clear, honest assessment based on real market insights, so you can make informed decisions with confidence.
Local knowledge. Proven results. Trusted advice.
