Offering an exceptional blend of location, scale and modern creature comforts, this is a standout opportunity for those seeking a relaxed, low-maintenance home without compromising on lifestyle. One...
Sharing Listing
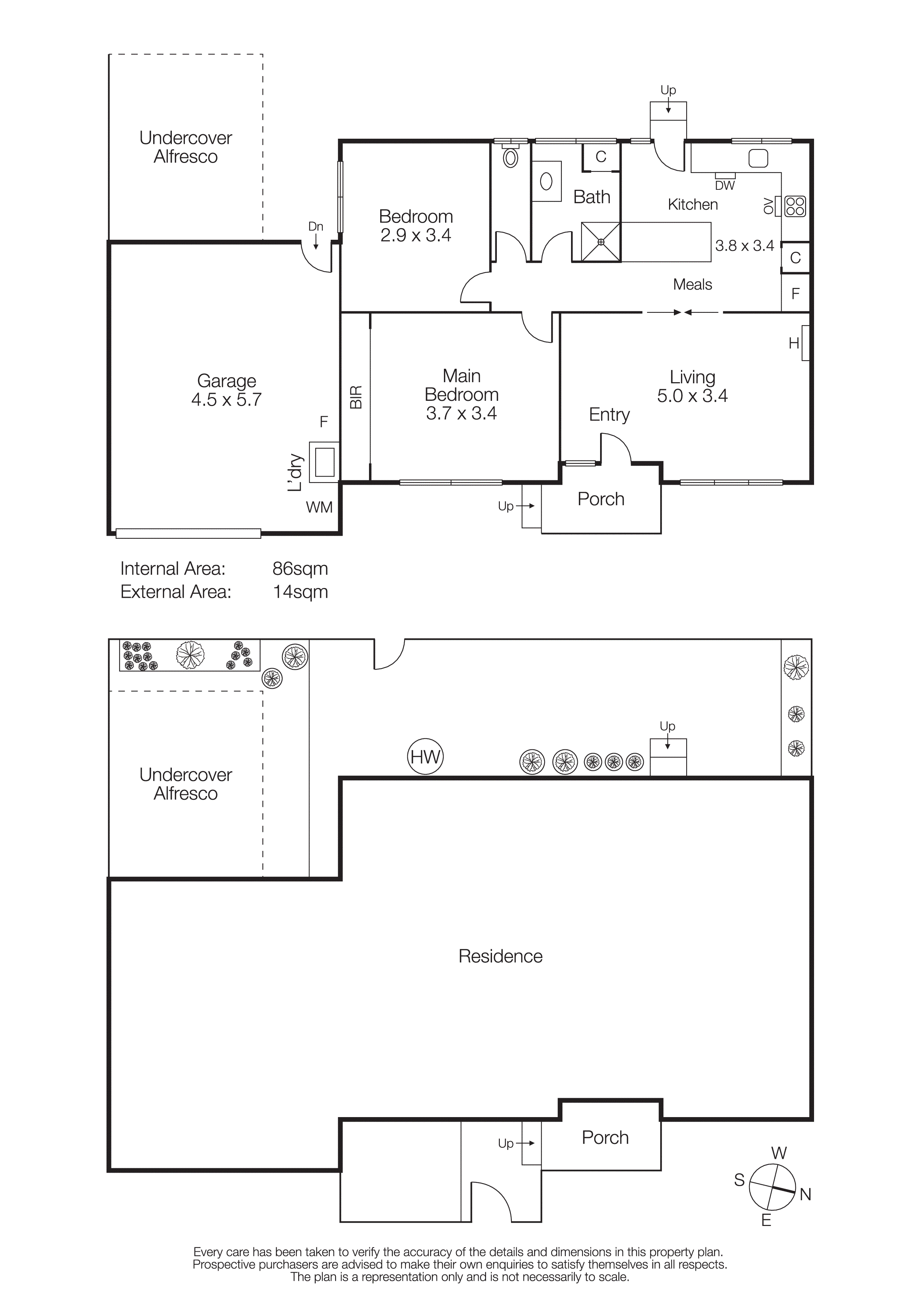
B 2 b 1 C 1
Buxton Chelsea
406 Nepean Highway,
CHELSEA VIC
3196
Offering an exceptional blend of location, scale and modern creature comforts, this is a standout opportunity for those seeking a relaxed, low-maintenance home without compromising on lifestyle. One...
Offering an exceptional blend of location, scale and modern creature comforts, this is a standout opportunity for those seeking a relaxed, low-maintenance home without compromising on lifestyle.
One of only six, this home has been thoughtfully transformed beyond traditional villa living, delivering a more refined, house-like experience with space, comfort and quality at its core.
Just 84 footsteps from the white sands of Chelsea Beach, this modernised residence offers a rare sense of private beachside living—where you can hear the ocean and enjoy the cool sea breeze at night, creating the feeling of a true coastal retreat.
Inside, two oversized bedrooms provide a generous sense of scale, complemented by a light-filled layout designed for effortless living. The home has been upgraded with a focus on both style and functionality, featuring year-round comfort with Fujitsu reverse-cycle ducted heating and cooling, a sleek ASKO induction cooktop and premium ASKO dishwasher. Select double-glazed windows and doors enhance peace, privacy and energy efficiency—key elements in creating a calm, coastal environment.
Adding to its appeal is the 1.5-car garage, offering valuable extra storage. Enhancing the home’s sense of independence, direct access via a private rear laneway allows you to come and go with ease without the feel of a typical group setting. This rare and highly desirable feature sets the home apart.
Step outside and immerse yourself in the lifestyle, you are walking distance to supermarkets, cafes and restaurants and train stations for convenience. Spend your days by the water, then return home to unwind in comfort, with the gentle sound of the ocean and fresh sea air reinforcing the sense that this is far more than a villa—it’s a beachside sanctuary.
Offering an exceptional blend of location, scale and modern creature comforts, this is a standout opportunity for those seeking a relaxed, low-maintenance home without compromising on lifestyle.
One of only six, this home has been thoughtfully transformed beyond traditional villa living, delivering a more refined, house-like experience with space,...
Offering an exceptional blend of location, scale and modern creature comforts, this is a standout opportunity for those seeking a relaxed, low-maintenance home without compromising on lifestyle.
One of only six, this home has been thoughtfully transformed beyond traditional villa living, delivering a more refined, house-like experience with space, comfort and quality at its core.
Just 84 footsteps from the white sands of Chelsea Beach, this modernised residence offers a rare sense of private beachside living—where you can hear the ocean and enjoy the cool sea breeze at night, creating the feeling of a true coastal retreat.
Inside, two oversized bedrooms provide a generous sense of scale, complemented by a light-filled layout designed for effortless living. The home has been upgraded with a focus on both style and functionality, featuring year-round comfort with Fujitsu reverse-cycle ducted heating and cooling, a sleek ASKO induction cooktop and premium ASKO dishwasher. Select double-glazed windows and doors enhance peace, privacy and energy efficiency—key elements in creating a calm, coastal environment.
Adding to its appeal is the 1.5-car garage, offering valuable extra storage. Enhancing the home’s sense of independence, direct access via a private rear laneway allows you to come and go with ease without the feel of a typical group setting. This rare and highly desirable feature sets the home apart.
Step outside and immerse yourself in the lifestyle, you are walking distance to supermarkets, cafes and restaurants and train stations for convenience. Spend your days by the water, then return home to unwind in comfort, with the gentle sound of the ocean and fresh sea air reinforcing the sense that this is far more than a villa—it’s a beachside sanctuary.
Buxton Chelsea
406 Nepean Highway,
CHELSEA VIC
3196
We'll give you a clear, honest assessment based on real market insights, so you can make informed decisions with confidence.
Local knowledge. Proven results. Trusted advice.
