Achieve the ultimate work–life balance with this exceptional street-front shop and upper-level residence, positioned within a boutique group of specialty businesses. Offered on a single title, this is...
Sharing Listing
B 2 b 2 C 2
Buxton Brighton
Level 1, 28 Carpenter Street,
BRIGHTON VIC
3186
Achieve the ultimate work–life balance with this exceptional street-front shop and upper-level residence, positioned within a boutique group of specialty businesses. Offered on a single title, this is...
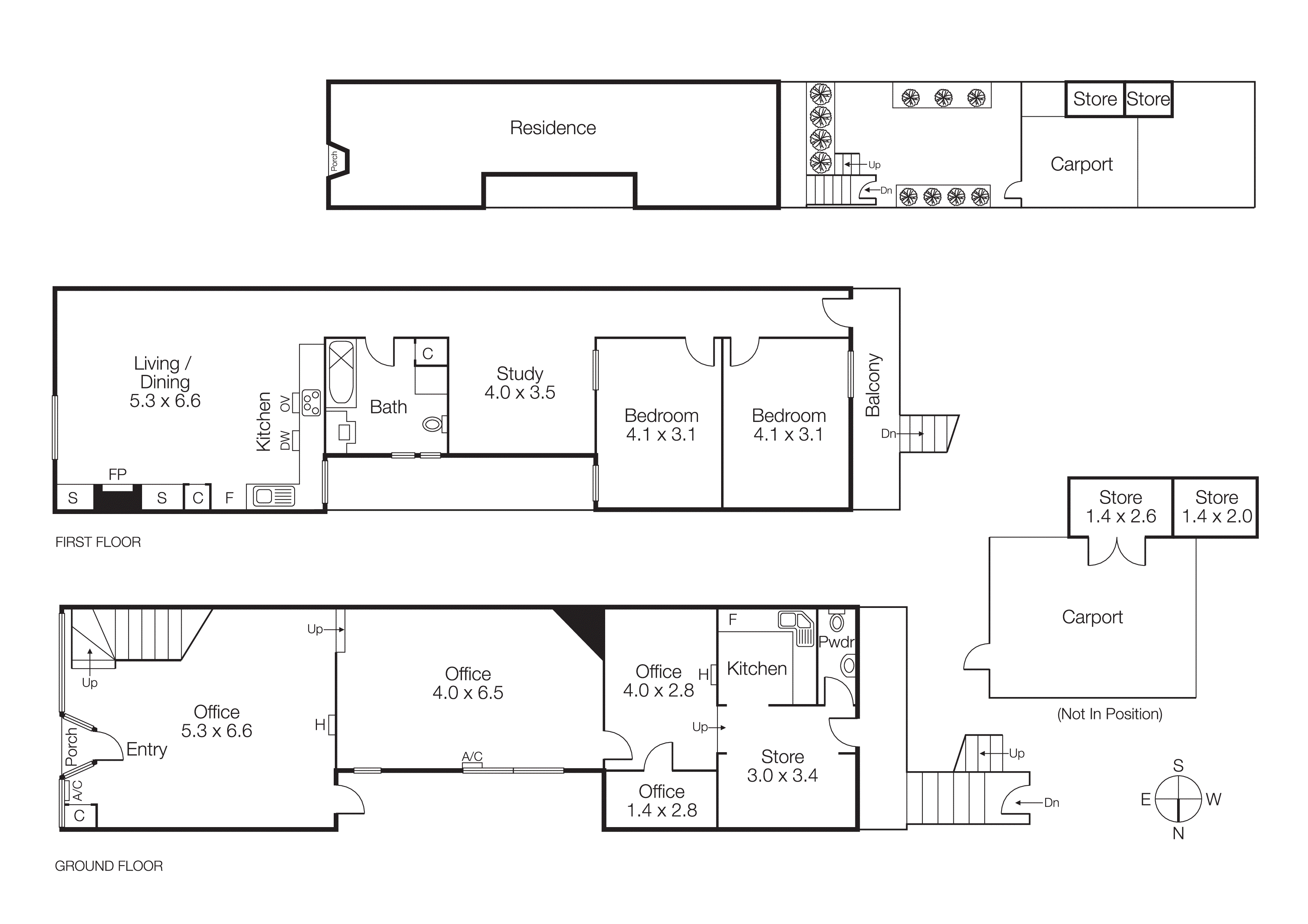
Achieve the ultimate work–life balance with this exceptional street-front shop and upper-level residence, positioned within a boutique group of specialty businesses. Offered on a single title, this is a rare opportunity to live, work and invest in a prized village setting with enduring blue chip appeal.
Whether launching your own venture, leasing one or both domains, or securing a high-performing mixed-use asset, the flexibility here is outstanding. A refined street presence is introduced by a beautiful pressed-metal awning and contemporary palette, while inside, light-filled interiors with high ceilings and reverse-cycle heating/cooling create a welcoming and professional environment. Three generous retail or office spaces are complemented by a modern kitchenette, partitioned filing area and powder room, delivering approximately 100sqm of versatile commercial space. A sun-catching courtyard and rear access to three on-site car spaces add further practicality.
Privately positioned with its own rear entry, the stylish apartment offers a peaceful retreat enhanced by a north-westerly courtyard framed by established greenery. A charming bullnose veranda precedes a surprisingly spacious layout, comprising two bedrooms, a large bathroom with bath, formal lounge, and an open-plan kitchen, meals and living domain. Comfort is assured with a gas log fireplace, panel heating, quality appliances, excellent storage including attic access, a study nook and European laundry, it’s perfect for immediate enjoyment, rental or Airbnb use. Option to acquire the apartment as furnished is available.
● Vacant possession
● Land area 201sqm (approx)
● Building area 194sqm (approx)
● Zoning - Business 1
● Rear access and on-site parking
Set moments from the North Road intersection with tram access at the doorstep, this outstanding address is surrounded by a vibrant mix of established businesses, delivering an enviable Bayside lifestyle and exceptional long-term investment potential.
For more information about this outstanding residential/retail opportunity please contact Tom Davidson at Buxton Brighton on 0488 017 500.
Achieve the ultimate work–life balance with this exceptional street-front shop and upper-level residence, positioned within a boutique group of specialty businesses. Offered on a single title, this is a rare opportunity to live, work and invest in a prized village setting with enduring blue chip appeal.
Whether launching your own venture, leasing...
Achieve the ultimate work–life balance with this exceptional street-front shop and upper-level residence, positioned within a boutique group of specialty businesses. Offered on a single title, this is a rare opportunity to live, work and invest in a prized village setting with enduring blue chip appeal.
Whether launching your own venture, leasing one or both domains, or securing a high-performing mixed-use asset, the flexibility here is outstanding. A refined street presence is introduced by a beautiful pressed-metal awning and contemporary palette, while inside, light-filled interiors with high ceilings and reverse-cycle heating/cooling create a welcoming and professional environment. Three generous retail or office spaces are complemented by a modern kitchenette, partitioned filing area and powder room, delivering approximately 100sqm of versatile commercial space. A sun-catching courtyard and rear access to three on-site car spaces add further practicality.
Privately positioned with its own rear entry, the stylish apartment offers a peaceful retreat enhanced by a north-westerly courtyard framed by established greenery. A charming bullnose veranda precedes a surprisingly spacious layout, comprising two bedrooms, a large bathroom with bath, formal lounge, and an open-plan kitchen, meals and living domain. Comfort is assured with a gas log fireplace, panel heating, quality appliances, excellent storage including attic access, a study nook and European laundry, it’s perfect for immediate enjoyment, rental or Airbnb use. Option to acquire the apartment as furnished is available.
● Vacant possession
● Land area 201sqm (approx)
● Building area 194sqm (approx)
● Zoning - Business 1
● Rear access and on-site parking
Set moments from the North Road intersection with tram access at the doorstep, this outstanding address is surrounded by a vibrant mix of established businesses, delivering an enviable Bayside lifestyle and exceptional long-term investment potential.
For more information about this outstanding residential/retail opportunity please contact Tom Davidson at Buxton Brighton on 0488 017 500.
Buxton Brighton
Level 1, 28 Carpenter Street,
BRIGHTON VIC
3186
We'll give you a clear, honest assessment based on real market insights, so you can make informed decisions with confidence.
Local knowledge. Proven results. Trusted advice.
